ZUSÄTZLICH VIEL PLATZ FÜR EIN 2. HAUS (noch 236 m² verbaubare Fläche)

Haus , 2483 Weigelsdorf


Nahe Ebreichsdorf, zentrale Grünlage

Beschreibung der Immobilie

ZUSÄTZLICH VIEL PLATZ FÜR EIN 2. HAUS (noch 236 m² verbaubare Fläche)

Bei diesem zum Verkauf stehenden 2 geschossigem Haus in der Nähe von Ebreichsdorf, gibt es die Möglichkeit ein weiteres Haus auf dem Grundstück zu errichten. Es kann die verbaute Fläche um weitere 236 m² erweitert werden! 



Laut Flächenwidmungsplan sind insgesamt 362 m² der Fläche bebaubar, Bauklasse II, offene Bauweise.



Das Haus wurde ca. 1956 errichtet, 1983 komplett umgebaut und ein neues Dachgeschoss aufgebaut.

2015 hat der jetzige Eigentümer alle Installationen wie Brennwert Heizung, großer Pufferspeicher, Fußbodenheizung usw. neu machen lassen.
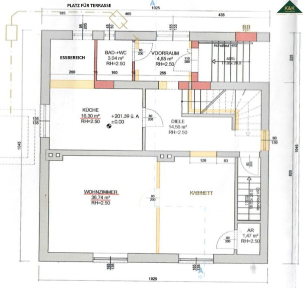
Der Eingang ins Haus ist überdacht und über ein paar Stufen zu reichen.

Vom Vorzimmer gelangt man gerade aus ins 1. von 2 Bädern mit Dusche und WC.

Weiter links gelangt man in die großzügige Diele, von dort ins Wohn- Esszimmer mit Kaminofen.

Angrenzend befindet sich ein kleiner Abstellraum.

Die großzügige Küche, komplett eingerichtet, erreicht man auch über die Diele.

Um die Ecke, in der Küche, ist Platz für einen weiteren Essbereich, von dem man über eine Terrassentür ins Freie  gelangt.

Hier wäre Platz für eine Terrasse.



Über die Stiege der Diele gelangt man ins Dachgeschoss (fast keine Dachschrägen, nur bei den beiden straßenseitigen Zimmern).

Hier stehen insgesamt 4 Zimmer zur Verfügung.

Weiters ein großes Bad mit Wanne, Dusche und Doppelwaschbecken.

Das extra WC grenzt ans Bad.

Eine Dachbodenstiege ermöglich den Zugang zum Spitzboden, der viel Platz für Stauraum hat.



Der Keller ist ebenfalls über die Diele erreichbar.

Dort ist die gesamte Technik, Heizung, Wasserenthärtungsanlage, usw. untergebracht.



Eckdaten



Erdgeschoß: ca. 76,96 m²

- Vorraum 4,85 m²

- Wohnzimmer 36,74 m²

- Küche mit Essplatz 16,30 m²

- Diele 14,56 m²

- Bad mit Dusche und WC 3,04 m²

- Abstellraum 1,47 m²



Beim Essbereich gibt es eine Tür zum Ausgang auf eine mögliche Terrasse.

 



Dachgeschoß: ca. 79,92 m²

- Diele 18,15 m²

- Zimmer 18,83 m²

- Zimmer 13,48 m²

- Zimmer 12,67 m²

- Zimmer 7,95 m²

- Bad mit Wanne, Dusche und Doppelwaschbecken 7,56 m²

- WC 1,28 m²

Spitzboden: Lagerfläche, mittels Dachbodenstiege zu erreichen



Keller: ca. 17,64 m²

 



Zusätzlich steht ein Nebengebäude als zb. Werkstatt, Abstellraum, usw., 13,50 m² in Massivbauweise, zu Verfügung.

Weiters ein Carport für 2 Fahrzeuge, Holzschupfen und ein Anbau aus Holz ans Nebengebäude. Alle einfach zu demontieren falls nicht benötigt.



Ausstattung



- Heizung Gasbrennwertgerät mit großem Warmwasserspeicher

- Fußbodenheizung in den meisten Bereichen

- Kunststofffenster, teilweise auch 3 fach verglast

- Wasserenthärtungsanlage

- Terrasse beim Ausgang vom Essbereich möglich

- Satellitenschüssel



Betriebskosten:

im Quartal ca. 150 € Gemeindeabgaben

Müll 70 € alle 6 Monate



Infrastruktur



- Nachbarort Ebreichsdorf mit umfangreicher Infrastruktur

- Geschäfte des täglichen Bedarfs um die Ecke

- Schulen, Kindergärten

- Gasthäuser, Restaurants, Bäckerei Mann

- Reitstall, Spielplatz, Golfplatz Ebreichsdorf, usw.



- Bahnhof Ebreichsdorf, in 30 Minuten in Wien

- Autobahnanschluss Ebreichsdorf West




Für die genaue Lage, weitere Pläne, usw. senden Sie uns bitte eine Anfrage.





Alle Angaben beruhen auf den Aussagen und den Unterlagen der Eigentümer und sind unsererseits ohne Gewähr und jedweder Haftung.





Aufgrund bestehender Nachweispflicht gegenüber dem Eigentümer

werden Anfragen ausnahmslos nur mit vollständiger Angabe Ihres Namens, Telefonnummer, E-Mailadresse und Adresse bearbeitet.





Bei Interesse bitte einfach melden.

Sie erreichen mich unter +43 676 780 76 73.

Der Vermittler ist als Doppelmakler tätig.

Infrastruktur / Entfernungen

Gesundheit
Arzt <1.000m
Apotheke <2.000m
Klinik <8.500m

Kinder & Schulen
Kindergarten <1.000m
Schule <500m

Nahversorgung
Supermarkt <500m
Bäckerei <2.000m

Sonstige
Bank <2.000m
Geldautomat <2.000m
Post <2.000m
Polizei <2.000m

Verkehr
Bus <500m
Bahnhof <500m
Autobahnanschluss <3.000m

Angaben Entfernung Luftlinie / Quelle: OpenStreetMap

Eckdaten Objektnr. 10006

Art: Haus
Land: Österreich
Baujahr: 1982
Alter: Neubau
Kaufpreis: 650.000,00
Wohnfläche: 156,88 m²
Grundstücksfl.: 1.008,00 m²
Gesamtfläche: 174,52 m²
Zimmer: 5,50
Bäder: 2
WC: 2
Keller: 17,64 m²
Heizwärmebedarf: 73,90 kWh/m²a
Immobilie merken Exposé

Ausstattung

Fliesen, Kunststoffboden, Parkettboden, Gas, Fußbodenheizung, Kamin, Einbauküche, Bad mit Fenster, Badewanne, Dusche, Kabel/Satelliten-TV, Carport, Garage


Immobilie anfragen


Ihre persönliche Beratung

K&K Immobilien DI Wittmann GmbH

Dipl.-Ing. Peter Wittmann

K&K Immobilien DI Wittmann GmbH

T +43 1 405 98 91

H +43 676 780 76 73

F +43 2163 20909