TOP Erstbezug im Zentrum - 4 Zimmer Maisonette mit kleinem Garten, Terrasse und Balkon

Wohnung , 7000 Eisenstadt


In zentraler Stadtlage auf der Anhöhe des Thurnerbergls, nur wenige Gehminuten von Innenstadt und Fussgängerzone entfernt befindet sich dieses Objekt in einer neuen Wohnanlage mit gesamt nur 34 Einheiten. Die Wohnobjekte erstrecken sich von der Sankt Antoni Straße bis zur Feldstraße, wo sich auch die Einfahrt zu den komfortablen Tiefgaragenplätzen befindet. Die Zugänge zu den Wohnungen sind bequem von beiden Straßen aus - barrierefrei - möglich.

Beschreibung der Immobilie

TOP Erstbezug im Zentrum - 4 Zimmer Maisonette mit kleinem Garten, Terrasse und Balkon

zur Vermietung gelangt diese hochwertige 4 Zimmer Neubauwohnung in perfekt zentraler Lage Eisenstadt.



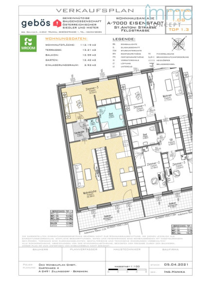
Die Gesamtwohnfläche der 4 Zimmermaisonette beträgt ca. 111 m² und bietet folgend angenehme Flächen; 



- Vorraum

- 2 Schlafzimmer je ca. 11,5 m², beide mit Schrankraum

- Badezimmer mit Toilette

- Innenstiege

- Gartenterrasse 

- Eigengarten



1.OG:
- Wohnraum offen zur Küche ca. 40 m²

- Garderobe

- Schlafzimmer mit Schrankraum ca. 19 m²

- Badezimmer

- separate Toilette

- Balkon ca. 12 m²



Der Grundriss ist praktikabel gestaltet und durch die Ausrichtung ist die Wohnung sehr freundlich - ein wahres Wohlfühlobjekt.



Durch die optimale Positionierung der Baukörper sind nahezu alle Wohnzimmer und Freiflächen nach Süden ausgerichtet.



Freuen Sie sich auf eine hochwertige und attraktive Ausstattung wie:



Sicherheitseingangstüre, 3-Scheiben Iso-Verglasung, außenliegende Sonnenschutzraffstores, Fußbodenheizung, hochwertiger Eichen Parkett, attraktive Badezimmer Gestaltung, bodengleich verflieste Dusche, Handtuchtrocknerheizkörper in allen Bädern, Videogegensprechanlage.



Geräumiges Kellerabteil mit Stromanschluss.



Im allgemeinen Bereich im Untergeschoss stehen großzügig Platz für Kinderwägen und Fahrräder - alles barrierefrei erreichbar - zur Verfügung.



Ein oder mehrere KFZ- Stellplätze können optional angekauft werden. Die Ausstattung mit einer Wallbox am Parkplatz mit 11 KV ist möglich.   



Neubau Erstbezug in qualitativ hochwertiger Massivbauweise, von Fa. Hitthaler gebaut.   



Heizung und Warmwasserversorgung über Fernwärme Energie Burgenland. 



Ein Bezug ist kurzfristig möglich.



Für den Mieter - provisionsfrei. 



flexible Erwerbsvarianten: Sofortkauf sowie Mietkauf möglich!  



Sie suchen ein modernes, komfortables und neuwertiges Zuhause in zentraler und ruhiger Stadtlage? Dann sind Sie hier genau richtig. Diese Wohnung in Eisenstadt bietet Ihnen alles, was Sie für ein zeitgemäß modernes Wohnen brauchen. Sichern Sie sich jetzt ihr neues Domizil in der stetig wachsenden Landeshauptstadt Österreichs. 



Ich freue mich auf ihre Anfrage.



Ihr Alfred Bergmann



0676 362 81 76



Immo Concept OG






Der Immobilienmakler erklärt, dass er – entgegen dem in der Immobilienwirtschaft üblichen Geschäftsgebrauch des Doppelmaklers – einseitig nur für den Vermieter tätig ist.

Infrastruktur / Entfernungen

Gesundheit
Arzt <500m
Apotheke <500m
Klinik <7.500m
Krankenhaus <1.500m

Kinder & Schulen
Schule <500m
Kindergarten <500m
Universität <1.500m
Höhere Schule <1.000m

Nahversorgung
Supermarkt <500m
Bäckerei <500m
Einkaufszentrum <1.500m

Sonstige
Bank <500m
Geldautomat <500m
Post <500m
Polizei <1.000m

Verkehr
Bus <500m
Autobahnanschluss <2.500m
Bahnhof <1.000m

Angaben Entfernung Luftlinie / Quelle: OpenStreetMap

Eckdaten Objektnr. 484

Art: Wohnung
Land: Österreich
Baujahr: 2022
Zustand: Erstbezug
Alter: Neubau
Gesamtmiete: 1.529,00
Kaltmiete (netto): 1.390,00 €
Kaltmiete: 1.390,00 €
Provision: Gemäß Erstauftraggeberprinzip bezahlt der Abgeber die Provision.
MwSt Gesamt: 139,00 €
Wohnfläche: 111,57 m²
Zimmer: 4
Bäder: 2
WC: 2
Balkone: 1
Terrassen: 1
Garten: 12,00 m²
Heizwärmebedarf:  B  25,00 kWh/m²a
fGEE:  A  0,71
Immobilie merken Exposé

Ausstattung

Fliesen, Parkett, Fußbodenheizung, Wohnküche / offene Küche, Südbalkon, Dusche, Kabel/Satelliten-TV, Tiefgarage


Immobilie anfragen


Ihre persönliche Beratung

Immo Concept OG

Alfred Peter Bergmann

Immo Concept OG

H +43 676 36 28 176