„Licht. Ruhe. Mauer. – Exklusive Dachgeschosswohnung mit uneinsichtiger Terrasse“ | ZELLMANN IMMOBILIEN

Wohnung - Dachgeschoß, 1230 Wien


Beschreibung der Immobilie

„Licht. Ruhe. Mauer. – Exklusive Dachgeschosswohnung mit uneinsichtiger Terrasse“ | ZELLMANN IMMOBILIEN

Dachgeschosswohnung mit Terrasse – Neubau mitten in Mauer



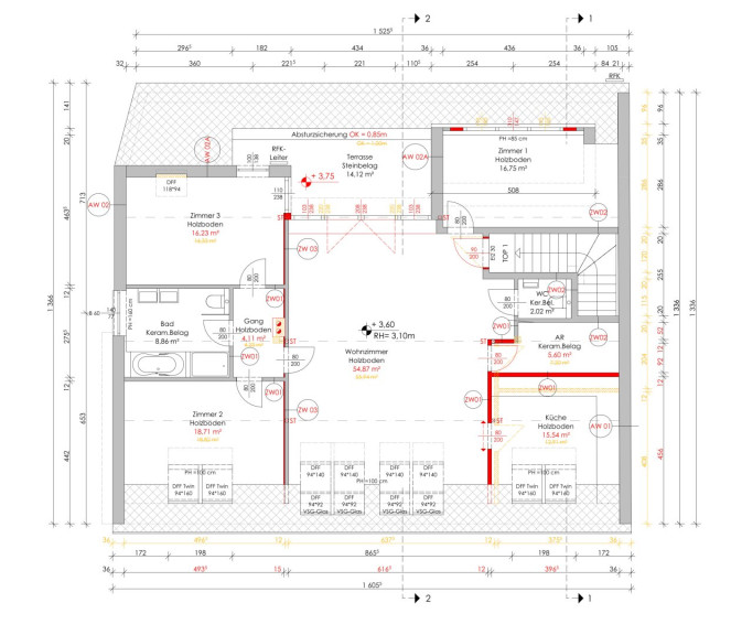
QUICKREAD: Alles auf einen Blick


Wohnnutzfläche: ca. 144,29 m²

Terrasse: ca. 14,12 m²

Zimmer: 4

Wohnbereich: ca. 54,87 m²

Küche: ca. 15,54 m²

Bad: ca. 8,86 m²

WC: ca. 2,02 m²

Abstellraum: ca. 5,60 m²

Raumhöhe im Wohnbereich: bis ca. 3,10 m

Heizung & Warmwasser: Luft-Wärme-Pumpe




Wohnen mit Raum, Licht und Privatsphäre


Diese neue und uneinsichtbare Dachgeschosswohnung liegt mitten in Mauer – eingebettet in eine gewachsene, hochwertige Wohnumgebung mit besonderem Charme.



Bereits beim Betreten eröffnet sich ein beeindruckender Wohnbereich mit rund 55 m² Fläche und einer Raumhöhe von bis zu ca. 3,10 Metern. Großzügige Dachflächenfenster sorgen für außergewöhnliche Lichtverhältnisse und verleihen dem Raum eine offene, repräsentative Wirkung.



Der hochwertige Holzboden schafft Wärme und Eleganz, während die klare architektonische Linie ein modernes, zeitloses Wohngefühl vermittelt.




Küche mit eigener Präsenz


Die separate Küche mit rund 15,5 m² bietet ausreichend Platz für einen großzügigen Koch- und Essbereich. Die moderne Gestaltung fügt sich harmonisch in das Gesamtkonzept ein.



Durch die räumliche Trennung zwischen Wohn- und Kochbereich entsteht eine angenehme Struktur, die sowohl Alltagstauglichkeit als auch repräsentative Qualität bietet.




Rückzugsbereiche mit Charakter


Drei Schlafzimmer mit ca. 16 bis 19 m² ermöglichen flexible Nutzung – ob als Masterbedroom, Kinderzimmer oder stilvolles Homeoffice.



Die Dacharchitektur verleiht den Räumen Individualität und sorgt gleichzeitig für helle, freundliche Atmosphäre.




Badezimmer mit Komfort


Das modern gestaltete Badezimmer verfügt über Badewanne sowie separate Dusche. Hochwertige keramische Beläge und eine klare Formensprache schaffen eine ruhige, zeitlose Ästhetik.



Ein separates WC sowie ein praktischer Abstellraum ergänzen den durchdachten Grundriss.




Terrasse mit Mehrwert


Die rund 14 m² große Terrasse erweitert den Wohnraum ins Freie. Uneinsichtig gelegen genießen Sie hier Privatsphäre, Ruhe und angenehme Sonnenstunden – ein wertvoller Rückzugsort mitten im urbanen Umfeld.




Lagequalität zwischen Natur, Weinbergen und Stadtanbindung


Mauer zählt zu den begehrtesten Wohnlagen im 23. Bezirk und überzeugt durch seine einzigartige Verbindung aus Natur, Tradition und Infrastruktur.



Der nahegelegene Lainzer Tiergarten bietet weitläufige Grünflächen für Spaziergänge, Laufrunden oder Mountainbike-Touren. Auch das Erholungsgebiet rund um den Pappelteich lädt zu entspannter Freizeitgestaltung in naturnaher Umgebung ein.



Das Ortszentrum von Mauer besticht durch seinen dörflichen Charakter und seine traditionsreichen Heurigen – insbesondere der bekannte Edlmoser steht exemplarisch für die hohe Lebensqualität des Grätzels.



Nahversorger, Apotheke, Schulen und weitere Einrichtungen des täglichen Bedarfs sind bequem fußläufig erreichbar. Die öffentliche Anbindung ist ausgezeichnet: Straßenbahn- und Buslinien führen rasch zu U-Bahn-Stationen sowie zur Schnellbahn und ermöglichen eine komfortable Verbindung in die Wiener Innenstadt.



Hier wohnen Sie ruhig, naturnah und dennoch bestens angebunden – eine Lage, die sowohl Lebensqualität als auch langfristige Wertstabilität verspricht.




Zusammenfassung


Diese Dachgeschosswohnung vereint Großzügigkeit, moderne Architektur und hochwertige Ausstattung auf rund 144 m² Wohnfläche.



Vier Zimmer, ein außergewöhnlicher Wohnbereich mit beeindruckender Raumhöhe, eine separate Küche sowie eine uneinsichtige Terrasse schaffen ein Wohngefühl, das sowohl repräsentativ als auch alltagstauglich ist. Eine Immobilie für Menschen, die Qualität, Privatsphäre und die besondere Lage mitten in Mauer zu schätzen wissen.

Noch nichts gefunden? Wir informieren Sie über geeignete Immobilienangebote noch vor allen anderen.
Legen Sie jetzt Ihren individuellen Suchagenten unter folgendem Link an. Wir schicken Ihnen passende Immobilien exklusiv vorab zu. 



-> Suchagent anlegen


Der Immobilienmakler erklärt, dass er – entgegen dem in der Immobilienwirtschaft üblichen Geschäftsgebrauch des Doppelmaklers – einseitig nur für den Vermieter tätig ist.

Unser Service – Vertrauen. Service. Qualität.

Bei ZELLMANN IMMOBILIEN legen wir größten Wert auf persönliche Beratung, Transparenz und Service auf höchstem Niveau. Jede Besichtigung ist unverbindlich und findet in entspannter Atmosphäre statt. Nach Vertragsabschluss übernehmen wir selbstverständlich sämtliche Formalitäten – von der Übergabedokumentation bis zur Abstimmung mit Hausverwaltung und Energieversorgern. Ihr Anliegen ist bei uns in den besten Händen – auch nach Vertragsabschluss.

Rechtliche Hinweise

Bitte überprüfen Sie nach Übermittlung Ihrer Anfrage auch Ihren SPAM- bzw. WERBE-Ordner, da automatisierte E-Mail-Zustellungen technisch bedingt fallweise dort eingeordnet werden können. Wir bearbeiten Anfragen üblicherweise innerhalb weniger Stunden, auch an Wochenenden. Die Bekanntgabe einer Telefonnummer erfolgt freiwillig; diese kann ausschließlich zur ergänzenden Verständigung (z. B. SMS-Benachrichtigung über die Exposé-Übermittlung) verwendet werden. Dieses Angebot ist unverbindlich und freibleibend. Alle Angaben erfolgen auf Basis von Informationen des Eigentümers und vorliegenden Unterlagen; eine Haftung für Richtigkeit, Vollständigkeit und Aktualität wird nicht übernommen. Änderungen, Irrtümer, Zwischenverkauf sowie Abweichungen bleiben vorbehalten. Flächenangaben sind ca.-Werte. Das Exposé stellt kein verbindliches Angebot dar. Im Erfolgsfall beträgt die Käuferprovision 3 % des Kaufpreises zzgl. 20 % USt gemäß §§ 6 ff MaklerG und Immobilienmaklerverordnung, BGBl. 262/1996 idgF. Bei Mietobjekten gilt das gesetzliche Bestellerprinzip (§ 17a MaklerG): Provision ist von jener Partei zu tragen, die den Makler zuerst beauftragt hat; für Wohnungssuchende fällt grundsätzlich keine Provision an.

Infrastruktur / Entfernungen

Gesundheit
Arzt <500m
Apotheke <500m
Klinik <2.000m
Krankenhaus <1.500m

Kinder & Schulen
Schule <500m
Kindergarten <500m
Universität <4.000m
Höhere Schule <6.000m

Nahversorgung
Supermarkt <500m
Bäckerei <500m
Einkaufszentrum <2.000m

Sonstige
Geldautomat <500m
Bank <500m
Post <500m
Polizei <2.000m

Verkehr
Bus <500m
U-Bahn <4.000m
Straßenbahn <500m
Bahnhof <2.000m
Autobahnanschluss <4.000m

Angaben Entfernung Luftlinie / Quelle: OpenStreetMap

Eckdaten Objektnr. 25402

Art: Wohnung - Dachgeschoß
Land: Österreich
Baujahr: 2026
Zustand: Erstbezug
Alter: Neubau
Gesamtmiete: 2.500,00
Kaltmiete (netto): 2.390,00 €
Kaltmiete: 2.490,00 €
Provision: Gemäß Erstauftraggeberprinzip bezahlt der Abgeber die Provision.
Betriebskosten: 100,00 €
MwSt Gesamt: 10,00 €
Wohnfläche: 142,69 m²
Gesamtfläche: 184,73 m²
Zimmer: 4,50
Bäder: 1
WC: 2
Terrassen: 1
Heizwärmebedarf:  B  37,00 kWh/m²a
fGEE:  A+  0,75
Immobilie merken Exposé

Ausstattung

Parkett, Dielenboden, Steinboden, Fußbodenheizung, Einbauküche, Bad mit Fenster, Badewanne, Dusche, Kabel/Satelliten-TV, Alarmanlage, Sicherheitskamera


Immobilie anfragen


Ihre persönliche Beratung

ZELLMANN IMMOBILIEN GmbH | Vertrauen. Service. Qualität.

Nicole Zellmann

ZELLMANN IMMOBILIEN

T +43 699 15 15 22 01

H +43 699 15 15 22 01