Modernes Familien-Wohnen mit Keller – 166m2 Nutzfläche - nachhaltig gebaut, bezugsfertig - jetzt Besichtigung vereinbaren

Haus , 1220 Wien


1220 Wien

Beschreibung der Immobilie

Modernes Familien-Wohnen mit Keller – 166m2 Nutzfläche - nachhaltig gebaut, bezugsfertig - jetzt Besichtigung vereinbaren

Modernes Familien-Wohnen mit Keller  – 166m2 Nutzfläche - nachhaltig gebaut, bezugsfertig - jetzt Besichtigung vereinbaren



---ENGLISH VERSION BELOW---



In einer ruhigen Seitenstraße des  22. Bezirks, eingebettet zwischen moderner Infrastruktur und naturnaher Umgebung, wartet dieses schlüsselfertige Einzelhaus in der Zehdengasse mit 166m² Nutzfläche auf seine neuen Eigentümer. Es ist das letzte verfügbare Haus dieser Qualität und Bauweise – eine Gelegenheit für all jene, die zeitgemäßes Wohnen mit hohem Anspruch an Komfort, Nachhaltigkeit und Lebensqualität verbinden möchten.



 



Wohnen auf drei Ebenen – durchdacht und hochwertig ausgestattet



Auf rund 111 m² Wohnfläche zuzüglich einem ausgebauten Keller mit ca. 55 m² sowie einem vorbereiteten Dachboden entfaltet sich ein großzügiges Zuhause mit viel Platz für Familie, Freizeit und Homeoffice. Die Räume sind funktional geschnitten und bieten durch große Fensterflächen viel Tageslicht.



Das Erdgeschoss überzeugt mit einem offenen Wohn-Essbereich, direktem Ausgang auf die Terrasse und in den Garten. Im Obergeschoss befinden sich drei Schlafzimmer sowie ein modernes Badezimmer. Der voll ausgebaute Keller bietet zahlreiche Nutzungsmöglichkeiten – ob als Hobbyraum, Fitnessbereich oder Gästeetage.



 



Ausstattung mit Anspruch



Das Haus wurde in ökologischer Holzbauweise von ELK errichtet und besticht durch eine hochwertige Innenausstattung:



* Großformatiges Feinsteinzeug



* Österreichischer Dielen-Echtholzparkett



* Sanitärkeramik von Villeroy & Boch



* Fußbodenheizung über Luftwärmepumpe



* Leerverohrung für Klimaanlage & Photovoltaik



Ein eigener PKW-Stellplatz ist ebenfalls inkludiert.



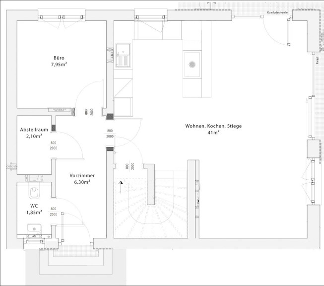
Erdgeschoss (EG)



* Vorraum / Eingangsbereich



* Abstellraum



* Gäste-WC



* Büro/Zimmer 1



* Offener Wohn- und Essbereich mit Küche



* Ausgang zur Terrasse und in den Garten



 



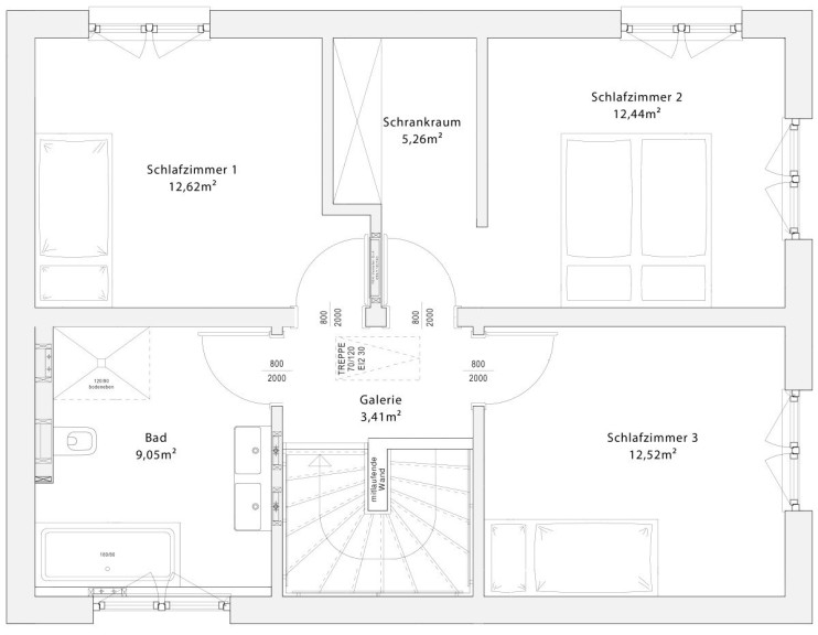
Obergeschoss (OG)



* Flur



* Zimmer 2 mit Schrankraum (Eltern)



* Zimmer 3 (Kind/Gäste/Büro)



* Zimmer 4 (Kind/Gäste/Büro)



* Großes Badezimmer mit Badewanne, Dusche und WC



 



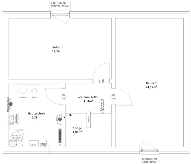
Kellergeschoss (KG)



* Großer Hobbyraum / Fitnessraum / Homeoffice



* Technikraum / Hauswirtschaftsraum



* Lagerraum / zusätzlicher Abstellbereich



 



Dachgeschoss (DG)



* Vorbereitet zur Nutzung (z. B. Stauraum)



 



Garten, Terrasse & Ihr eigener Rückzugsort



Der ca. 100 m² große Garten mit zusätzlicher 20 m² Terrasse schafft Raum für Entspannung, Spiel und kreative Gartengestaltung – ob Hochbeet, Loungezone oder Whirlpool, hier ist fast alles möglich.



 



Die Mikrolage: Grün. Ruhig. Urban.



Die Zehdengasse liegt im beliebten Teil von Kagran – einem Stadtteil, der urbanes Leben mit hoher Lebensqualität verbindet. In unmittelbarer Umgebung finden Sie:



* Kindergärten, Schulen & internationale Bildungseinrichtungen



* Parkanlagen und Naherholungsgebiete



* UNO-City & Vienna International Centre



* Einkaufszentren wie Donau Zentrum



* Optimale Anbindung an U1 (Kagraner Platz)



Dank ruhiger Seitenlage genießen Sie Privatsphäre – und sind dennoch in wenigen Minuten im Zentrum Wiens oder auf der Donauinsel.



 



Eckdaten im Überblick



* Ca. 110,75 m² Wohnfläche



* Ca. 55 m² Kellerfläche



* Vorbereiteter Dachboden



* Ca. 100 m² Garten + 20 m² Terrasse



* 1 PKW-Stellplatz



* Holzriegelbauweise von ELK



* Schlüsselfertige Übergabe



 



Nebenkosten sparen dank Konjunkturpaket



Profitieren Sie jetzt vom Wohnbau-Förderpaket der Bundesregierung und sparen Sie bis zu EUR 16.500,– an Nebenkosten (Grundbuch & Pfandrecht).




 



Jetzt besichtigen und einziehen!



Einziehen statt planen – dieses bezugsfertige Einfamilienhaus bietet alles, was moderne Familien suchen. Vereinbaren Sie noch heute einen Besichtigungstermin.



Vertragserrichtung über Eckert Fries Carter Rechtsanwälte GmbH.



 



---ENGLISH VERSION---



Modern Detached Family Home on Zehdengasse – Turnkey, Eco-Friendly, and Spacious



Nestled in a quiet side street of Vienna’s 22nd district, surrounded by modern infrastructure and green spaces, this turnkey detached home on Zehdengasse is ready to welcome its new owners. It is the last available house of this quality and design in the neighborhood – a rare opportunity for those seeking contemporary living with a strong focus on comfort, sustainability, and quality of life.



Living Across Three Levels – Thoughtfully Designed and High-End



With approx. 110 m² of living space, an additional 55 m² fully developed basement, and a prepared attic, this home offers generous room for family life, leisure, and working from home. The layout is functional, and large windows provide plenty of natural light throughout.



The ground floor features an open-plan living and dining area with direct access to the terrace and garden. Upstairs, you'll find three bedrooms and a stylish, modern bathroom. The fully finished basement offers flexible use – perfect for a hobby room, home gym, or guest space.



Premium Features with a Sustainable Focus



Built in ecological timber construction by ELK, the home impresses with its high-quality interior finishes:



* Large-format porcelain stoneware tiles



* Genuine Austrian oak wood flooring



* Sanitaryware by Villeroy & Boch



* Underfloor heating powered by an air-source heat pump



* Empty conduits for air conditioning & photovoltaic system



* One private parking space is included



Garden, Terrace & Your Private Retreat



The approx. 100 m² garden and additional 20 m² terrace offer the perfect outdoor escape – whether for relaxation, play, or your own creative garden design. Raised beds, a lounge area, or even a whirlpool – it’s all possible here.



Location Highlights: Green. Quiet. Urban.



Zehdengasse is located in the sought-after area of Kagran – a district that combines urban living with excellent quality of life. In the immediate vicinity, you’ll find:



* Kindergartens, schools & international education centers



* Parks and recreational areas



* UNO City & Vienna International Centre



* Shopping centers like Donau Zentrum



* Excellent connections via U1 (Kagraner Platz)



Despite its quiet location, you’re just minutes away from Vienna’s city center or the Danube Island.



Key Facts at a Glance



* Approx. 110.75 m² living space



* Approx. 55 m² basement space



* Prepared attic



* Approx. 100 m² garden + 20 m² terrace



* 1 private parking space



* Timber construction by ELK



* Turnkey handover



Save on Ancillary Costs Thanks to Government Incentives



Take advantage of the Austrian housing stimulus package and save up to EUR 16,500 in ancillary costs (land registry & mortgage fees).
[More information here]



Ready to Move In – Schedule Your Viewing Today



Why plan when you can move in right away? This fully finished family home has everything modern families are looking for. Contact us today to arrange a viewing!



Contract execution via Eckert Fries Carter Rechtsanwälte GmbH.

Infrastruktur / Entfernungen

Gesundheit
Arzt <500m
Apotheke <500m
Klinik <3.000m
Krankenhaus <2.500m

Kinder & Schulen
Schule <500m
Kindergarten <500m
Universität <1.000m
Höhere Schule <1.500m

Nahversorgung
Supermarkt <500m
Bäckerei <1.000m
Einkaufszentrum <1.500m

Sonstige
Geldautomat <1.500m
Bank <1.500m
Post <1.000m
Polizei <1.500m

Verkehr
Bus <500m
U-Bahn <1.000m
Straßenbahn <1.000m
Bahnhof <1.000m
Autobahnanschluss <3.000m

Angaben Entfernung Luftlinie / Quelle: OpenStreetMap

Eckdaten Objektnr. 5675/525

Art: Haus
Land: Österreich
Baujahr: 2024
Zustand: Erstbezug
Alter: Neubau
Kaufpreis: 949.000,00
Provision: 3% des Kaufpreises zzgl. 20% USt.
Wohnfläche: 111,00 m²
Nutzfläche: 166,00 m²
Grundstücksfl.: 220,00 m²
Zimmer: 5
Bäder: 1
WC: 2
Terrassen: 1
Stellplätze: 1
Garten: 100,00 m²
Keller: 55,00 m²
Heizwärmebedarf:  B  41,00 kWh/m²a
fGEE:  A+  0,64
Immobilie merken Exposé

Ausstattung

Parkett, Fliesen, Fußbodenheizung, Zentralheizung, Dusche, Bad mit Fenster, Badewanne, Parkplatz, Wasch/Trockenraum


Immobilie anfragen


Ihre persönliche Beratung

VIEMMO Real Estate GmbH

Julia Pauer

VIEMMO Real Estate GmbH

H +43 676 55 33 478