Spessart: Perfekte Location für Partys & Events: Gastgewerbe mit Discothek samt Dachgeschosswohnungen in Neuhofen

Gastgewerbe , 4501 Neuhofen an der Krems , Lining 34


Die Immobilie befindet sich in der Gemeinde Neuhofen an der Krems in Oberösterreich, genauer gesagt liegt sie im Ortsteil Lining am Hochpunkt von Neuhofen/Krems.

Beschreibung der Immobilie

Spessart: Perfekte Location für Partys & Events: Gastgewerbe mit Discothek samt Dachgeschosswohnungen in Neuhofen

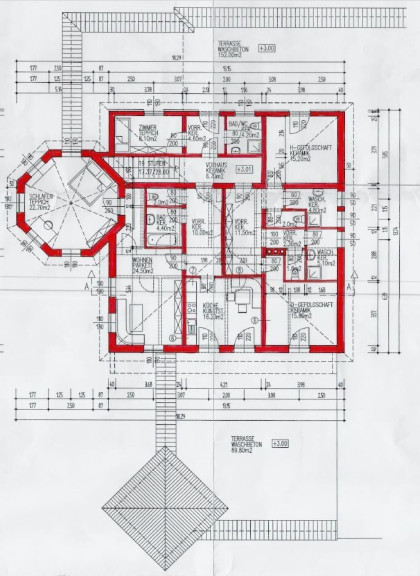
Willkommen in Ihrer neuen Gastgewerbe-Immobilie in 4501 Neuhofen an der Krems, Oberösterreich! Diese einzigartige Discothek Spessart im Erdgeschoss bietet Ihnen auf 639,40m² alles, was Sie für einen erfolgreichen Start in die Gastronomie-Branche benötigen. Mit seiner attraktiven Lage und der außergewöhnlichen Architektur wird dieses Objekt zu einem wahren Juwel für jeden, der von einer eigenen Discothek träumt.



Die teilweise sanierte Immobilie verfügt über 3 Dachgeschosswohnungen mit 2 großzügige Dachterrassen. Genießen Sie den atemberaubenden Fernblick und den idyllischen Grünblick, während Sie Ihren Gästen eine unvergessliche Zeit bieten. Die 28 Stellplätze und die Garage sorgen für ausreichend Parkmöglichkeiten für Ihre Besucher.



Das Highlight dieser Immobilie ist im Erdgeschoss die angrenzende Bar, die unmittelbar zum Tanzen und Feiern einlädt. Hier können Sie Ihre Gäste mit leckeren Cocktails und Getränken verwöhnen und für eine ausgelassene Stimmung sorgen. 



Die Verkehrsanbindung ist optimal. Eine Bushaltestelle befindet sich in unmittelbarer Nähe und der Bahnhof ist ebenfalls in wenigen Minuten erreichbar.



Nutzen Sie die Chance, in die spannende Welt des Gastgewerbes einzutauchen und sich mit dieser Discothek einen lang gehegten Traum zu erfüllen. Der Markt für Unterhaltungsangebote ist stetig wachsend und bietet Ihnen somit beste Voraussetzungen für eine erfolgreiche Geschäftsentwicklung.



Zögern Sie nicht und vereinbaren Sie noch heute einen Besichtigungstermin für diese einzigartige Immobilie. Wir stehen Ihnen jederzeit gerne zur Verfügung und freuen uns darauf, Sie bei Ihrem neuen gastronomischen Projekt zu unterstützen. Lassen Sie sich von der Atmosphäre dieser Discothek verzaubern und werden Sie Teil einer pulsierenden und aufregenden Branche.


Wir weisen darauf hin, dass zwischen dem Vermittler und dem zu vermittelnden Dritten ein familiäres oder wirtschaftliches Naheverhältnis besteht.


Der Vermittler ist als Doppelmakler tätig.

Infrastruktur / Entfernungen

Gesundheit
Arzt <1.000m
Apotheke <1.325m
Klinik <1.000m

Kinder & Schulen
Kindergarten <1.175m
Schule <1.250m

Nahversorgung
Supermarkt <1.275m
Bäckerei <625m
Einkaufszentrum <6.525m

Sonstige
Bank <1.150m
Geldautomat <1.150m
Post <600m
Polizei <1.375m

Verkehr
Bus <550m
Autobahnanschluss <6.200m
Bahnhof <625m
Straßenbahn <9.075m
Flughafen <6.625m

Angaben Entfernung Luftlinie / Quelle: OpenStreetMap

Eckdaten Objektnr. 4417/1570

Art: Gastgewerbe
Land: Österreich
Baujahr: 1958
Zustand: Teil_vollsaniert
Alter: Altbau
Wohnfläche: 161,90 m²
Nutzfläche: 639,40 m²
Grundstücksfl.: 2.167,00 m²
Bäder: 4
WC: 13
Terrassen: 3
Stellplätze: 28
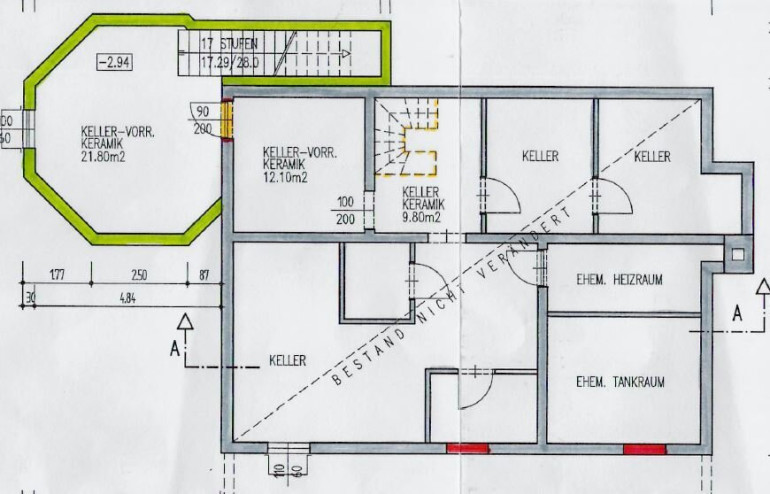
Keller: 122,14 m²
Heizwärmebedarf:  D  108,00 kWh/m²a
fGEE:  C  1,19
Immobilie merken Exposé

Ausstattung

Fliesen, Steinboden, Parkett, Öl, Zentralheizung, Angeschl. Bar, Bad mit Fenster, Dusche, Garage, Parkplatz, Gastterrasse


Immobilie anfragen


Ihre persönliche Beratung

Neuwog Immobilien GmbH

Bmstr. Georg Altmüller

NEUWOG Immobilientreuhand und Liegenschaftserrichtungs GmbH

T +43 7227 2005340

H +43 676 3388238