*** Raum für Ideen – 88,6 m² EG-Wohnung mit 8,15 m² Balkon und guter Energieeffizienz zum individuellen Veredeln in Top-Infrastrukturlage ***

Wohnung , 8600 Oberaich


Beschreibung der Immobilie

*** Raum für Ideen – 88,6 m² EG-Wohnung mit 8,15 m² Balkon und guter Energieeffizienz zum individuellen Veredeln in Top-Infrastrukturlage ***

Wohnen mit Gestaltungsspielraum – 88,6 m² Erdgeschosswohnung mit Balkon in attraktiver Lage



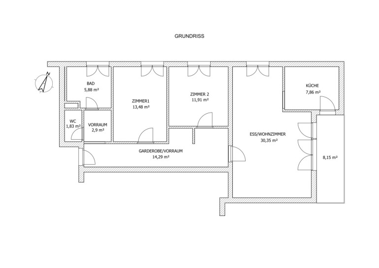
Diese großzügig geschnittene 88,6 m² Erdgeschosswohnung bietet Ihnen die ideale Grundlage, um Ihre ganz persönlichen Wohnvorstellungen zu verwirklichen. Die Immobilie befindet sich in der beliebten Paulahofsiedlungsstraße und überzeugt durch eine sehr gute Infrastruktur sowie solide energetische Kennzahlen.



Der durchdachte Grundriss schafft angenehme Raumverhältnisse mit vielseitigen Nutzungsmöglichkeiten – perfekt für Eigennutzer mit Gestaltungswunsch oder Anleger mit Blick auf Wertsteigerungspotenzial.



Ein besonderes Highlight ist der 8,15 m² große Balkon, der zusätzlichen Freiraum bietet und den Wohnbereich harmonisch erweitert.




Solide Basis mit energetischem Vorteil



Die Wohnung ist renovierungsbedürftig, bietet jedoch bereits eine technisch gute Grundlage:




  • HWB 87,1 kWh/m²a (Klasse C)



  • fGEE 1,33 (Klasse C)



  • 3-Scheiben-Isolierverglasung




Gerade die 3-fach verglasten Fenster stellen einen wertvollen Vorteil dar – sowohl in Bezug auf Energieeffizienz als auch auf Schallschutz und Wohnkomfort. Damit konzentrieren sich künftige Modernisierungsmaßnahmen vor allem auf die optische und innenräumliche Gestaltung.




Sehr gute Infrastruktur – alles in unmittelbarer Nähe



Die Lage in der Paulahofsiedlungsstraße überzeugt durch ihre ausgewogene Kombination aus Wohnruhe und hervorragender Erreichbarkeit.



In unmittelbarer Umgebung befinden sich:




  • Einkaufsmöglichkeiten des täglichen Bedarfs



  • Ärzte und Apotheken



  • Schulen und Kinderbetreuungseinrichtungen



  • Gastronomiebetriebe und Cafés



  • Öffentliche Verkehrsanbindungen



  • Grünflächen und Freizeitmöglichkeiten




Die gute Anbindung ermöglicht eine schnelle Erreichbarkeit des Stadtzentrums sowie wichtiger Verkehrsknotenpunkte – ideal für Berufstätige wie auch Familien.




Fazit



Diese Erdgeschosswohnung bietet eine seltene Gelegenheit:

Großzügige Wohnfläche, Balkon, solide Energiewerte und hervorragende Infrastruktur – kombiniert mit attraktivem Entwicklungspotenzial.



Ein ideales Objekt für Käufer, die nicht „von der Stange“ kaufen möchten, sondern Wert auf Individualität und nachhaltige Wertentwicklung legen.


Der Vermittler ist als Doppelmakler tätig.

Infrastruktur / Entfernungen

Gesundheit
Arzt <500m
Apotheke <1.000m
Krankenhaus <2.500m

Kinder & Schulen
Schule <500m
Kindergarten <500m
Universität <5.500m

Nahversorgung
Supermarkt <500m
Bäckerei <500m
Einkaufszentrum <2.000m

Sonstige
Bank <2.000m
Geldautomat <2.000m
Post <2.000m
Polizei <5.000m

Verkehr
Bus <500m
Autobahnanschluss <2.000m
Bahnhof <3.000m
Flughafen <9.000m

Angaben Entfernung Luftlinie / Quelle: OpenStreetMap

Eckdaten Objektnr. 3812/360

Art: Wohnung
Land: Österreich
Baujahr: 1980
Zustand: Teil_vollrenovierungsbed
Alter: Neubau
Kaufpreis: 115.000,00
Provision: 3% des Kaufpreises zzgl. 20% USt.
Betriebskosten: 118,24 €
Heizkosten: 106,80 €
MwSt Gesamt: 34,43 €
Wohnfläche: 87,00 m²
Zimmer: 5,50
Heizwärmebedarf:  C  87,10 kWh/m²a
fGEE:  C  1,33
Immobilie merken Exposé

Ausstattung

Estrichboden, Zentralheizung, Personenaufzug, Ostbalkon, Bad mit Fenster, Parkplatz


Immobilie anfragen


Ihre persönliche Beratung

RE/MAX Smart

Günter Harrer

RE/MAX Smart

T +43 3862 24717

H +43 660 756 97 30