Großzügige 3-Zimmer-Wohnung mit Ess-Veranda in 4030 Linz | 88,61 m² | beziehbar ab 01.03.2026

Wohnung , 4030 Linz , Erich-Fried-Weg 18


Die Wohnung befindet sich in einer angenehmen Wohnlage im Süden von Linz. Nahversorger, öffentliche Verkehrsmittel sowie Schulen und Kinderbetreuungseinrichtungen sind gut erreichbar. Die Umgebung bietet eine gute Kombination aus ruhigem Wohnen und städtischer Infrastruktur.

Beschreibung der Immobilie

Großzügige 3-Zimmer-Wohnung mit Ess-Veranda in 4030 Linz | 88,61 m² | beziehbar ab 01.03.2026

Linz / Ebelsberg / Ennsfeld / Erich-Fried-Weg 18 :



Am Erich-Fried-Weg 18 in 4030 Linz gelangt diese attraktive 3-Zimmer-Wohnung im 2. Obergeschoss (Top 4) zur Vermietung. Mit einer Wohnfläche von 88,61 m² bietet die Wohnung eine durchdachte Raumaufteilung und ein angenehmes Wohnambiente.

Der großzügige Wohnbereich mit angrenzender Ess-Veranda schafft eine helle und freundliche Atmosphäre. Zwei getrennt begehbare Schlafzimmer bieten ausreichend Platz für Paare oder Familien. Eine separate Küche, ein Abstellraum sowie ein getrenntes WC sorgen für zusätzlichen Komfort im Alltag.



Raumaufteilung & Highlights



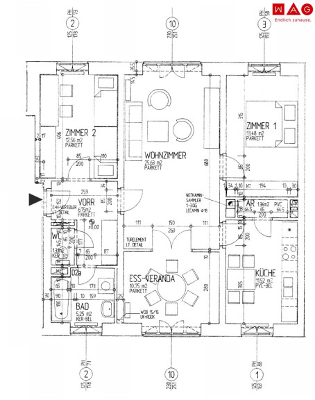
Raumaufteilung



  • Vorraum: 6,75 m²
  • WC (separat): 1,31 m²
  • Badezimmer: 5,25 m²
  • Wohnzimmer: 25,63 m²
  • Ess-Veranda: 10,75 m²
  • Küche: 11,52 m²
  • Schlafzimmer: 12,56 m²
  • Kinderzimmer: 13,48 m²
  • Abstellraum: 1,36 m²


Gesamtwohnfläche: 88,61 m²



Highlights



  • Großzügige 3-Zimmer-Aufteilung
  • Heller Wohnbereich mit Ess-Veranda
  • Separate Küche
  • Zwei Schlafzimmer
  • Getrenntes WC
  • Praktischer Abstellraum
  • Familienfreundliche Wohnungsgröße


Mietkonditionen



  • Miete inkl. Betriebskosten und MwSt.: € 953,23

    (exkl. Strom, Heizung und Warmwasser)
  • Kaution/Baukostenzuschuss: € 3.812,92


Verfügbarkeit



Die Wohnung steht 01.03.2026 zur Verfügung.



Sanierung (Februar 2026)



  • Boden wird erneuert (Küche)
  • Türzargen werden neu lackiert
  • Wohnung wird komplett ausgemalt
  • Badezimmer – neue Badewanne

Sie sind an weiteren Wohnungs- bzw. Gewerbeangeboten interessiert? Ein vielfältiges Angebot finden Sie auf unserer Website.

Zur WAG-Immobiliensuche: SUCHE

Zur WAG-Wohnungsanmeldung: Wohnungsanmeldung

Gerne beraten wir Sie persönlich über unser vielfältiges Angebot, rufen Sie uns einfach an! Und das natürlich ohne Vermittlungsgebühren und provisionsfrei!

Angaben sind ohne Gewähr auf Richtigkeit und Vollständigkeit. Druckfehler vorbehalten.

Infrastruktur / Entfernungen

Gesundheit
Arzt <325m
Apotheke <300m
Krankenhaus <5.050m
Klinik <3.075m

Kinder & Schulen
Kindergarten <350m
Schule <150m
Universität <5.875m
Höhere Schule <7.400m

Nahversorgung
Supermarkt <175m
Bäckerei <500m
Einkaufszentrum <3.850m

Sonstige
Bank <450m
Geldautomat <1.975m
Post <1.975m
Polizei <2.000m

Verkehr
Bus <125m
Straßenbahn <225m
Bahnhof <1.450m
Autobahnanschluss <2.700m
Flughafen <6.150m

Angaben Entfernung Luftlinie / Quelle: OpenStreetMap

Eckdaten Objektnr. 6650/16611

Art: Wohnung
Land: Österreich
Zustand: Gepflegt
Gesamtmiete: 953,23
Kaltmiete (netto): 583,80 €
Kaltmiete: 866,61 €
Betriebskosten: 282,44 €
MwSt Gesamt: 86,62 €
Wohnfläche: 88,61 m²
Zimmer: 3
Bäder: 1
WC: 1
Stellplätze: 1
Heizwärmebedarf:  C  59,00 kWh/m²a
fGEE:  C  1,11
Immobilie merken Exposé

Ausstattung

Fliesen, Parkett, Zentralheizung, Personenaufzug, Badewanne, Kabel/Satelliten-TV, Parkplatz, Wasch/Trockenraum


Immobilie anfragen


Ihre persönliche Beratung

Team Vermietung 3

WAG Wohnungsanlagen GmbH

T +43 (0)50 338 6010