6. Liftstock! Provisionsfreie 3 Zimmer Familienwohnung unweit der Alten Donau

Wohnung , 1220 Wien , An der Schanze


Beschreibung der Immobilie

6. Liftstock! Provisionsfreie 3 Zimmer Familienwohnung unweit der Alten Donau

PROVISIONSFREI für den Käufer!



​Alle verfügbaren Wohnungen finden Sie auf unserer Homepage unter www.mast-immo.at. Um Ihre Suche zu erleichtern, steht Ihnen auf unserer Projektseite www.anderschanze25.at ein Wohnungsnavigator zur Verfügung, der Ihnen hilft, sich einen Überblick über die Lage der einzelnen Wohnungen innerhalb des Komplexes zu verschaffen.​





"An der Schanze 25" - Ihr neues Zuhause, Investment und Vorsorge



Das beeindruckende und exklusive Projekt befindet sich im"Quartier Donaufeld" im beliebten 21. Wiener Gemeindebezirk und repräsentiert einen einzigartigen Gebäudekomplex aus vier Bauteilen mit insgesamt 212 exklusiv ausgestatteten Wohnungen.



Zum Verkauf gelangen 58 Wohnungen in Bauteil A, 45 Wohnungen in Bauteil B und 64 Wohnungen in Bauteil D.



EIGENGRUND! - KEINE PACHT!



Die voraussichtliche Fertigstellung ist Ende 2026 geplant.



Highlights der Liegenschaft:



  • Naturbezogene Fassadengestaltung die sich perfekt in die Umgebung einfügt
  • Direkter Zugang zur Alten Donau über den naturbelassenen Grünzug der am Gebäudeareal angrenzt
  • Echtholzböden
  • Keramischer Fliesenbelag in den Nassräumen
  • 3 - fach verglaste Kunsstofffenster mit Alu Deckschale
  • Schließanlage
  • Personenlift
  • Tiefgarage
  • Heizung und Temperierung mittels Bauteilaktivierung
  • Jede Wohnung mit Freifläche




Lage: Auto adé



Sollten Sie kein Fahrzeug besitzen, ist das bei dieser Adresse kein Hindernis. Zahlreiche Nahversorger, Dinge des täglichen Bedarfs und selbst das beliebte Donauzentrum mit über 262 Shops, Restaurants und Kino befinden sich unmittelbarer Nähe der Liegenschaft. An heißen Sommertagen lädt die, über einen Grünstreifen verbundene, Alte Donau zum Verweilen ein!

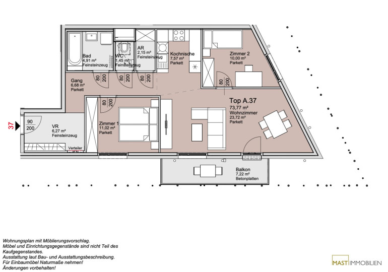
Details Wohnung Bauteil A Top 37:



Die Wohnung befindet sich im 6. Liftstock und verfügt über 73,77 m² Wohnfläche + einen 7,22 m² großen Balkon.



Die Wohnung gliedert sich wie folgt: 



  • Wohnküche ca. 31,29 m²
  • Schlafzimmer ca. 10,00 m²
  • Schlafzimmer ca. 11,02 m²
  • Balkon ca. 7,22 m²
  • Vorraum ca. 6,27 m²
  • Badezimmer ca. 4,91 m²
  • separate Toilette ca. 1,45 m²
  • Abstellraum ca. 2,15 m²
  • Gang ca. 6,68 m²




Der Kaufpreis beträgt für Anleger € 449.000 Netto zzgl. 20% USt. 



Auf unserer Homepage finden Sie eine Übersicht zu allen verfügbaren 3-Zimmer-Wohnungen sowie nähere Details dazu. 


Wir weisen darauf hin, dass zwischen dem Vermittler und dem zu vermittelnden Dritten ein familiäres oder wirtschaftliches Naheverhältnis besteht.


Der Vermittler ist als Doppelmakler tätig.

Infrastruktur / Entfernungen

Gesundheit
Arzt <750m
Apotheke <750m
Klinik <2.000m
Krankenhaus <2.500m

Kinder & Schulen
Schule <750m
Kindergarten <750m
Universität <1.250m
Höhere Schule <1.750m

Nahversorgung
Supermarkt <750m
Bäckerei <1.000m
Einkaufszentrum <1.250m

Sonstige
Geldautomat <1.250m
Bank <1.250m
Post <1.250m
Polizei <750m

Verkehr
Bus <750m
U-Bahn <1.250m
Straßenbahn <750m
Bahnhof <1.250m
Autobahnanschluss <1.750m

Angaben Entfernung Luftlinie / Quelle: OpenStreetMap

Eckdaten Objektnr. 5387/8114

Art: Wohnung
Land: Österreich
Baujahr: 2024
Zustand: Erstbezug
Alter: Neubau
Kaufpreis: 488.000,00
Provision: Provision bezahlt der Abgeber.
Wohnfläche: 73,77 m²
Zimmer: 3
Bäder: 1
WC: 1
Balkone: 1
Keller: 2,20 m²
Heizwärmebedarf:  B  26,50 kWh/m²a
fGEE:  A  0,78
Immobilie merken Exposé

Ausstattung

Parkett, Fliesen, Wohnküche / offene Küche, Personenaufzug, Badewanne, Tiefgarage


Immobilie anfragen


Ihre persönliche Beratung

MAST Immo GmbH

Dolores Markovic

MA.ST Immobilien & Design e.U.

T +43 664 527 36 79