Sanierungsbedürftiges Zweifamilienhaus in Grünlage

Haus - Zweifamilienhaus, 2500 Baden


Grüne, ruhige Wohnlage mit Nähe zu Parkanlagen und Naherholungsgebieten. Gute Anbindung an den öffentlichen Verkehr: • Der Baden Bahnhof ist gut erreichbar – mit Zugverbindungen nach Wien und anderen Regionen. • Zusätzlich gibt es lokale Haltestellen wie Baden Josefsplatz (Straßenbahn/Badener Bahn). Nahversorgung & Infrastruktur sind in Baden sehr gut: Geschäfte des täglichen Bedarfs, Supermärkte, Schulen, Kindergärten, Ärztepraxen und Apotheken sind in der Stadt gut verteilt und meist schnell erreichbar. Pendler-Freundlich: Die Nähe zur A2 Südautobahn und zur Bahnverbindung macht Baden attraktiv für Personen mit Arbeitsort Wien oder anderen Zentren.

Beschreibung der Immobilie

Sanierungsbedürftiges Zweifamilienhaus in Grünlage

Zum Verkauf gelangt ein sanierungsbedürftiges Zweifamilienhaus in schöner, grüner Umgebung mit insgesamt 6 Zimmern.



Das Haus verfügt über zwei getrennte Wohneinheiten mit idealen Grundrissen sowohl im Erdgeschoss als auch im Obergeschoss. Jede Einheit ist mit einer eigenen Küche, einem Badezimmer sowie einem WC ausgestattet und eignet sich daher hervorragend für zwei Familien, Generationenwohnen oder zur Kombination von Wohnen und Vermieten.



Die Liegenschaft entspricht nicht mehr den heutigen Wohnstandards und bedarf einer Generalsanierung. Aufgrund der großzügigen Raumaufteilung und der durchdachten Grundrisse bietet das Haus jedoch ein äußerst attraktives Potenzial zur individuellen Gestaltung. Eine Garage befindet sich direkt im Haus.



Der herrliche Garten mit gewachsenem Baumbestand schafft eine besonders angenehme Atmosphäre. Die sehr grüne Lage rundet dieses interessante Angebot ab.



Details zur Immobilien auf einen Blick:



  • Wohnfläche: ca. 162m²
  • Keller: ca. 78m²
  • Grundstücksgröße: 619m²
  • 6 Zimmer
  • Voll unterkellert
  • Garage
  • Großzügiger Garten
  • Feine Badener Lage
  • Sofort verfügbar


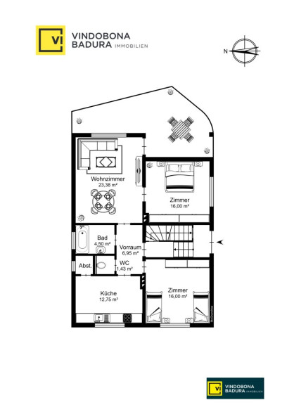
Die Raumaufteilung gliedert sich wie folgt:
Erdgeschoss: Stiegenhaus (8,00m²), Vorraum (6,95m²), Badezimmer (4,50m²), WC (1,43m²), Küche (12,75m²), Speis (1,10m²), Zimmer 1 (16,00m²), Zimmer 2 (16,00m²), Wohnzimmer (23,38m²);

Obergeschoss: Stiegenhaus (8,00m²), Vorraum (4,95m²), Badezimmer (4,50m²), WC (1,43m²), Speis (1,10m²), Küche (12,75m²), Zimmer 1 (16,00m²), Zimmer 2 (16,00m²), Wohnzimmer (23,38m²), Schrankraum (6,37m²);

Keller



Bebauungsbestimmungen:
3 WE möglich, BK I/II, 30%




***Lassen Sie sich zu einer Besichtigung einladen und vereinbaren Sie mit uns einen individuellen Termin***



IHRE FINANZIERUNG IST GESICHERT?



Ein gutes Geschäft haben Sie erst gemacht, wenn alles zusammenpasst. Die Immobilie, der Kaufpreis, die Finanzierung und die Abwicklung. Damit Sie ihr neues Zuhause auch genießen können kommt es gerade auf die ideale Finanzierung an.

Wir vermitteln Ihnen nicht nur die passende Immobilie, wir verhelfen Ihnen auch zur maßgeschneiderten Finanzierung.

Nützen Sie unser kostenloses Finanzservice! Sie werden begeistert sein! Unverbindliche Finanzierungsangebote erhalten Sie innerhalb von 3-5 Werktage ab Erhalt aller notwendigen Unterlagen!


Der Vermittler ist als Doppelmakler tätig.

Infrastruktur / Entfernungen

Gesundheit
Arzt <500m
Apotheke <1.500m
Klinik <1.000m
Krankenhaus <2.500m

Kinder & Schulen
Schule <1.000m
Kindergarten <500m
Höhere Schule <9.500m
Universität <10.000m

Nahversorgung
Supermarkt <500m
Bäckerei <1.500m
Einkaufszentrum <6.000m

Sonstige
Bank <1.000m
Geldautomat <1.000m
Post <1.000m
Polizei <1.500m

Verkehr
Bus <500m
Bahnhof <1.500m
Autobahnanschluss <3.000m
Straßenbahn <1.500m
Flughafen <4.500m

Angaben Entfernung Luftlinie / Quelle: OpenStreetMap

Eckdaten Objektnr. 2051

Art: Haus - Zweifamilienhaus
Land: Österreich
Baujahr: 1966
Zustand: Sanierungsbeduerftig
Möbliert: Voll
Kaufpreis: 559.000,00
Provision: 3% des Kaufpreises zzgl. 20% USt.
Wohnfläche: 162,00 m²
Grundstücksfl.: 619,00 m²
Zimmer: 6
Bäder: 2
WC: 2
Terrassen: 2
Keller: 78,00 m²
Heizwärmebedarf:  G  320,10 kWh/m²a
fGEE:  G  7,51
Immobilie merken Exposé

Ausstattung

Parkett, Fliesen, Öl, Bad mit Fenster, Badewanne, Kabel/Satelliten-TV, Garage


Immobilie anfragen


Ihre persönliche Beratung

Badura Immobilien GmbH

Oliver Badura

Badura Immobilien GmbH

T +43 1 2675755

H 0664 355 92 92