Edelrohbau in TOPLAGE des 9. Bezirks

Einzelhandel , 1090 Wien


- Die U-Bahn-Linie U4 (Station Roßauer Lände) ist in wenigen Gehminuten erreichbar. - Die Straßenbahnlinie D sowie weitere Linien befinden sich in unmittelbarer Nähe und bieten eine rasche Verbindung in die Innenstadt sowie zu wichtigen Verkehrsknotenpunkten. - Zusätzlich sorgen mehrere Buslinien für eine komfortable Erreichbarkeit aus allen Bezirken Wiens.

Beschreibung der Immobilie

Edelrohbau in TOPLAGE des 9. Bezirks

Sehr geehrte Damen und Herren,



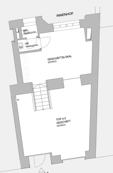
zur Vermietung gelangt eine ca. 68 m² große Geschäftsfläche im Edelrohbau in ausgezeichneter Lage der Porzellangasse 9 im 9. Wiener Gemeindebezirk. Die unmittelbare Nähe zum beliebten Servitenviertel sowie die attraktive Umgebung machen diesen Standort besonders interessant für innovative Geschäftskonzepte.



Gesucht wird ein Nutzungskonzept, das sich harmonisch in die bestehende Infrastruktur und das hochwertige Umfeld einfügt und den Standort optimal ergänzt.



Aufteilung:



  • Geschäftsfläche
  • WC
  • Technikraum


Eckdaten:



  • Fläche: ca. 68,36 m²
  • Nettomiete: € 2.392,60
  • Bruttomiete: € 2.988,42
  • Betriebskosten: € 1,43/m² netto



     


Die Fläche wird im Edelrohbau übergeben und bietet somit ideale Voraussetzungen für eine individuelle Gestaltung nach Ihren Anforderungen.



Besichtigungen sind ab sofort möglich. Ich freue mich auf Ihre Anfrage sowie auf die Vorstellung Ihres Nutzungskonzepts!


Wir weisen darauf hin, dass zwischen dem Vermittler und dem zu vermittelnden Dritten ein familiäres oder wirtschaftliches Naheverhältnis besteht.


Der Vermittler ist als Doppelmakler tätig.

Infrastruktur / Entfernungen

Gesundheit
Arzt <500m
Apotheke <500m
Klinik <1.000m
Krankenhaus <1.000m

Kinder & Schulen
Schule <500m
Kindergarten <1.000m
Universität <500m
Höhere Schule <1.000m

Nahversorgung
Supermarkt <500m
Bäckerei <500m
Einkaufszentrum <2.000m

Sonstige
Geldautomat <500m
Bank <500m
Post <500m
Polizei <500m

Verkehr
Bus <500m
U-Bahn <500m
Straßenbahn <500m
Bahnhof <500m
Autobahnanschluss <2.500m

Angaben Entfernung Luftlinie / Quelle: OpenStreetMap

Eckdaten Objektnr. 271545193

Art: Einzelhandel
Land: Österreich
Kaltmiete (netto): 2.392,60 €
Kaltmiete: 2.490,35 €
Betriebskosten: 97,75 €
MwSt Gesamt: 498,07 €
Nutzfläche: 68,36 m²
Heizwärmebedarf:  F  247,30 kWh/m²a
fGEE:  C  1,39
Immobilie merken Exposé

Ausstattung

Gas, Zentralheizung, Personenaufzug


Immobilie anfragen


Ihre persönliche Beratung

Immobiliaris GmbH

Lea Leichtfried

Immobiliaris GmbH

T +43 664 1607111