Kinderbetreuungg / Gym / Tanzstudio / Büro / Shop etc. - Geschäftslokal // Erstbezug!!
Gastgewerbe
,
1170
Wien
Gesundheit Arzt <75m Apotheke <225m Klinik <450m Krankenhaus <1400m Kinder / Schulen Schule <225m Kindergarten <150m Universität <1875m Höhere Schule <1100m Nahversorgung Supermarkt <200m Bäckerei <200m Einkaufszentrum <600m Verkehr U-Bahn <625m Bahnhof <750m Autobahnanschluss <3550m Sonstige Bank <75m Post <350m Polizei <550m
Beschreibung der Immobilie
Kinderbetreuungg / Gym / Tanzstudio / Büro / Shop etc. - Geschäftslokal // Erstbezug!!
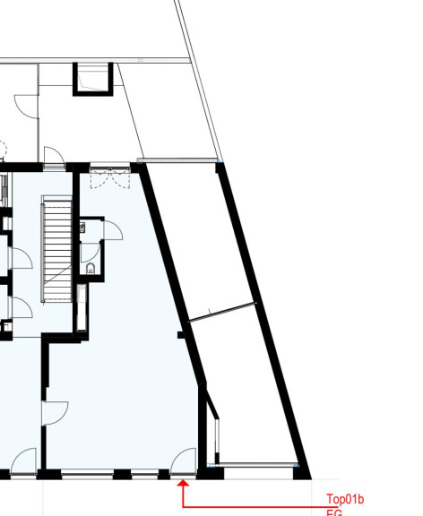
Zur unbefristeten Vermietung steht ein ebenerdiges Geschäftslokal in attraktiver Lage auf der Hernalser Hauptstraße.
Die Liegenschaft verfügt über eine Geschäftsfläche von 63,32 m² sowie ein Lager im Kellergeschoss mit 40,30 m². Eine großzügige Portalverglasung mit Sonnenschutzglas sorgt für optimale Sichtbarkeit und Belichtung.
Das Objekt bietet einen flexiblen Grundriss und diverse potentielle Nutzungsmöglichkeiten, sowie einen Sanitärraum gemäß beiliegendem Plan. Als Bodenbelag wurden hochwertige Marazzi-Fliesen verlegt. Beheizt wird das Lokal mittels Fußbodenheizung, die Kühlung erfolgt über Fan Coils. Ein Teeküchenanschluss ist vorhanden.
Die Wärme- und Kältekosten werden direkt über die Firma TECHEM verrechnet.
Die derzeitigen monatlichen Akontobeträge pro m² Nutzfläche (brutto) betragen:
Betriebskosten Heizung: EUR 1,20/m²
Betriebskosten Warmwasser: EUR 0,25/m²
Betriebskosten Kaltwasser: EUR 0,30/m²
Diverse Nutzungsmöglichkeiten!
- Büro
- Fitness / Gym
- Tanzstudio / Yogaraum
- Kindertagesstätte
- Shop
- Friseur
- Massage / Physio etc.
Weitere Detailunterlagen stellen wir auf Anfrage gerne zur Verfügung.
Infrastruktur / Entfernungen
Gesundheit
Arzt <500m
Apotheke <500m
Klinik <500m
Krankenhaus <1.500m
Kinder & Schulen
Schule <500m
Kindergarten <500m
Universität <2.000m
Höhere Schule <1.500m
Nahversorgung
Supermarkt <500m
Bäckerei <500m
Einkaufszentrum <1.000m
Sonstige
Geldautomat <500m
Bank <500m
Post <500m
Polizei <1.000m
Verkehr
Bus <500m
U-Bahn <1.000m
Straßenbahn <500m
Bahnhof <1.000m
Autobahnanschluss <4.000m
Angaben Entfernung Luftlinie / Quelle: OpenStreetMap
Eckdaten Objektnr. 7328
| Art: | Gastgewerbe |
| Land: | Österreich |
| Baujahr: | 2025 |
| Zustand: | Erstbezug |
| Alter: | Neubau |
| Kaltmiete (netto): | 1.357,50 € |
| Kaltmiete: | 1.573,38 € |
| Betriebskosten: | 215,88 € |
| MwSt Gesamt: | 314,68 € |
| Nutzfläche: | 103,62 m² |
| Lagerfläche: | 40,30 m² |
| Verkaufsfläche: | 63,32 m² |
| WC: | 1 |
| Heizwärmebedarf: | A 20,50 kWh/m²a |
| fGEE: | A 0,73 |
Ausstattung
Fliesen, Fußbodenheizung
Ihre persönliche Beratung
Dieser Makler ist ein offizielles Mitglied des IR – ir.at Mehr Erfahren
