++ Für Anleger oder Golfer I MB IMMOBILIEN ++

Wohnung , 2481 Achau


in schöner ruhiger Wohngegend, nahe Laxenburg

Beschreibung der Immobilie

++ Für Anleger oder Golfer I MB IMMOBILIEN ++

Helle 2‑Zimmer‑Wohnung in Ruhelage – Balkon & 2 Stellplätze – auch für Anleger!



Super Anlegerwohnung - bis 31.10.2027 vermietet.



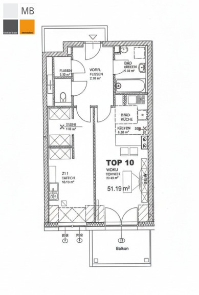
Zum Verkauf steht eine gepflegte, helle 2‑Zimmer‑Wohnung im 2. Stock (ohne Lift) in absoluter Ruhelage einer Sackgasse. Die Wohnung überzeugt durch ihre freundliche Atmosphäre, einen praktischen Grundriss und eine hervorragende Infrastruktur.



Highlights der Wohnung:




  • Helle 2‑Zimmer‑Wohnung mit optimaler Raumaufteilung - super Starterwohnung!



  • Südwestbalkon mit tollem Ausblick



  • 2 PKW‑Stellplätze im Eigentum – eine Rarität!



  • Großes Kellerabteil für viel Stauraum



  • Super Energieausweis - somit niedrige Heizkosten!



  • Ruhige Sackgassenlage – schönes Wohnen ohne Verkehrslärm



  • Vermietet bis Ende 2027 – sofortige Mieteinnahmen für Anleger



  • Betriebskosten inklusive Rep.RL, Steuern, 2 Stellplätze monatlich: EUR 216




Lage & Infrastruktur – alles fußläufig erreichbar



Die Wohnung befindet sich in einer besonders ruhigen Wohngegend, dennoch sind alle wichtigen Einrichtungen in unmittelbarer Nähe:




  • Bahnhof



  • Kindergarten



  • Volksschule



  • SPAR‑Supermarkt



  • Tankstelle




Diese Kombination aus Ruhelage und Top‑Anbindung macht die Immobilie sowohl für Eigennutzer als auch für Investoren äußerst attraktiv.



Schöne Fotos folgen in Kürze!





📞 Jetzt Besichtigung vereinbaren:



Roswitha Adler

0676/4554 267
adler@mb-immobilien.at
Bin (fast) jederzeit erreichbar! Einzelbesichtigung flexibel und spontan möglich





Wir weisen auf unser wirtschaftliches Nahverhältnis mit dem Abgeber und auf unsere Vermittlungstätigkeit als Doppelmakler hin.

Alle Angaben basieren auf Informationen des Eigentümers und wurden mit größter Sorgfalt zusammengestellt.

Für die Richtigkeit, Vollständigkeit und Aktualität dieser Angaben wird keine Gewähr übernommen. Änderungen, Irrtümer und Zwischenverkauf bleiben ausdrücklich vorbehalten. Maßangaben sind Circa-Angaben.

Das Exposé stellt kein verbindliches Angebot dar.

Bei erfolgreichem Abschlussfall fällt eine Käuferprovision in Höhe von 3 % des Kaufpreises zzgl. 20 % USt. an - gemäß Immobilienmaklerverordnung BGBI. 262 und 297/1996.

Infrastruktur / Entfernungen

Gesundheit
Arzt <3.000m
Apotheke <2.500m
Klinik <7.000m
Krankenhaus <7.000m

Kinder & Schulen
Kindergarten <3.000m
Schule <500m
Universität <8.500m
Höhere Schule <7.500m

Nahversorgung
Supermarkt <500m
Bäckerei <1.000m
Einkaufszentrum <4.500m

Sonstige
Bank <500m
Geldautomat <500m
Polizei <3.500m
Post <3.000m

Verkehr
Bus <500m
U-Bahn <7.000m
Bahnhof <1.000m
Straßenbahn <7.000m
Autobahnanschluss <4.000m

Angaben Entfernung Luftlinie / Quelle: OpenStreetMap

Eckdaten Objektnr. 4562

Art: Wohnung
Land: Österreich
Baujahr: 2005
Zustand: Gepflegt
Alter: Neubau
Kaufpreis: 250.000,00
Betriebskosten: 202,00 €
Sonstige Kosten: 14,00 €
Wohnfläche: 54,00 m²
Nutzfläche: 60,00 m²
Zimmer: 2
Bäder: 1
WC: 1
Balkone: 1
Stellplätze: 2
Keller: 6,00 m²
Heizwärmebedarf:  A  30,50 kWh/m²a
Immobilie merken Exposé

Ausstattung

Fliesen, Parkett, Zentralheizung, Einbauküche, Badewanne, Parkplatz


Immobilie anfragen


Ihre persönliche Beratung

Michael Bajer Immobilien

Roswitha Adler

Michael Bajer Immobilien

H +43 676 45 54 267