Neues Wohnbauprojekt in Aschach an der Steyr - jetzt informieren!

Wohnung , 4421 Aschach an der Steyr , Gärtnerstraße 1


Die Immobilie in der Gärtnerstraße 4421 in Aschach an der Steyr überzeugt durch ihre zentrale Lage in Oberösterreich. Umgeben von idyllischer Natur und einer charmanten Gemeinde, profitieren Sie von einer hervorragenden Anbindung. Bus- und Bahnhaltestellen befinden sich in unmittelbarer Nähe, was den täglichen Pendelverkehr erleichtert. Genießen Sie die perfekte Kombination aus Ruhe und urbanem Leben – ideal für Familien und Berufstätige oder Senioren!

Beschreibung der Immobilie

Neues Wohnbauprojekt in Aschach an der Steyr - jetzt informieren!

Willkommen in Ihrem neuen Zuhause in 4421 Aschach an der Steyr, Oberösterreich! Diese wunderschöne Wohnung im 1. Dachgeschoss ist der perfekte Ort für all jene, die modernes Wohnen mit einem Hauch von ländlichem Charme verbinden möchten.



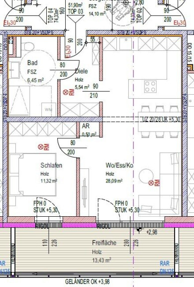
Mit einem Kaufpreis von 249.000,00 € bietet Ihnen diese erstklassige Immobilie auf großzügigen 51,9 m² zwei lichtdurchflutete Zimmer, die Ihnen sowohl Rückzugsorte als auch Platz für geselliges Beisammensein ermöglichen. Die durchdachte Raumaufteilung sorgt dafür, dass jedes Zimmer optimal genutzt werden kann und eine angenehme Wohnatmosphäre entsteht.



Die Wohnung besticht durch ihre hochwertige Ausstattung. Edler Parkettboden verleiht den Räumen eine warme und einladende Atmosphäre, während die eleganten Fliesen in den Nassbereichen sowohl Funktionalität als auch Stil bieten. Die moderne Fußbodenheizung sorgt für ein behagliches Wohnklima und macht kalte Wintertage zu einer angenehmen Erfahrung.



Ein besonderes Highlight dieser Immobilie ist die großzügige Loggia, die nach Süden ausgerichtet ist. Hier können Sie entspannte Stunden im Freien verbringen, die Sonne genießen und den Blick auf die Umgebung schweifen lassen. Ideal für Morgenkaffee oder gesellige Abende mit Freunden und Familie!



Zusätzlich stehen Ihnen zwei Stellplätze zur Verfügung, die Ihnen den Komfort bieten, immer einen Platz für Ihr Fahrzeug zu haben. Der Wasch- und Trockenraum wird Ihnen das Leben erleichtern, und die energieeffiziente Luftwärmepumpe sorgt für niedrige Betriebskosten und umweltfreundliches Wohnen.



Nutzen Sie die Gelegenheit, in dieser modernen Wohnung in einem aufstrebenden Ort zu wohnen und vereinbaren Sie noch heute einen Besichtigungstermin. Lassen Sie sich von der Kombination aus hochwertiger Ausstattung, durchdachtem Design und erstklassiger Lage überzeugen. Ihr neues Zuhause wartet auf Sie!

Infrastruktur / Entfernungen

Gesundheit
Arzt <2.725m
Apotheke <2.775m
Klinik <3.225m
Krankenhaus <2.725m

Kinder & Schulen
Schule <1.425m
Kindergarten <1.225m
Universität <7.225m
Höhere Schule <6.675m

Nahversorgung
Supermarkt <1.825m
Bäckerei <1.200m
Einkaufszentrum <5.300m

Sonstige
Bank <1.425m
Geldautomat <1.425m
Post <1.350m
Polizei <2.550m

Verkehr
Bus <75m
Bahnhof <200m
Flughafen <4.575m

Angaben Entfernung Luftlinie / Quelle: OpenStreetMap

Eckdaten Objektnr. 4417/1537

Art: Wohnung
Land: Österreich
Baujahr: 2027
Zustand: Erstbezug
Alter: Neubau
Kaufpreis: 249.000,00
Wohnfläche: 51,90 m²
Zimmer: 2
Bäder: 1
WC: 1
Balkone: 1
Stellplätze: 1
Keller: 3,65 m²
Heizwärmebedarf:  B  44,60 kWh/m²a
fGEE:  A+  0,75
Immobilie merken Exposé

Ausstattung

Fliesen, Parkett, Fußbodenheizung, Südbalkon, Dusche, Carport, Parkplatz, Wasch/Trockenraum


Immobilie anfragen


Ihre persönliche Beratung

Neuwog Immobilien GmbH

Bmstr. Georg Altmüller

NEUWOG Immobilientreuhand und Liegenschaftserrichtungs GmbH

T +43 7227 2005340

H +43 676 3388238