Terrassenwohnung Top B2 - Neubauprojekt "am MÜHLBACH" Wilhering

Wohnung - Terrassenwohnung, 4073 Wilhering , Mühlbachstraße 30


Beschreibung der Immobilie

Terrassenwohnung Top B2 - Neubauprojekt "am MÜHLBACH" Wilhering

am Mühlbach – Naturnah. Modern. Wertbeständig.



Grün- und Ruhelage mit sehr guter Infrastruktur, direkt am Mühlbach in 4073 Wilhering entsteht ein hochwertiges Neubau-Wohnprojekt mit besonderem Wohngefühl. Errichtet werden drei moderne Wohnhäuser in massiver Bauweise mit jeweils acht durchdacht geplanten Eigentumswohnungen – ein Zuhause für Menschen, die Ruhe, Qualität und Nachhaltigkeit schätzen.



Jedes Haus bietet eine großzügige Gartenwohnung im Gartengeschoss, ideal für alle, die Freiraum im Grünen lieben. Im Erd- und Obergeschoss entstehen jeweils drei helle Wohnungen (2-3 Zimmer) mit gemütlichen Balkonen, während im Dachgeschoss je eine exklusive Penthousewohnung mit weitläufiger Dachterrasse und beeindruckendem Ausblick realisiert wird. Sämtliche Wohnungen sind südwestseitig ausgerichtet und eröffnen einen traumhaften Blick ins Grüne – perfekte Lichtverhältnisse und Sonnenstunden inklusive.



Für zeitgemäßen Wohnkomfort sorgt eine effiziente Luft-Wärmepumpe in Kombination mit einer Photovoltaikanlage am Dach, die nachhaltig niedrige Energiekosten ermöglicht. Ergänzt wird das Angebot durch insgesamt 12 Carport-Stellplätze sowie 29 Kfz-Freistellplätze.



Dieses Wohnprojekt überzeugt nicht nur durch Lage, Architektur und Ausstattung, sondern auch durch ein äußerst attraktives Preis-Leistungs-Verhältnis. Ideal für Familien, Paare und Anleger, die Wert auf nachhaltige Bauweise, hohe Lebensqualität und langfristige Wertbeständigkeit legen.



Ein Ort zum Ankommen, Durchatmen und Zuhause-sein.



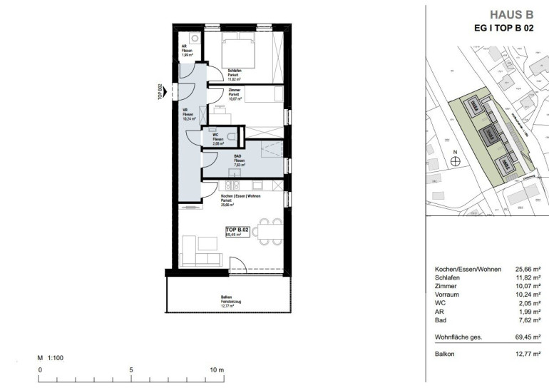
Terrassenwohnung Top B2
Wohnfläche: ca. 699,46 m²

Zimmer: 3

Balkon: ca. 12,77 m²

Kellerabteil: ca. 3,84 m²



Wohnung Top B2   € 319.900,--

2 KFZ Freistellplätze   € 19.800,--

Gesamtkaufpreis   €339.700,--



Der Erwerb der KFZ Stellplätze ist verpflichtend.



Die Kaufpreise für Anleger (Nettokaufpreis zzgl. USt.) werden auf Wunsch gerne zugesendet.





Beim Neubauprojekt am Mühlbach investieren Sie in eine wertstabile, zukunftssichere Immobilie in einer attraktiven Region nahe der OÖ Landeshauptstadt. Ob zur Eigennutzung oder als Kapitalanlage – das Projekt steht für nachhaltiges Wohneigentum in gefragter Lage. Die attraktive Kombination aus Lage, Bauqualität und moderner Architektur garantiert langfristige Wertentwicklung und stabile Renditechancen. Dank der starken Nachfrage nach Wohnimmobilien in und um Linz profitieren Anleger und Eigennutzer gleichermaßen – zusätzlich bietet die Immobilie Schutz vor Inflation durch ihren soliden Sachwertcharakter.





Interesse? Für ein unverbindliches erstes Telefonat, ein Besichtigungstermin Vorort oder ein persönliches Beratungsgespräch in unserem Büro in Wels stehen wir gerne zu Verfügung.

Einfach anrufen, wir freuen uns auf Sie!



Ihr SPERER Immobilien Team 



Stefan Pichler | 0676 4630535 | s.pichler@sperer-group.com


Wir weisen darauf hin, dass zwischen dem Vermittler und dem zu vermittelnden Dritten ein familiäres oder wirtschaftliches Naheverhältnis besteht.


Der Vermittler ist als Doppelmakler tätig.

Infrastruktur / Entfernungen

Gesundheit
Arzt <1.700m
Apotheke <3.425m
Krankenhaus <7.300m
Klinik <2.025m

Kinder & Schulen
Schule <2.350m
Kindergarten <2.275m
Universität <6.000m
Höhere Schule <7.375m

Nahversorgung
Supermarkt <1.775m
Bäckerei <2.850m
Einkaufszentrum <7.075m

Sonstige
Bank <2.475m
Geldautomat <3.450m
Post <3.475m
Polizei <3.950m

Verkehr
Bus <25m
Straßenbahn <5.375m
Bahnhof <2.750m
Autobahnanschluss <5.675m
Flughafen <7.000m

Angaben Entfernung Luftlinie / Quelle: OpenStreetMap

Eckdaten Objektnr. 465

Art: Wohnung - Terrassenwohnung
Land: Österreich
Baujahr: 2026
Zustand: Erstbezug
Alter: Neubau
Kaufpreis: 319.900,00
Kaufpreis / m²: 4.605,53 €
Provision: 3% des Kaufpreises zzgl. 20% USt.
Wohnfläche: 69,46 m²
Zimmer: 3
Balkone: 1
Stellplätze: 2
Keller: 3,84 m²
Heizwärmebedarf:  B  35,00 kWh/m²a
fGEE:  A  0,74
Immobilie merken Exposé

Ausstattung

Parkett, Fliesen, Fußbodenheizung, Zentralheizung, Personenaufzug, Dusche, Kabel/Satelliten-TV


Immobilie anfragen


Ihre persönliche Beratung

SPERER Immobilien GmbH

Ing. Stefan Pichler

Axia Immobilien GmbH - TESTACCOUNT

T +43 7242 306030

H +43 676 4630535