The Unique Villen: Exklusive Villa in wunderschöner Grünruhelage mit Outdoor-Pool & Sauna

Haus - Villa, 1190 Wien , Hackenbergweg 43


Unter-Sievering / Neustift am Walde

Beschreibung der Immobilie

The Unique Villen: Exklusive Villa in wunderschöner Grünruhelage mit Outdoor-Pool & Sauna

Unique Living in Döbling



  • 16 stilvolle Villen mit rund 130 m² Nutzfläche
  • Rund 300 m² Eigengrund je Einheit
  • Einzigartige Ausstattung
  • Charmante Gärten, Terrassen und Balkone
  • Wellness-Oase mit Sauna und Outdoor-Pool
  • Traumhafter Blick über die Weinberge, Wien oder die einzigartige Umgebung
  • PKW-Stellplätze in der Anlage - teilweise mit Carport
  • HWB 42,2 bis 44,8 kWh/m²




Unique Interior Design



Im gekonnten Zusammenspiel großer Ideen und fein durchdachter Details liegt das Geheimnis des Wohlfühl-Erlebnisses der UNIQUE Villen. Die Innenräume zeigen sich dank hochwertiger Eichendielen in natürlicher Schönheit. Große Fenster, die das Sonnenlicht in die Wohnräume lassen und den Blick in die Natur ermöglichen, schaffen Anklänge an die ikonische Architektur des Wohnprojekts. Das Design-Konzept der Bäder überzeugt durch hochwertiges Feinsteinzeug und modernste Markensanitärprodukte, die für eine einladende und exquisite Atmosphäre sorgen. Ergänzt wird der Wohnkomfort mit technischen Add-Ons, wie einem integrierten Radio im Bad und einer Smart-Home-Steuerung, über welche Temperatur und Beleuchtung von überall aus per App gesteuert werden können.



  • Hochwertige Eichendielen
  • Holz-Alu-Fenster mit Isolierverglasung
  • Fußbodenheizung
  • Elektrischer Sonnenschutz
  • Klimaanlage
  • Vorbereitung für Außenküchen
  • E-Ladestation optional
  • Smart-Home-Steuerung
  • Sauna und Outdoor-Pool
  • PKW-Stellplätze in der Anlage - teilweise mit Carport
  • Aufbewahrungsbox für Gartengeräte

     


Unique Location



Manche Orte umgibt ein einzigartiges Flair, das dazu einlädt, sie zu entdecken. Der Stadtteil Sievering im Herzen von Döbling ist so ein besonderer Ort. Auf den Ausläufern des Pfaffenbergs, des Schenkenbergs und über dem Tal des Arbesbaches liegen die namhaften Sieveringer Weingärten. Zwischen den Reben sitzen, regionale Schmankerl verköstigen und ein erfrischendes Glas Wein genießen. In kürzester Zeit gelangt man vom pulsierenden Wiener Stadtzentrum in den Weinort Sievering, wo Wandern auf Genuss trifft. 



Anbindung:



  • 25 Minuten ins Stadtzentrum mit dem Auto
  • 41 Minuten öffentlich zum Schottentor
  • 10 Minuten Fußweg zur Linie 35A
  • 34 Minuten öffentlich zur S+U Spittelau


Der 360° Panorama-Rundgang über den man sich einen tollen Überblick über die Villen verschaffen kann, ist ein Beispiel-Rundgang durch Villa 7.



Besuchen Sie auch gerne die Projektwebsite www.the-unique.at für weitere Informationen und eine und 3D Darstellungen der Villen.

 

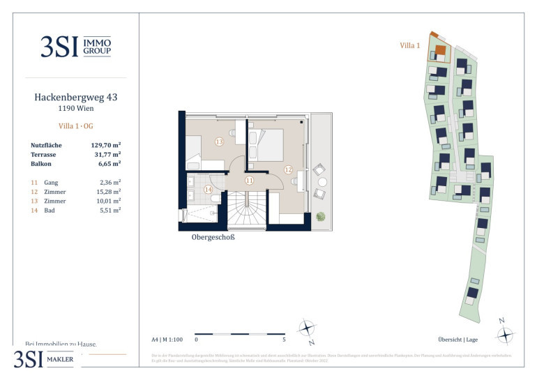
Villa 1 am Hackenbergweg 43



Am sonnigen Südhang des Hackenbergs im Herzen Sieverings verführt diese Villa mit knapp 130 m² Nutzfläche auf 3 Ebenen, einer privaten Sauna und eigenem Outdoor-Pool. Ausgestattet mit stilvoller Eleganz und erlesenem Geschmack.



Erdgeschoß: Vorraum, WC, Wohnküche, 32 m² Terrasse



Untergeschoß: Schlafzimmer, Bad mit Dusche, Wanne und WC, Sauna, Ruhebereich mit Dusche, Technikraum, WC, Zugang zum Pool und 192 m² Garten



Obergeschoß: 2 Schlafzimmer, Bad mit Doppelwaschbecken, Dusche und WC, 7 m² Balkon



Jede Villa besitzt außerdem einen PKW-Stellplatz in der Anlage.



Diese dargestellten Pläne sind sind Vorabzüge. Der Planung und Ausführung sind bauliche Änderungen und Änderungen der Ausstattung vorbehalten. 

Planstand: Oktober 2021





Der Verkaufspreis für Eigennutzer beträgt EUR 1.649.000,00.



Der Verkaufspreis für Anleger beträgt EUR 1.533.570,00. zzgl. 20% USt.





Nebenkosten



Der guten Ordnung halber halten wir fest, dass, sofern im Angebot nicht anders vermerkt, bei erfolgreichem Abschlussfall eine Provision anfällt, die den in der Immobilienmaklerverordnung BGBI. 262 und 297/1996 festgelegten Sätzen entspricht – das sind 3 % des Kaufpreises zzgl. 20 % USt. Diese Provisionspflicht besteht auch dann, wenn Sie die Ihnen überlassenen Informationen an Dritte weitergeben. Es besteht ein wirtschaftliches Naheverhältnis zum Verkäufer.



Die Vertragserrichtung und Treuhandabwicklung ist gebunden an die Kanzlei Mag. Schreiber A-1010 Wien, Schottenring 16. Die Kosten betragen 1,5 % des Kaufpreises zzgl. 20 % USt. sowie Barauslagen und Beglaubigung. Bei Fremdfinanzierung erhöht sich das Honorar auf 1,8 % vom Kaufpreis zzgl. 20 % USt., Barauslagen und Beglaubigung.

Infrastruktur / Entfernungen

Gesundheit
Arzt <500m
Apotheke <500m
Klinik <2.050m
Krankenhaus <2.500m

Kinder & Schulen
Schule <975m
Kindergarten <450m
Universität <1.975m
Höhere Schule <2.100m

Nahversorgung
Supermarkt <450m
Bäckerei <875m
Einkaufszentrum <3.400m

Sonstige
Geldautomat <1.025m
Bank <1.025m
Post <500m
Polizei <1.475m

Verkehr
Bus <250m
U-Bahn <3.025m
Straßenbahn <1.025m
Bahnhof <2.375m
Autobahnanschluss <3.950m

Angaben Entfernung Luftlinie / Quelle: OpenStreetMap

Eckdaten Objektnr. 21882

Art: Haus - Villa
Land: Österreich
Baujahr: 2022
Zustand: Erstbezug
Alter: Neubau
Kaufpreis: 1.533.570,00
Provision: 3% des Kaufpreises zzgl. 20% USt.
Nutzfläche: 129,70 m²
Grundstücksfl.: 275,00 m²
Zimmer: 4
Bäder: 3
WC: 4
Balkone: 1
Terrassen: 1
Stellplätze: 1
Garten: 191,75 m²
Heizwärmebedarf:  C  44,80 kWh/m²a
Immobilie merken Exposé

Ausstattung

Dielenboden, Fliesen, Parkett, Fußbodenheizung, Wohnküche / offene Küche, Bad mit Fenster, Badewanne, Dusche, Carport, Parkplatz, Sauna, Swimmingpool


Immobilie anfragen


Ihre persönliche Beratung

3SI Makler GmbH

Georg Mels-Colloredo

IMMOfair

T +43 1 607 58 58 - 51

H +43 676 79 05 825

F +43 1 607 55 80