Industriekultur neu gedacht
Wohnung
,
1120
Wien
Beschreibung der Immobilie
Industriekultur neu gedacht
Wohnen im preisgekrönten Revitalisierungsprojekt
In der Bonygasse 2–8 im 12. Wiener Gemeindebezirk entstand durch die behutsame Revitalisierung einer ehemaligen Metallwarenfabrik ein außergewöhnliches Wohn- und Geschäftsensemble mit unverwechselbarem Charakter. Das historische Bestandsgebäude wurde in den Jahren 2011–2012 umfassend totalsaniert und teilweise durch Neubauten ergänzt.
Das Projekt verbindet industrielle Substanz mit zeitgemäßem Wohnkomfort und moderner Architektur. Für die qualitätsvolle Umsetzung wurde die Anlage 2012 mit dem Wiener Stadterneuerungspreis ausgezeichnet. Es entstanden 62 hochwertig ausgestattete Wohnungen mit durchdachten Grundrissen sowie ergänzende Geschäftsflächen. Der Erstbezug erfolgte nach vollständiger Renovierung und Modernisierung.
Die Kombination aus Geschichte, architektonischer Qualität und moderner Technik macht das Projekt zu einer besonderen Adresse im aufstrebenden Meidlinger Umfeld.
Die Ausstattung
Die Wohnungen überzeugen durch hochwertige Materialien, klare Linien und ein modernes Wohngefühl. Großzügige Fensterflächen und teilweise überdurchschnittliche Raumhöhen – typisch für ehemalige Fabriksgebäude – sorgen für viel Tageslicht und ein offenes Ambiente.
- Tiefgarage mit ca. 30 Stellplätzen
- Erstbezug nach Sanierung
- Beheizung über Fernwärme
- Holz-/Alufenster mit sehr guten Wärmedämmwerten
- Hohe Fensterflächen für helle Wohnräume
- Parkettböden in den Wohn- und Schlafbereichen
- Feinsteinzeug in Bädern und Nassräumen
- Einlagerungsräume für die Wohnungen
- Fahrradraum
- Kinderspielplatz
Die Ausstattung verbindet langlebige Qualität mit zeitloser Ästhetik und unterstützt ein komfortables, urbanes Wohnen.
Die Lage
Die Liegenschaft befindet sich in einem dynamischen Wiener Stadtteil mit gewachsener Infrastruktur und guter Anbindung. Das Umfeld ist geprägt von einer Mischung aus Wohnhäusern, revitalisierten Gewerbeobjekten und modernen Neubauten.
Die Lage bietet eine gelungene Balance zwischen urbanem Leben und ruhiger Wohnatmosphäre. Nahversorger, Cafés, Dienstleister und lokale Einkaufsmöglichkeiten befinden sich in unmittelbarer Umgebung.
- Bahnhof Wien Meidling in gut erreichbarer Nähe (S-Bahn, Regional- & Fernzüge)
- U6 (Niederhofstraße / Bahnhof Meidling) mit schneller Nord-Süd-Verbindung
- Mehrere Buslinien im direkten Umfeld
- Straßenbahnanschlüsse in Bezirksnähe
- Badner Bahn im erweiterten Einzugsgebiet
- Gute Anbindung an Gürtel und Hauptverkehrsachsen
- Rasche Erreichbarkeit der Süd- und Westausfahrt
Der Verkauf erfolgt mit einer Vermittlungsprovision in Höhe von 3% des Kaufpreises zzgl. USt.
Beziehbar: ab sofort
Wir weisen darauf hin, dass zwischen dem Vermittler und dem zu vermittelnden Dritten ein familiäres oder wirtschaftliches Naheverhältnis besteht.
Der Vermittler ist als Doppelmakler tätig.
Infrastruktur / Entfernungen
Gesundheit
Arzt <500m
Apotheke <500m
Klinik <500m
Krankenhaus <1.500m
Kinder & Schulen
Schule <500m
Kindergarten <500m
Universität <500m
Höhere Schule <500m
Nahversorgung
Supermarkt <500m
Bäckerei <500m
Einkaufszentrum <500m
Sonstige
Geldautomat <500m
Bank <500m
Post <500m
Polizei <500m
Verkehr
Bus <500m
U-Bahn <500m
Straßenbahn <500m
Bahnhof <500m
Autobahnanschluss <3.000m
Angaben Entfernung Luftlinie / Quelle: OpenStreetMap
Eckdaten Objektnr. 93078
| Art: | Wohnung |
| Land: | Österreich |
| Zustand: | Voll_saniert |
| Alter: | Neubau |
| Kaufpreis: | 470.000,00 € |
| Provision: | 3% des Kaufpreises zzgl. 20% USt. |
| Betriebskosten: | 170,96 € |
| Heizkosten: | 143,61 € |
| MwSt Gesamt: | 47,96 € |
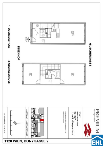
| Wohnfläche: | 85,48 m² |
| Zimmer: | 3 |
| Bäder: | 1 |
| WC: | 1 |
| Heizwärmebedarf: | B 46,47 kWh/m²a |
| fGEE: | C 1,08 |
Ausstattung
Fliesen, Parkett, Fernwärme, Einbauküche, Personenaufzug, Nordbalkon, Badewanne
Ihre persönliche Beratung
Dieser Makler ist ein offizielles Mitglied des IR – ir.at Mehr Erfahren
