Beschreibung der Immobilie
Verkaufseinheit in zentraler Lage
Objektbeschreibung
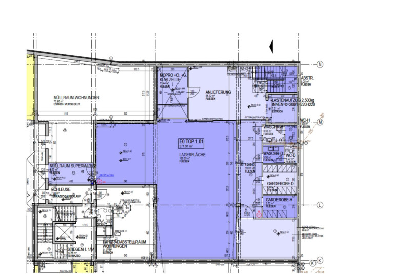
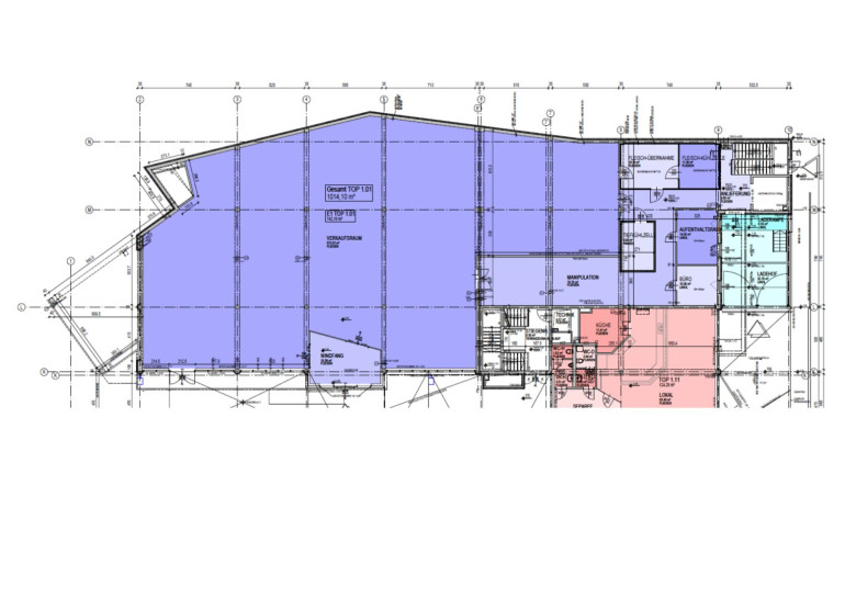
Zur Vermietung gelangt ein großzügiges Verkaufslokal in der Liegenschaft 3830 Waidhofen an der Thaya, das zuletzt als Supermarkt genutzt wurde. Die Einheit weist eine funktionale Grundstruktur für den Einzelhandel sowie für handelsnahe Dienstleistungsnutzungen auf und ist aufgrund ihrer bestehenden Ausstattung kurzfristig adaptierbar. Die Verkaufsflächen sind ebenerdig angeordnet und ermöglichen eine klare Trennung von Verkaufs-, Lager- und Nebenbereichen. Im Untergeschoß befinden sich weitere Lagerflächen sowie Räumlichkeiten des Personals.
Der angegebene Mietzins dient als Richtwert. Auf Grundlage geplanter Ausstattungsinvestitionen oder individueller Flächenanpassungen kann der Mietpreis im Einzelfall angepasst werden.
Ausstattung und Raumaufteilung
Das Objekt verfügt über einen weitläufigen Verkaufsraum mit guter Belichtung sowie über umfangreiche Nebenflächen. Vorhanden sind getrennte Umkleiden und Waschräume für Damen und Herren, wodurch arbeitsrechtliche und organisatorische Anforderungen für Personal bereits erfüllt werden. Ergänzend stehen eine Tiefkühlzelle sowie zwei Kühlzellen zur Verfügung, die insbesondere für den Lebensmittelhandel, die Gastronomie-Vorbereitung oder andere kühlpflichtige Nutzungen von Vorteil sind. Zusätzliche Lager- und Funktionsräume ermöglichen eine effiziente Warenlogistik innerhalb des Objekts.
Lage und Umfeld
Die Liegenschaft befindet sich in zentraler Lage von Waidhofen an der Thaya, in unmittelbarer Nähe zum Stadtzentrum. Das direkte Umfeld stellt eine etablierte Geschäfts- und Versorgungsachse dar, die sowohl von lokalem Kundenverkehr als auch von Durchzugsfrequenz profitiert. Die Umgebung ist geprägt von Einzelhandelsbetrieben, Dienstleistern, Banken sowie öffentlichen Einrichtungen, wodurch eine kontinuierliche Kundenfrequenz gegeben ist.
Infrastruktur und Erreichbarkeit
Die Anbindung an den Individualverkehr ist aufgrund der zentralen innerstädtischen Lage als gut zu bewerten. Öffentliche Stellplätze befinden sich im näheren Umfeld. Öffentliche Verkehrsmittel sind fußläufig erreichbar, ebenso wie weitere infrastrukturelle Einrichtungen des täglichen Bedarfs. Die Nähe zu Wohngebieten erhöht zusätzlich das Potenzial für frequenzabhängige Nutzungen.
Standortvorteile und Nutzungsperspektive
Zwar ist die Immobilie historisch als Supermarkt konzipiert, sie eignet sich jedoch aufgrund ihrer Größe, der vorhandenen Kühl- und Lagerinfrastruktur sowie der zentralen Lage auch für alternative Konzepte im Einzelhandel, für Fachmärkte, Abhol- und Zustellformate oder kombinierte Verkaufs- und Dienstleistungsnutzungen. Ob eine umfassende Umnutzung erfolgt, ist offen; klar ist hingegen, dass die bestehende Infrastruktur einen raschen und wirtschaftlichen Start ermöglicht.
Ausblick
Das Verkaufslokal bietet eine solide Basis für langfristige gewerbliche Nutzung in einem stabilen regionalen Marktumfeld. Die Kombination aus zentraler Lage, funktionaler Ausstattung und gewachsener Infrastruktur macht den Standort zu einer nachhaltigen Option für unterschiedliche Branchen.
Eckdaten Objektnr. 4235
| Art: | Einzelhandel |
| Land: | Österreich |
| Kaltmiete (netto): | 6.995,00 € |
| Kaltmiete: | 9.163,10 € |
| Provision: | 2 Bruttomonatsmieten zzgl. 20% USt. |
| Betriebskosten: | 2.168,10 € |
| MwSt Gesamt: | 1.832,62 € |
| Nutzfläche: | 1.020,85 m² |
| Gesamtfläche: | 1.020,85 m² |
| Lagerfläche: | 438,44 m² |
| Verkaufsfläche: | 572,02 m² |
| Bürofläche: | 10,39 m² |
Ihre persönliche Beratung
Dieser Makler ist ein offizielles Mitglied des IR – ir.at Mehr Erfahren
