Wohnen-Praxis-Büro-Airbnb U4 Station Ober St. Veit

Wohnung , 1130 Wien


Beschreibung der Immobilie

Wohnen-Praxis-Büro-Airbnb U4 Station Ober St. Veit

Vielfältige Nutzung möglich (Wohnung, Büro, Praxis, Kurzzeitmiete) bei U4 Station Ober St. Veit



Ideal für Eigennutzer oder Anleger zum Vermieten 



gemischtes Baugebiet Wohnen und Gewerbe möglich!!! - optional auch für Kurzzeitvermietungen



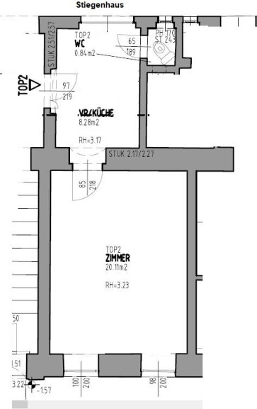
Top 2, Altbau zum Renovieren, Hochparterre, 1 Zimmer, Vorraum mit Küchenanschlüssen, extra WC (mit integrierter Dusche im WC)



Bad- und Kücheneinbau möglich,



3 Minuten Gehweg zur U-Bahnstation U4 Ober St. Veit - Fenster zeigen auf den Hietzinger Kai



Bis Ende 2027 werden das Stiegenhaus sowie die Außenfassade renoviert. Für die Käufer der Wohnungen erfolgt dies ohne Zusatzkosten 



monatliche Kosten:



  • Betriebskosten netto €55,98 zuzüglich USt.
  • zuzüglich gesetzlicher Rücklage €37,50


Auf Ihre Anfrage freut sich:



Ihr REAL3-Team

REAL3 Immobilien GmbH

info@real3.at



0699 131 00 317



Nebenkosten bei Kaufverträgen



Grunderwerbsteuer : 3, 5%



Grundbuchseintragungsgebühr : 1, 1%



Kosten der Vertragserrichtung und grundbücherlichen Durchführung nach Vereinbarung im Rahmen der Tarifordnung des jeweiligen Urkundenerrichters sowie Barauslagen für Beglaubigungen und Stempelgebühren



Energieausweis 196,27 kWh/m².a



Der Kennwert des Gesamtenergieeffizienzfaktors fGEE wird in dem für dieses Objekt ausgestellten Energieausweis, welcher aufgrund der Übergangsbestimmung zum EAVG 2012 auf die Dauer von 10 Jahren ab Erstellung weiterhin Gültigkeit hat, nicht ausgewiesen und deshalb wird in diesem Inserat nur die Energieklasse angeführt. Alle Informationen, insbesondere jene hinsichtlich des Energieausweises beruhen auf den Auskünften und Unterlagen des Eigentümers. Wir haben weder die Richtigkeit oder Vollständigkeit der Angaben noch die tatsächliche Gesamtenergieeffizienz überprüft und übernehmen hierfür keine Gewähr. Wir weisen darauf hin, dass zum Auftraggeber ein wirtschaftliches Naheverhältnis besteht. Unsere Angebote sind freibleibend und unverbindlich. Zwischenverkauf, -vermietung oder -verpachtung durch den zu vermittelnden Dritten sind vorbehalten. Der Immobilienmakler erklärt, dass er - entgegen dem in der Immobilienwirtschaft üblichen Geschäftsgebrauch des Doppelmaklers - einseitig nur für den Vermieter tätig ist.


Wir weisen darauf hin, dass zwischen dem Vermittler und dem zu vermittelnden Dritten ein familiäres oder wirtschaftliches Naheverhältnis besteht.

Infrastruktur / Entfernungen

Gesundheit
Arzt <500m
Apotheke <500m
Klinik <2.000m
Krankenhaus <1.000m

Kinder & Schulen
Schule <500m
Kindergarten <1.000m
Universität <1.000m
Höhere Schule <4.000m

Nahversorgung
Supermarkt <500m
Bäckerei <500m
Einkaufszentrum <4.000m

Sonstige
Geldautomat <500m
Bank <1.000m
Post <1.000m
Polizei <1.000m

Verkehr
Bus <500m
U-Bahn <500m
Straßenbahn <1.000m
Bahnhof <500m
Autobahnanschluss <4.500m

Angaben Entfernung Luftlinie / Quelle: OpenStreetMap

Eckdaten Objektnr. 5853/3637

Art: Wohnung
Land: Österreich
Baujahr: 1909
Alter: Altbau
Kaufpreis: 129.000,00
Betriebskosten: 55,89 €
MwSt Gesamt: 5,59 €
Wohnfläche: 29,23 m²
Nutzfläche: 29,23 m²
Zimmer: 1
WC: 1
Immobilie merken Exposé

Immobilie anfragen


Ihre persönliche Beratung

REAL3 Immobilien GmbH

REAL3 Immobilien GmbH

REAL3 Immobilien GmbH

T +431997159317

H +43 699 131 00 317