Repräsentative Wohn- und Geschäftsliegenschaft in begehrter Toplage von Leoben-Göss

Haus , 8700 Leoben


Beschreibung der Immobilie

Repräsentative Wohn- und Geschäftsliegenschaft in begehrter Toplage von Leoben-Göss

Diese gemischt genutzte Liegenschaft im Zentrum von Leoben-Gössbietet eine ideale Kombination aus laufenden Erträgen, kurzfristig verfügbaren Nutzungschancen und langfristigem Entwicklungspotenzial. Die ausgewogene Mischung aus Wohnungen, Gastronomie und Gewerbe, ergänzt durch ggf. Ausbaureserven (Rücksprache Bauamt) und bestandsfreie Einheiten, macht das Objekt besonders attraktiv für Investoren, Family Offices, Stiftungen sowie professionelle Eigennutzer.



Das ursprüngliche Baujahr ist nicht eindeutig dokumentiert, erste Hinweise deuten auf eine Errichtung um 1824 hin. In den drauffolgenden Jahrzehnten wurde das Gebäude  kontinuierlich an neue Nutzungen angepasst, umfassend erweitert und instand gehalten.



Das gesamte Grundstück beträgt laut GB 1.286 m² und weist KG 0,5-1,5 Widmung auf und unterliegt der Ortsbildschutzzone. Kein Denkmalschutz.



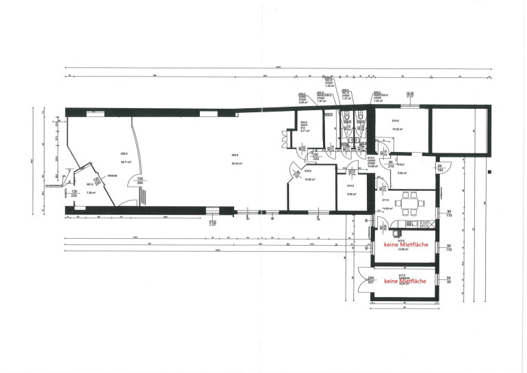
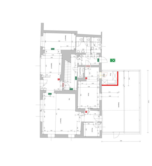
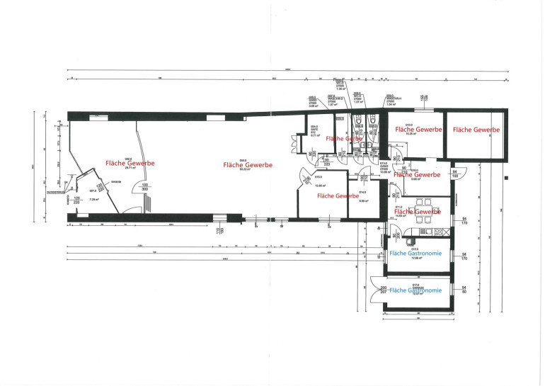
HINWEIS: Bei den Grundrissskizzen handelt es sich um schematische Darstellungen - Maße nicht verbindlich





KURZPROFIL



  • Standort: Leoben-Göss (Zentrum, fußläufig zur Innenstadt)
  • Nutzung: Wohnen / Gastronomie / Gewerbe
  • guter baulicher Zustand, laufend investiert




  • 4 WOHNUNGEN
  • PREMIUM-GASTRONOMIEFLÄCHE
  • GESCHÄFTSFLÄCHE
  • ROHNDACHBODEN
  • GARTEN
  • GARAGE & mehrere PKW-STELLPLÄTZE
  • TEILKELLER




OBJEKTSTRUKTUR



Erdgeschoss



  • Gastronomiebetrieb (befristet vermietet) - 143,50 m² + 12,66 m² + Garage
    umfassend saniert 2022/2023:
  • Ablöse für Gastronomiefläche separat -  ist nicht im Kaufpreis enthalten! 
    • Technik, Böden, Wände, Sanitäranlagen
    • hochwertiger Gastraum
    • architektonisch ansprechend überdachter Gastgarten  ca. 65 m² ausgeführt in Ytong und Glasflächen sowie lichtdurchlässigem Glasdach mit Beschattung und barrierefreier Zugang

      kein Sanierungsrückstau, stabile Einnahmequelle
    • Gasanschluss zum Kochen
    • EAW: HWB: E/199,5  fGEE: D/1,80 (gültig bis 21.04.2030)





  • barrierefreie Geschäftsfläche – 205,66 m²

    • ab April 2026 bestandsfrei
    • repräsentatives Foyer
    • heller, freundlicher Eingangsbereich
    • Küchenbereich & Sanitäranlagen
    • flexible, klar strukturierte Raumaufteilung

       Ideal für Praxis-, Therapie-, Beratungs- Verkaufs- oder Bildungsnutzungen
       rasche Neuvermietung mit minimalem Adaptierungsaufwand





1. Obergeschoss – Wohnungen



Zugang hofseitig, ruhig und abgeschirmt, überdachter Eingangsbereich




Alle Wohnungen verfügen über



  • Zugang zum ca. 15 m² überdachten Allgemein-Balkon
  • Gegensprechanlage
  • Postkasten
  • eigene Strom-, Wasser- & Wärmezähler


Wohnung 1



  • 95,19 m²
  • Küche, 3 Zimmer, Kabinett
  • geräumiger Vorraum
  • Bad & separates WC
  • bestandsfrei - sofort nutzbar oder neu vermietbar – ideale Werthebel-Einheit


Wohnung 2



  • 36,38 m²
  • Wohnküche, Zimmer, Bad/WC
  • befristet vermietet (bis 28.02.2026)


Wohnung 3



  • 26,68 m²
  • Küche, Zimmer, Bad/WC
  • befristet vermietet


Wohnung 4



  • 58,72 m²
  • umfassend saniert
  • befristet vermietet




2. Obergeschoss – Dachboden



  • nicht ausgebauter Rohdachboden


Außenanlagen & Infrastruktur



  • südseitig gelegener Garten
  • Garage
  • mehrere PKW-Stellplätze
  • asphaltierte Parkflächen (2018 erneuert)
  • Neubau überdachte Müllinsel
  • Neubau überdachte Fahrradabstellfläche


 Nachhaltige Investitionen in den letzten Jahren sichern langfristige Werthaltigkeit





Lage & Standortqualität



Zentral, urban & nachgefragt



  • Ortszentrum Leoben-Göss
  • wenige Gehminuten zur Innenstadt Leoben
  • hervorragende öffentliche Anbindung


Bildungs- & Gesundheitsstandort



  • Montanuniversität Leoben
  • FH JOANNEUM
  • HTL, Polytechnikum
  • Kindergarten


konstante Nachfrage nach Wohn- und Praxisflächen



Wirtschaftliches Umfeld



  • Mayr-Melnhof
  • Gösser Brauerei
  • RHI Magnesita
  • Stift Göss


Stabile Beschäftigungsstruktur = langfristige Nutzungssicherheit





Investment-Highlights



  •  laufende Einnahmen + bestandsfreie Einheiten
  •  attraktive Mischung aus Wohnen, Gewerbe & Gastronomie
  •  absehbare Neuverwertungsoptionen (Wohnung & Geschäftsfläche)
  •  ggf. Ausbaureserve im Dachgeschoss (vorbehaltlich behördlicher Genehmigungen)
  •  sehr guter baulicher Zustand
  •  einer der stärksten Bildungs- und Wirtschaftsstandorte der Obersteiermark




Fazit für Investoren



Diese Liegenschaft bietet eine überdurchschnittliche Kombination aus Stabilität, Flexibilität und Entwicklungspotenzial
Die bestandsfreien und künftig bestandsfreien Flächen ermöglichen gezielte Wertsteigerung, während bestehende Mietverhältnisse für laufende Erträge und Risikostreuung sorgen



Ein Objekt mit klarer Zukunftsperspektive in nachhaltiger Toplage!







Haftungsausschluss



Dieses Exposé dient ausschließlich der unverbindlichen Vorabinformation und stellt kein rechtlich bindendes Angebot dar. Sämtliche Angaben, Darstellungen und Flächenangaben erfolgen ohne Gewähr und basieren auf den uns vorliegenden Informationen des Eigentümers bzw. Dritter.



Die enthaltenen Grundrisse sind schematische Darstellungen und nicht maßstabsgetreu. Maßangaben, Flächen und Ausstattungsmerkmale können von der tatsächlichen Ausführung abweichen. Eine Haftung für Abweichungen, Irrtümer oder Änderungen wird ausgeschlossen. Maßgeblich sind ausschließlich die Inhalte des notariellen Kaufvertrags bzw. Mietvertrags.



Alle Daten stammen vom Eigentümer, der Baubehörde oder der Verwaltung und wurden mit Sorgfalt erhoben. Für die Richtigkeit und Vollständigkeit kann keine Haftung übernommen werden. Es wird darauf hingewiesen, dass sich der Interessent vor Abschluss des Rechtsgeschäftes aus eigener Wahrnehmung d.h. Besichtigung vom Objekt zu überzeugen hat. Zahlenangaben können gerundet oder geschätzt sein. Das Anbot ist freibleibend und unverbindlich. Irrtümer und Änderungen vorbehalten. Alle Kauf und Mietpreise sind exklusive Nebenkosten und Maklerhonorar angeführt. Auf ein allfälliges wirtschaftliches oder persönliches Nahe Verhältnis wird hingewiesen. Wir weisen darauf hin, dass die Firma Immobilien Christian Rossik kraft bestehenden Geschäftsgebrauch als Doppelmakler tätig ist (§5 Abs. 3 Maklergesetz). Die nachgezeichneten Pläne können von den originalen Plänen abweichen und sind nicht maßstabgetreu.




Hinweis gemäß Energieausweisvorlagegesetz: Ein Energieausweis wurde vom Eigentümer bzw. Verkäufer, nach unserer Aufklärung über die generell geltende Vorlagepflicht, sowie Aufforderung zu seiner Erstellung noch nicht vorgelegt. Daher gilt zumindest eine dem Alter und der Art des Gebäudes entsprechende Gesamtenergieeffizienz als vereinbart. Wir übernehmen keinerlei Gewähr oder Haftung für die tatsächliche Energieeffizienz der angebotenen Immobilie.


Der Vermittler ist als Doppelmakler tätig.

Infrastruktur / Entfernungen

Gesundheit
Arzt <500m
Apotheke <500m
Krankenhaus <2.500m

Kinder & Schulen
Schule <500m
Kindergarten <500m
Universität <2.500m
Höhere Schule <2.500m

Nahversorgung
Supermarkt <500m
Bäckerei <500m
Einkaufszentrum <2.500m

Sonstige
Bank <500m
Geldautomat <500m
Post <500m
Polizei <1.500m

Verkehr
Bus <500m
Autobahnanschluss <1.500m
Bahnhof <3.000m

Angaben Entfernung Luftlinie / Quelle: OpenStreetMap

Eckdaten Objektnr. 6154/521

Art: Haus
Land: Österreich
Kaufpreis: 1.200.000,00
Nutzfläche: 621,87 m²
Grundstücksfl.: 1.286,00 m²
Balkone: 1
Immobilie merken Exposé

Ausstattung

Fliesen, Laminatboden, Parkett, Fernwärme, Zentralheizung, Südbalkon, Kabel/Satelliten-TV, Parkplatz


Immobilie anfragen


Ihre persönliche Beratung

C.R. Gmbh - Christian Rossik Immobilien

Marion Handler

C.R. Gmbh - Christian Rossik Immobilien

T +436607950414

H 0660 79 50 414