Charmante Terrassen/Dachgeschoßmaisonette mit Blick über Wien (Klimaanlage)

Wohnung - Terrassenwohnung, 1190 Wien


Beschreibung der Immobilie

Charmante Terrassen/Dachgeschoßmaisonette mit Blick über Wien (Klimaanlage)

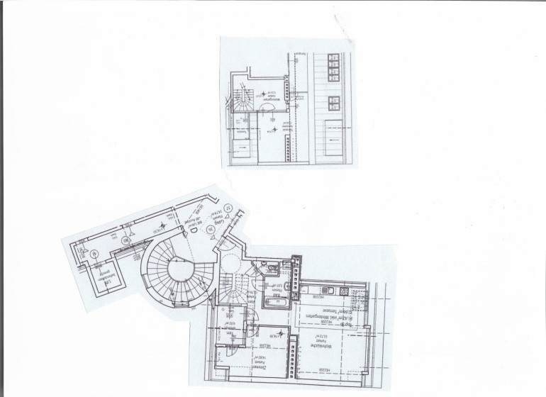
Das Mietobjekt liegt im Dachgeschoß (mit Aufzug) in einem gepflegten Otto-Wagner Jugendstilhaus und verfügt über rund 82 m² Wohnnutzfläche und 2 Terrassen mit gesamt ca.33 m².




Praktische Raumaufteilung und gute Ausstattung:



Untere Ebene:



  • Wohnraum mit integrierter Küche (EWE-Einbauküchen in weiß Hochglanz mit Neff-Geräteset)
  • Vorraum
  • Terrasse
  • Schlafzimmer
  • Badezimmer mit Badewanne 
  • separate Toilette mit Waschbecken
  • Brennwertgastherme 


über einen Stiegenaufgang gelangt man in die obere Ebene



  • die einen Wintergarten und eine Dachterrasse mit Blick über die Dächer Wiens umfasst




  • hochwertige Kunststofffenster und Terrassentüren
  • Heizung und Warmwasserbereitung erfolgt über eine Brennwertgastherme mit Schichtenspeicher (extrem energieeffizient)
  • die Klimageräte (Fabrikat Sharp) sind über eine Infrarotfernbedienung zu steuern
  • Barrierefreier Zusatzeingang
  • Fahrrad- und Kinderwagenabstellraum 
  • Wasseranschlüsse auf den Terrassen




 Top-Lage im 19. Bezirk



optimale Anbindung und Infrastruktur zu den öffentlichen Verkehrsmitteln :



  • in unmittelbarer Nähe befinden sich die U-Bahnlinien U4 und U6 (Station Spittelau)
  • die Straßenbahnlinien 1, 37, 38, D und die Autobuslinie 37A


Sowohl in die Innenstadt als auch in der westlich gelegenen Wienerwald als Naherholungsgebiet sind gut zu erreichen.



Auch Kulturliebhaber kommen mit Volksoper und Theater Alsergrund auf ihre Kosten. Die Volksoper bietet zusätzlich noch konzentrierte Einkaufsmöglichkeiten in unmittelbarer Nähe.


Der Immobilienmakler erklärt, dass er – entgegen dem in der Immobilienwirtschaft üblichen Geschäftsgebrauch des Doppelmaklers – einseitig nur für den Vermieter tätig ist.

Infrastruktur / Entfernungen

Gesundheit
Arzt <500m
Apotheke <500m
Klinik <500m
Krankenhaus <1.500m

Kinder & Schulen
Schule <1.000m
Kindergarten <500m
Universität <500m
Höhere Schule <1.000m

Nahversorgung
Supermarkt <500m
Bäckerei <500m
Einkaufszentrum <2.000m

Sonstige
Geldautomat <500m
Bank <1.000m
Post <1.000m
Polizei <500m

Verkehr
Bus <500m
U-Bahn <500m
Straßenbahn <500m
Bahnhof <500m
Autobahnanschluss <1.000m

Angaben Entfernung Luftlinie / Quelle: OpenStreetMap

Eckdaten Objektnr. 5998/618

Art: Wohnung - Terrassenwohnung
Land: Österreich
Zustand: Gepflegt
Alter: Altbau
Gesamtmiete: 1.899,99
Kaltmiete (netto): 1.532,25 €
Kaltmiete: 1.727,35 €
Provision: Gemäß Erstauftraggeberprinzip bezahlt der Abgeber die Provision.
Betriebskosten: 167,67 €
MwSt Gesamt: 172,64 €
Wohnfläche: 81,42 m²
Terrassen: 2
Heizwärmebedarf:  C  69,00 kWh/m²a
fGEE:  C  1,56
Immobilie merken Exposé

Ausstattung

Etagenheizung, Einbauküche, Personenaufzug, Badewanne


Immobilie anfragen


Ihre persönliche Beratung

VM Estates GmbH

GUDRUN BOGNER

VM Estates GmbH

T +43 1 30 84 175

H +43 676 3536 778