Modernes Einfamilienhaus in idyllischer Lage

Haus - Einfamilienhaus, 1220 Wien


Naufahrtweg

Beschreibung der Immobilie

Modernes Einfamilienhaus in idyllischer Lage

Das 2017 auf Eigengrund errichtete Einfamilienhaus befindet sich direkt an der malerischen „Alten Naufahrt“ am Naufahrtweg, eingebettet zwischen Schillerwasser und Mühlwasser. Die Liegenschaft vereint die Vorteile urbanen Wohnens mit einer ruhigen, naturnahen Umgebung und bietet höchste Lebensqualität.



Exklusive Highlights



  • Großzügige Freiflächen mit südwestlicher Ausrichtung und  traumhaftem Ausblick ins Grüne und auf die Naufahrt
  • Ein liebevoll gestalteter Garten  mit Terrasse für Entspannung und Freizeit
  • Hochwertige Ausstattung, die Komfort und Eleganz vereint


Mit einer Wohnnutzfläche von rund 165 m², verteilt auf drei Ebenen, sowie einembeheizten Keller von 61,75 m², bietet das Haus reichlich Platz für die ganze Familie.



Raumaufteilung



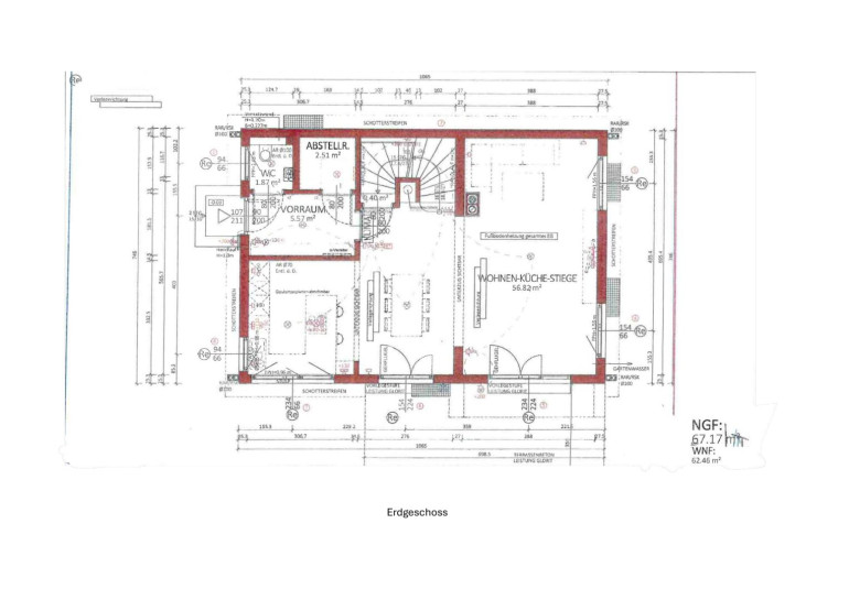
Erdgeschoss: ca. 67 m² Wohnnutzfläche



  • Eingangsbereich
  • Offene Wohnküche (ca. 56,82 m²) mit hochwertiger Markenküche und praktischem Abstellraum
  • Gäste-WC mit Handwaschbecken
  • Zugang zur traumhaften Terrasse und zum liebevoll gestalteten Garten


Obergeschoss: 54,23 m² Wohnnutzfläche



  • Flur
  • Geräumiges Tageslicht-Badezimmer mit Badewanne, Dusche, Doppelwaschbecken und WC
  • Drei Schlafzimmer 
  • Balkon


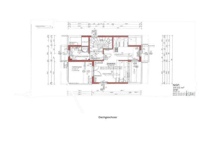
Dachgeschoss: 34,80 m² Wohnnutzfläche



  • Flur
  • Tageslicht-Badezimmer mit Dusche und WC
  • 1 Master-Bedroom mit begehbarem Kleiderschrank und großzügiger Terrasse


Keller (beheizt): 61,17 m²Nutzfläche



  • Technikraum mit Waschmaschinen- und Trockneranschluss
  • Zwei zusätzliche Kellerräume




Ausstattungs-Highlights



  • Fußbodenheizung für behaglichen Komfort
  • Klimaanlage für angenehme Temperaturen (Erd- und Dachgeschoss)
  • Echtholzparkett aus Eiche in allen Wohnräumen
  • Holz-Alu-Fenster mit 3-fach Isolierverglasung
  • Außenliegende elektrische Rollläden mit Fernbedienung an allen Fenstern und Terrassentüren
  • Wäscheabwurfschacht über alle drei Etagen
  • 2 Kfz-Stellplätze




Infrastruktur



Das Haus überzeugt nicht nur durch seine hochwertige Ausstattung, sondern auch durch seine erstklassige Lage. Die Nähe zur Natur, kombiniert mit einer guten Anbindung an urbane Einrichtungen, macht diese Immobilie zu einem idealen Zuhause.



  • Bildungseinrichtungen, Nahversorgung und Gesundheitsversorgung: Alles Wesentliche finden Sie in der Umgebung, etwa 1 km entfernt.
  • Öffentliche Anbindung und Individualverkehr: Die Bushaltestellen liegen in ca. 100 m Entfernung, die Autobahn erreichen Sie nach etwa 1 km.




Hinweis:
Die Angaben wurden von uns mit größter Sorgfalt geprüft. Für die Richtigkeit, Vollständigkeit oder Aktualität können wir jedoch keine Gewähr übernehmen.



Für weitere Informationen stellen wir Ihnen gerne ein persönliches Exposé zur Verfügung. Wir freuen uns auf Ihre Anfrage!












Wir weisen darauf hin, dass zwischen dem Vermittler und dem zu vermittelnden Dritten ein familiäres oder wirtschaftliches Naheverhältnis besteht.


Der Immobilienmakler erklärt, dass er – entgegen dem in der Immobilienwirtschaft üblichen Geschäftsgebrauch des Doppelmaklers – einseitig nur für den Vermieter tätig ist.

Frau Mag. Maria Rieger, Mobil: +43 699 1414 4040, Mail: m.rieger@advanta.at, steht für ein persönliches Gespräch sowie für einen Besichtigungstermin gerne zur Verfügung.

Infrastruktur / Entfernungen

Gesundheit
Arzt <1.500m
Apotheke <2.500m
Klinik <2.500m
Krankenhaus <2.500m

Kinder & Schulen
Schule <2.000m
Kindergarten <2.000m
Universität <2.500m
Höhere Schule <4.000m

Nahversorgung
Supermarkt <500m
Bäckerei <2.500m
Einkaufszentrum <3.500m

Sonstige
Geldautomat <2.500m
Bank <2.500m
Post <2.500m
Polizei <2.500m

Verkehr
Bus <500m
U-Bahn <2.500m
Straßenbahn <2.500m
Bahnhof <2.500m
Autobahnanschluss <2.000m

Angaben Entfernung Luftlinie / Quelle: OpenStreetMap

Eckdaten Objektnr. 6624

Art: Haus - Einfamilienhaus
Land: Österreich
Baujahr: 2019
Zustand: Neuwertig
Möbliert: Teil
Alter: Neubau
Gesamtmiete: 3.490,00
Kaltmiete (netto): 2.992,73 €
Kaltmiete: 3.172,73 €
Provision: Gemäß Erstauftraggeberprinzip bezahlt der Abgeber die Provision.
Betriebskosten: 180,00 €
MwSt Gesamt: 317,27 €
Nutzfläche: 165,00 m²
Grundstücksfl.: 267,00 m²
Zimmer: 5
Bäder: 2
WC: 3
Balkone: 1
Terrassen: 1
Stellplätze: 2
Keller: 61,87 m²
Heizwärmebedarf:  B  29,59 kWh/m²a
fGEE:  B  804,00
Immobilie merken Exposé

Ausstattung

Fliesen, Parkett, Gas, Zentralheizung, Einbauküche, Wohnküche / offene Küche, Alarmanlage, Wasch/Trockenraum


Immobilie anfragen


Ihre persönliche Beratung

Mag. Maria Rieger

ADVANTA – Immobilienvermittlungs GmbH

T +43 1 409 84 00

H +43 699 1414 4040