SANIERUNGSBEDÜRFTIGE 2,5 ZIMMER-STILALTBAU NAHE U4 FRIEDENSBRÜCKE

Wohnung - Etage, 1090 Wien


Diese Wohnung befindet sich im im 9. Wiener Gemeindebezirk in unmittelbarer Näher zur U4 Station Friedensbrücke sowie dem Franz-Josefs-Bahnhof. Die Wohnung besticht durch die ausgezeichneten Raumaufteilung, den Altbau-Charme sowie die hervorragende Infrastruktur (Franz-Josefs-Bahnhof). In Fußweite fahren die Ubahn-Linie U4 (Friedensbrücke), die Straßenbahnlinien 1, D, 5 und 12 sowie diverse Regionalzüge. Die Infrastruktur bietet Ihnen alles für den täglichen Bedarf. So erreichen Sie fußläufig in wenigen Minuten diverse Supermärkte, Restaurants, Cafés, Universitäten, Schulen, Kindergarten, Banken, Apotheken uvm

Beschreibung der Immobilie

SANIERUNGSBEDÜRFTIGE 2,5 ZIMMER-STILALTBAU NAHE U4 FRIEDENSBRÜCKE

Diese sanierungsbedürftige 2,5 Zimmer Wohnung befindet sich im 3. Stock (Lift geplant) eines schön verzierten Gründerzeithauses aus der Jahrhundertwende. Die Wohnung besticht durch die ausgezeichneten Raumaufteilung, die erhaltenen Stilaltbau-Elemente sowie die hervorragende Infrastruktur (Franz-Josefs-Bahnhof). Zusätzlich bietet der Standort eine ausgezeichnete Verkehrs-Infrastruktur (Nahe U4, Franz-Josefs-Bahnhof).





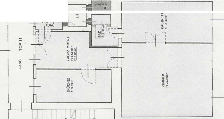
Diese 2,5 Zimmer-Wohnung erstreckt sich auf ca. 64m² und gliedert sich wie folgt:



  • Vorzimmer/Gang
  • separates WC
  • separates Küchenzimmer
  • 1x Schlafzimmer mi Bad en suite
  • 1x großes Wohn-/Esszimmer


Mögliche Raumaufteilung nach Sanierung (siehe Pläne):



  • Vorzimmer/Gang
  • separates WC
  • Abstellraum
  • separates Küchenzimmer
  • 1x großes Wohn-/Esszimmer
  • 1x Schlafzimmer mit Schrankraum




Dieses Sanierungskonzept kann auf Wunsch und unter Berücksichtigung von Kundenwünschen gegen Aufpreis umgesetzt werden.





Weitere Informationen:



Das Haus verfügt über:



  • einen Fahrradabstellplatz
  • Innenhof
  • Kinderwagen Abstellraum
  • eigenes Kellerabteil
  • derzeit kein Aufzug - Einbau ist 2026 geplant und kann aus Rücklagen finanziert werden.




Kosten:



  • KP: EUR 310.000,-
  • monatliche BK inkl. USt.: EUR 165,74
  • monatlicher Anteil Reparaturrücklage: EUR 76,25
  • GESAMT: EUR 241,99
  • Provision: 3% vom KP zzgl. gesetzl. USt.




Kontakt:



Bei Fragen und Besichtigungen kontaktieren Sie bitte Herrn Gamlich unter 0664 54 361 53 oder unter clemens.gamlich@iconia.at.



Weitere Objekte auf: www.iconia.at





Haftungsausschluss:



Alle Angaben sind ohne Gewähr und basieren ausschließlich auf Informationen, die uns von unserem Auftraggeber übermittelt wurden. Eine Weitergabe der übermittelten Daten an Dritte ist nicht gestattet. Wir übernehmen keine Gewähr für die Vollständigkeit, Richtigkeit und Aktualität dieser Angaben. Irrtum und Zwischenverkauf vorbehalten.


Wir weisen darauf hin, dass zwischen dem Vermittler und dem zu vermittelnden Dritten ein familiäres oder wirtschaftliches Naheverhältnis besteht.


Der Vermittler ist als Doppelmakler tätig.

Infrastruktur / Entfernungen

Gesundheit
Arzt <500m
Apotheke <500m
Klinik <500m
Krankenhaus <1.500m

Kinder & Schulen
Schule <500m
Kindergarten <500m
Universität <500m
Höhere Schule <1.000m

Nahversorgung
Supermarkt <500m
Bäckerei <500m
Einkaufszentrum <2.000m

Sonstige
Geldautomat <500m
Bank <500m
Post <500m
Polizei <500m

Verkehr
Bus <500m
U-Bahn <500m
Straßenbahn <500m
Bahnhof <500m
Autobahnanschluss <2.000m

Angaben Entfernung Luftlinie / Quelle: OpenStreetMap

Eckdaten Objektnr. 1693/257

Art: Wohnung - Etage
Land: Österreich
Baujahr: 1892
Zustand: Sanierungsbeduerftig
Alter: Altbau
Kaufpreis: 310.000,00
Provision: 3% des Kaufpreises zzgl. 20% USt.
Betriebskosten: 150,67 €
MwSt Gesamt: 15,07 €
Wohnfläche: 64,24 m²
Nutzfläche: 64,24 m²
Zimmer: 2,50
Bäder: 1
WC: 1
Heizwärmebedarf:  D  127,10 kWh/m²a
fGEE:  D  2,35
Immobilie merken Exposé

Ausstattung

Parkett, Fliesen, Gas, Etagenheizung, Einbauküche


Immobilie anfragen


Ihre persönliche Beratung

ICONIA GmbH

Clemens Gamlich

ICONIA GmbH

T +43 664 543 61 53