Genial kompakte Terrassenwohnung | Erstbezug | Grünblick

Wohnung - Terrassenwohnung, 4240 Freistadt , Trölsstraße


Die Trölsstraße in Freistadt vereint eine ruhige Wohnlage mit ausgezeichneter Infrastruktur und der Nähe zur historischen Altstadt. Supermärkte, Schulen, Ärzte und das Landeskrankenhaus sind in wenigen Minuten erreichbar. Freizeitmöglichkeiten wie das Freibad, Sportanlagen sowie Wander- und Radwege bieten hohe Lebensqualität. Freistadt selbst ist eine charmante Stadt mit etwa 8.000 Einwohnern und gilt als kulturelles und wirtschaftliches Zentrum des Mühlviertels. Die Altstadt, nur ca. 1,2 km entfernt, beeindruckt mit ihren mittelalterlichen Stadtmauern, dem Schloss und dem historischen Hauptplatz. Cafés, Restaurants und Veranstaltungen wie das Altstadtfest machen sie zum kulturellen Zentrum der Region. Dank guter Verkehrsanbindung – Bushaltestelle in der Nähe, Bahnhof ca. 2 km entfernt und schnelle Anbindung an die S10 – ist die Lage auch für Pendler ideal. Die Trölsstraße 12 bietet modernes Wohnen in einer charmanten Stadt mit hoher Lebensqualität.

Beschreibung der Immobilie

Genial kompakte Terrassenwohnung | Erstbezug | Grünblick

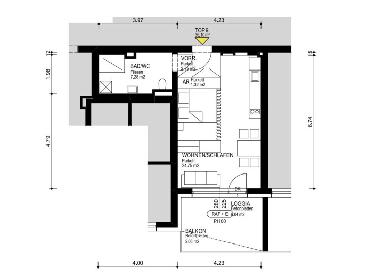
Die neue Wohnhausanlage umfasst insgesamt 20 Wohnungen, eine Tiefgarage mit 25 Stellplätzen und 4 Besucherparkplätzen im Freien. Die nagelneue Anlage wurde Mitte 2025 fertiggestellt. Die Wohnung Top 9 befindet sich im 1.OG des Gebäudes mit der Anschrift Trölstraße 12, in die Wohnung gelangen Sie bequem mit dem barrierefreien Personenlift. Die kompakte und superpraktische 1 Zimmerwohnung bietet eine Wohnfläche von ca. 36,10 m², ein absolutes Highlight ist dabei der süd-südwestseitige Balkon. Die Wohnung ist mit edlem Parkettboden sowie großformatigen Bodenfliesen und weißen Innentüren mit Holzumfassungszarge ausgestattet. Das Badezimmer verfügt über eine "Walk-in-Dusche" mit Regen- und Handbrause und Echtglas Duschtrennwand, ergänzend zum Waschtisch ist ein Waschtisch-Unterschrank und Lichtspiegel ausgeführt sowie ein elektr. Handtuchtrockner. Durch die großzügige Terrassentüre gelangt jede Menge Tageslicht in die Wohnung, für angemessene Beschattung sorgen die elektrischen Raffstore. An kalten Tagen sorgt die Fußbodenheizung für behagliches Raumklima, für Energieeffizienz sorgt die PV Anlage. Darüber hinaus ist die Wohnung mit einer hochwertigen Einbauküche ausgestattet (Achtung ohne Backrohr, Kühl- Gefrierschrank und Geschirrspüler). Ein fix zugeteiltes Kellerabteil und ein Garagenstellplatz runden das großartige Wohnungsangebot ab.



Terrassenwohnung Top 9 / 1.OG
Kochen/Wohnen/Schlafen: ~24,75 m²

Vorraum: ~2,75 m²

Bad/WC: ~7,28 m²

AR: ~1,32 m²

Loggia/Balkon: ~11,10 m²

1 Kellerabteil: ~5,1 m²

1 Garagenstellplatz Nr. P9
 



Wohnung Top 9   € 197.000,--
Garagenstellplatz P9   € 25.000,--
Gesamtkaufpreis   € 222.000,-- inkl. 20 % Umsatzsteuer



Der Garagenstellplatz ist verpflichtend zu erwerben.



Verfügbarkeit der Wohnung: ab sofort

 



Für Fragen zu dem Objekt oder für einen unverbindlichen Besichtigungstermin stehen wir gerne zu Verfügung.




Ihr SPERER Immobilien Team 

Stefan Pichler | 0676 4630535 | s.pichler@sperer-group.com


Wir weisen darauf hin, dass zwischen dem Vermittler und dem zu vermittelnden Dritten ein familiäres oder wirtschaftliches Naheverhältnis besteht.

Infrastruktur / Entfernungen

Gesundheit
Arzt <750m
Apotheke <1.000m
Klinik <1.750m
Krankenhaus <1.500m

Kinder & Schulen
Schule <250m
Kindergarten <500m

Nahversorgung
Supermarkt <750m
Bäckerei <500m
Einkaufszentrum <1.000m

Sonstige
Geldautomat <750m
Bank <750m
Post <750m
Polizei <750m

Verkehr
Bus <250m
Autobahnanschluss <2.000m
Bahnhof <1.750m
Flughafen <6.750m

Angaben Entfernung Luftlinie / Quelle: OpenStreetMap

Eckdaten Objektnr. 480

Art: Wohnung - Terrassenwohnung
Land: Österreich
Zustand: Erstbezug
Alter: Neubau
Kaufpreis: 197.000,00
Provision: 3% des Kaufpreises zzgl. 20% USt.
Wohnfläche: 36,10 m²
Zimmer: 1
Balkone: 1
Stellplätze: 1
Keller: 5,10 m²
Heizwärmebedarf:  B  37,30 kWh/m²a
fGEE:  A+  0,70
Immobilie merken Exposé

Ausstattung

Fliesen, Parkett, Fußbodenheizung, Einbauküche, Personenaufzug, Dusche, Tiefgarage


Immobilie anfragen


Ihre persönliche Beratung

SPERER Immobilien GmbH

Ing. Stefan Pichler

Axia Immobilien GmbH - TESTACCOUNT

T +43 7242 306030

H +43 676 4630535