DESIGN LOFT auf 2 Etagen mit Balkon und Terrasse in der Brotfabrik Wien!

Büro / Praxis , 1100 Wien


Brotfabrik Wien, Hauptbahnhof Wien

Beschreibung der Immobilie

DESIGN LOFT auf 2 Etagen mit Balkon und Terrasse in der Brotfabrik Wien!

In einem hochwertig und komplett sanierten Haus in der Brotfabrik Wien gelangt ein atemberaubendes Loft auf 2 Ebenen (mit Lift) zur Vermietung.



Das äußerst luxuriös ausgestattete Design-Loft verfügt über 2 Ebenen sowie mehreren Freiflächen.



In der Brotfabrik Wien wurde den sogenannten „creative industries“ ein ganzer Loft-Stadtteil zur Verfügung gestellt. Es gibt Ateliers, Galerien, Büros, Gastronomie und Veranstaltungsräume. Zu den Eigentümern und Mietern zählen zahlreiche namhafte Agenturen, Künstler, Galerien, Privatschulen und Büros im Kreativbereich.



Die auf den Fotos abgebildeten losen Möbel und Gegenstände sind nicht inkludiert. (Ablöse unter Umständen möglich)



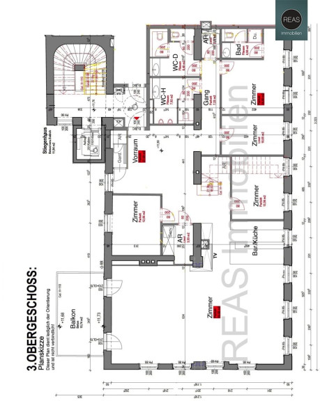
Raumaufteilung 3.OG (mit Lift):



  • 1 Vorraum/Empfang
  • 1 Garderobe + 1 Abstellraum
  • 1 Großraum mit Einbaumöbel inkl. TV sowie Einbauküche/Bar inkl. hochwertiger Gastro-Geräte (Ideal zur Bewirtung oder für Events)
  • 1 Balkon direkt angrenzend mit herrlichem Blick auf die Backsteingebäude der Brotfabrik Wien
  • 4 Zimmer
  • 1 Herren-WC mit WC, 2 Pissoir und Waschraum
  • 1 Damen-WC mit 2 WC und Waschraum
  • 1 Bad/WC mit WC, Dusche und Waschraum
  • 1 Treppe mit integriertem Stauraum


Raumaufteilung DG (mit Lift):



  • 1 Großraum mit riesigen Verglasungen inkl. Schiebeelementen sowie mit Decken-Akustikpaneelen
  • 1 Vorraum/Küche inklusive kleiner Teeküche sowie mit zweiten Eingang zum Stiegenhaus/Lift
  • 1 Terrasse mit Teil-Überdachung und herrlichem Fernblick

     
  • 1 Kellerabteil im Kellergeschoss (mit Lift erreichbar) mit einer Größe von ca. 13,24 m²

     
  • PKW Stellplätze nach Verfügbarkeit. Die Konditionen hierfür sind noch zu besprechen.


Das Loft verfügt über einen gehobenen Standard inkl. effizienter Fernwärmeheizung (teilweise Fussbodenheizung, teilweise Design-Heizkörper), großzügigem Balkon sowie einer großen & teilweise überdachten Dachterrasse mit Blick über Wien, Klimatisierung, integrierte Sound-Anlage (in- und outdoor), elektrische Außenjalousien an allen Fenstern, integrierte Vorhangschienen, teilweise Akustik-Elemente an den Decken, sehr viele Fenster für eine optimale Belichtung, hochwertige Gastroküche inkl. Geräte (Perfekt für Events oder Bewirtung), zweite Teeküche im oberen Stockwerk, BUS System, Alarm Anlage, TV bei Bar/Küche, 2 Zugänge (beide Ebenen) mittels Lift, hochwertige Tischler-Einbaumöbel, echtholz Parkettböden, GIRA Bus-System, hochwertige Beleuchtungen inklusive, Abstellraum inkl. Waschmaschine (Miele), uvm.



Miete



Miete Netto € 18,33/m2 zzgl. BK zzgl. 20% Ust / Monat

Miete Netto € 4.969,57 zzgl. BK Netto € 445,42 zzgl. Lift BK Netto € 81,79 = Netto Gesamt € 5.496,78 zzgl. 20% Ust. € 1.099,35 = Brutto Gesamt € 6.596,13 / Monat



Betriebskosten exkl. Heizung/Strom/Internet/TV



Betriebskosten-Heizung derzeit Netto € 220,86 zzgl. 20% Ust. € 44,17 = Brutto € 265,03 / Monat.

Strom/Internet/TV extra

Stellplätze extra



Befristung: Dauer noch zu besprechen. Langfristige Mieter erwünscht.

Kaution: Höhe noch zu besprechen.



Nahversorgung



Sämtliche Geschäfte des täglichen Bedarfs in der näheren Umgebung. Diverse Gastronomien direkt in der Brotfabrik Wien.



Öffentliche Verkehrsmittel in unmittelbarer Umgebung



Straßenbahn: 6 & D, ca. 5 Min. zu Fuss

U-Bahn: U1 Reumannplatz - ca. 10 Min. zu Fuss oder 2 Stationen mit der Straßenbahn 6, U3 Enkplatz - 3 Stationen mit der Straßenbahn 6

Hauptbahnhof Wien: 3 Stationen mit der Straßenbahn D



Für Fragen und Besichtigungen stehen wir jederzeit gerne zur Verfügung!



Wir ersuchen Sie, bereits in Ihrer Anfrage Ihre vollständigen Kontaktdaten (Adresse, Mail, Telefon) anzugeben, damit wir Ihre Anfrage rascher bearbeiten können. Aufgrund der Nachweispflicht gegenüber dem Abgeber sind wir verpflichtet, vor Bekanntgabe der Adresse diese Daten aufzunehmen und ersuchen um Ihr Verständnis.



Der guten Ordnung halber halten wir fest, dass, sofern im Angebot nicht anders vermerkt, bei erfolgreichem Vertragsabschluss eine Provision anfällt, die den in der Immobilienmaklerverordnung BGBI. 262 und 297/1996 festgelegten Provisionssätzen entspricht. Diese Provisionspflicht besteht auch dann, wenn Sie die Ihnen überlassenen Informationen an Dritte weitergeben.



Einzelne Bilder oder Visualisierungen in den Vermarktungsunterlagen, Exposés oder Inseraten wurden unter Umständen digital, teilweise auch mithilfe von künstlicher Intelligenz (KI), bearbeitet und dienen ausschließlich der Veranschaulichung. Sie können vom tatsächlichen Zustand, der Ausstattung oder Ausführung der Immobilien abweichen. Verbindlich sind ausschließlich die Angaben im Kauf-/Mietangebot sowie bei Besichtigung vor Ort.



Sämtliche Ihnen hiermit übermittelte Angaben wurden uns, seitens des Abgebers bekannt gegeben. Eine Garantie auf Richtigkeit und Vollständigkeit können wir nicht übernehmen.

Noch nichts gefunden? Wir informieren Sie über geeignete Immobilienangebote noch vor allen anderen.
Legen Sie jetzt Ihren individuellen Suchagenten unter folgendem Link an. Wir schicken Ihnen passende Immobilien exklusiv vorab zu.

Suchagent anlegen - https://reas-realitaeten-asmus.service.immo/registrieren/de


Wir weisen darauf hin, dass zwischen dem Vermittler und dem zu vermittelnden Dritten ein familiäres oder wirtschaftliches Naheverhältnis besteht.


Der Vermittler ist als Doppelmakler tätig.

Infrastruktur / Entfernungen

Gesundheit
Arzt <1.000m
Apotheke <500m
Klinik <1.000m
Krankenhaus <3.000m

Kinder & Schulen
Schule <500m
Kindergarten <500m
Universität <500m
Höhere Schule <2.500m

Nahversorgung
Supermarkt <500m
Bäckerei <500m
Einkaufszentrum <2.000m

Sonstige
Geldautomat <500m
Bank <500m
Post <500m
Polizei <1.500m

Verkehr
Bus <500m
U-Bahn <1.000m
Straßenbahn <500m
Bahnhof <1.000m
Autobahnanschluss <500m

Angaben Entfernung Luftlinie / Quelle: OpenStreetMap

Verfügbare Flächen

Stiege/Bauteil


Stockwerk
Top
Art
Fläche
Terrasse
Nettomiete/m²
BK/m²

6. Etage
-
Büro / Praxis
224,80 m2
-
-

1. Etage
-
Büro / Praxis
297,30 m2
-
-

2. Etage
-
Büro / Praxis
142,37 m2
-
-

1. Etage
-
Büro / Praxis
176,15 m2
-
-

-
-
Zinshaus Renditeobjekt
392,45 m2
-
-

4. Etage
-
Büro / Praxis
171,10 m2
-
-

4. Etage
-
Büro / Praxis
171,10 m2
-
-

4. Etage
-
Büro / Praxis
171,10 m2
-
-

2. Etage
-
Büro / Praxis
131,00 m2
-
-

4. Etage
-
Büro / Praxis
321,47 m2
-
-

4. Etage
-
Büro / Praxis
150,37 m2
-
-

4. Etage
-
Büro / Praxis
150,37 m2
-
-

4. Etage
-
Büro / Praxis
150,37 m2
-
-

2. Etage
-
Büro / Praxis
404,80 m2
-
-

1. Etage
-
Büro / Praxis
271,05 m2
-
-

verfügbare flächen

Stiege/Bauteil

Stockwerk
Top
Art
Fläche
Teilbar ab
Terrasse
Nettomiete/m2 von-bis
BK/m2
6. Etage
-
Büro / Praxis
224,80 m2
-
-
-
-
Stockwerk
Top
Art
Fläche
Teilbar ab
Terrasse
Nettomiete/m2 von-bis
BK/m2
1. Etage
-
Büro / Praxis
297,30 m2
-
-
-
-
Stockwerk
Top
Art
Fläche
Teilbar ab
Terrasse
Nettomiete/m2 von-bis
BK/m2
2. Etage
-
Büro / Praxis
142,37 m2
-
-
-
-
Stockwerk
Top
Art
Fläche
Teilbar ab
Terrasse
Nettomiete/m2 von-bis
BK/m2
1. Etage
-
Büro / Praxis
176,15 m2
-
-
-
-
Stockwerk
Top
Art
Fläche
Teilbar ab
Terrasse
Nettomiete/m2 von-bis
BK/m2
-
-
Zinshaus Renditeobjekt
392,45 m2
-
-
-
-
Stockwerk
Top
Art
Fläche
Teilbar ab
Terrasse
Nettomiete/m2 von-bis
BK/m2
4. Etage
-
Büro / Praxis
171,10 m2
-
-
-
-
Stockwerk
Top
Art
Fläche
Teilbar ab
Terrasse
Nettomiete/m2 von-bis
BK/m2
4. Etage
-
Büro / Praxis
171,10 m2
-
-
-
-
Stockwerk
Top
Art
Fläche
Teilbar ab
Terrasse
Nettomiete/m2 von-bis
BK/m2
4. Etage
-
Büro / Praxis
171,10 m2
-
-
-
-
Stockwerk
Top
Art
Fläche
Teilbar ab
Terrasse
Nettomiete/m2 von-bis
BK/m2
2. Etage
-
Büro / Praxis
131,00 m2
-
-
-
-
Stockwerk
Top
Art
Fläche
Teilbar ab
Terrasse
Nettomiete/m2 von-bis
BK/m2
4. Etage
-
Büro / Praxis
321,47 m2
-
-
-
-
Stockwerk
Top
Art
Fläche
Teilbar ab
Terrasse
Nettomiete/m2 von-bis
BK/m2
4. Etage
-
Büro / Praxis
150,37 m2
-
-
-
-
Stockwerk
Top
Art
Fläche
Teilbar ab
Terrasse
Nettomiete/m2 von-bis
BK/m2
4. Etage
-
Büro / Praxis
150,37 m2
-
-
-
-
Stockwerk
Top
Art
Fläche
Teilbar ab
Terrasse
Nettomiete/m2 von-bis
BK/m2
4. Etage
-
Büro / Praxis
150,37 m2
-
-
-
-
Stockwerk
Top
Art
Fläche
Teilbar ab
Terrasse
Nettomiete/m2 von-bis
BK/m2
2. Etage
-
Büro / Praxis
404,80 m2
-
-
-
-
Stockwerk
Top
Art
Fläche
Teilbar ab
Terrasse
Nettomiete/m2 von-bis
BK/m2
1. Etage
-
Büro / Praxis
271,05 m2
-
-
-
-

Eckdaten Objektnr. 4072

Art: Büro / Praxis
Land: Österreich
Kaltmiete (netto): 4.969,57 €
Kaltmiete: 5.496,78 €
Miete / m²: 18,33 €
Provision: 3 Bruttomonatsmieten zzgl. 20% USt.
Betriebskosten: 445,42 €
MwSt Gesamt: 1.099,35 €
Nutzfläche: 271,05 m²
Bürofläche: 271,05 m²
Zimmer: 6
Bäder: 1
WC: 4
Balkone: 1
Terrassen: 1
Stellplätze: 1
Keller: 13,24 m²
Heizwärmebedarf:  D  96,20 kWh/m²a
fGEE:  C  1,26
Immobilie merken Exposé

Ausstattung

Zentralheizung, Einbauküche, Personenaufzug, Ostbalkon, Westbalkon, Dusche, Parkplatz, Teeküche, Alarmanlage


Immobilie anfragen


Ihre persönliche Beratung

REAS Realitäten Asmus GmbH

REAS Immobilien

REAS Realitäten Asmus GmbH

T +43 664 24 77 08 7