4020 Linz: 3-Zimmer-Wohnung mit Loggia (75,30 m²) – Kopernikusstraße 26! Verfügbar ab 01.03.2026! WOHNUNG WIRD IM FEBRUAR 2026 GENERALSANIERT!

Wohnung , 4020 Linz , Kopernikusstraße 26


4020 Linz – Kopernikusstraße: Gute Infrastruktur und Anbindung. Nahversorgung, öffentliche Verkehrsmittel und weitere städtische Einrichtungen sind je nach Bedarf gut erreichbar.

Beschreibung der Immobilie

4020 Linz: 3-Zimmer-Wohnung mit Loggia (75,30 m²) – Kopernikusstraße 26! Verfügbar ab 01.03.2026! WOHNUNG WIRD IM FEBRUAR 2026 GENERALSANIERT!

Linz / Bindermichl / Spallerhof / Kopernikusstraße 26:



Zur Vermietung steht eine großzügig geschnittene Wohnung in 4020 Linz, Kopernikusstraße 26. Die Einheit befindet sich im Erdgeschoss und bietet mit Loggia sowie praktischen Nebenflächen (Flur/Abstellraum) ein angenehmes Wohngefühl – ideal für Paare oder Familien.



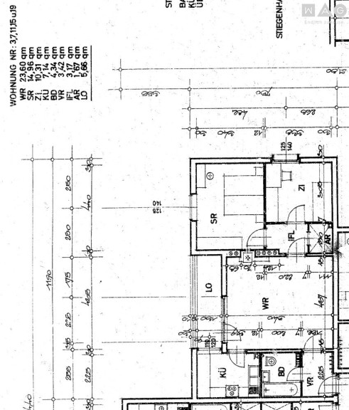
Raumaufteilung & Highlights



Raumaufteilung



  • Wohnfläche: 75,30 m²
  • Wohnzimmer: 23,60 m²
  • Schlafzimmer: 14,96 m²
  • Kinderzimmer: 10,31 m²
  • Küche: 7,14 m²
  • Badezimmer: 4,34 m²
  • Vorraum: 3,42 m²
  • Flur: 3,17 m²
  • Abstellraum: 1,67 m²
  • Loggia: 5,66 m²


Highlights



  • 3 Zimmer (Wohn-, Schlaf- und Kinderzimmer)
  • Loggia (5,66 m²)
  • Erdgeschosslage
  • Praktischer Grundriss mit Abstellraum


Mietkondition



  • Miete inkl. Betriebskosten, Heizung, Warmwasser und MwSt.: 846,18 € / Monat (ohne Strom)
  • Kaution/Baukostenzuschuss: 3.384,72 €


Verfügbarkeit



Die Wohnung steht 01.03.2026 zur Verfügung.





Sanierung (Februar 2025) = GENERALSANIERUNG!



  • Böden werden erneuert (Vorzimmer, Küche, Badezimmer)
  • Böden werden geschliffen (Wohnzimmer, Schlafzimmer)
  • Malerei erneuern (Vorzimmer, Wohnzimmer, Küche, Badezimmer, Schlafzimmer)
  • Holzdecke entfernen (Vorzimmer, Küche, Badezimmer)
  • Türzargen werden erneuert (Vorzimmer, Wohnzimmer, Küche, Badezimmer, Schlafzimmer)
  • Neue Innentüren (Wohnzimmer, Küche, Badezimmer, Schlafzimmer)
  • Badezimmer: Fliesen erneuern, neue Dusche, WC erneuern, Waschmaschinenanschluss

Sie sind an weiteren Wohnungs- bzw. Gewerbeangeboten interessiert? Ein vielfältiges Angebot finden Sie auf unserer Website.

Zur WAG-Immobiliensuche: SUCHE

Zur WAG-Wohnungsanmeldung: Wohnungsanmeldung

Gerne beraten wir Sie persönlich über unser vielfältiges Angebot, rufen Sie uns einfach an! Und das natürlich ohne Vermittlungsgebühren und provisionsfrei!

Angaben sind ohne Gewähr auf Richtigkeit und Vollständigkeit. Druckfehler vorbehalten.

Infrastruktur / Entfernungen

Gesundheit
Arzt <225m
Apotheke <200m
Krankenhaus <325m
Klinik <1.675m

Kinder & Schulen
Kindergarten <75m
Schule <400m
Universität <2.600m
Höhere Schule <2.825m

Nahversorgung
Supermarkt <150m
Bäckerei <200m
Einkaufszentrum <175m

Sonstige
Bank <175m
Geldautomat <175m
Post <550m
Polizei <1.525m

Verkehr
Bus <250m
Straßenbahn <850m
Bahnhof <1.000m
Autobahnanschluss <175m
Flughafen <3.475m

Angaben Entfernung Luftlinie / Quelle: OpenStreetMap

Eckdaten Objektnr. 6650/11328

Art: Wohnung
Land: Österreich
Zustand: Gepflegt
Gesamtmiete: 846,18
Kaltmiete (netto): 515,53 €
Kaltmiete: 686,02 €
Betriebskosten: 170,30 €
Heizkosten: 77,57 €
MwSt Gesamt: 82,59 €
Wohnfläche: 75,30 m²
Zimmer: 3
Bäder: 1
WC: 1
Heizwärmebedarf:  C  77,00 kWh/m²a
fGEE:  C  1,26
Immobilie merken Exposé

Ausstattung

Fliesen, Parkett, Zentralheizung, Badewanne, Kabel/Satelliten-TV, Wasch/Trockenraum


Immobilie anfragen


Ihre persönliche Beratung

Team Vermietung 3

WAG Wohnungsanlagen GmbH

T +43 (0)50 338 6010