Lager/Magazin beim WIFI

Halle / Lager / Produktion - Lager, 1180 Wien,Währing


Nähe: Volksoper, WIFI, Kutschkermarkt beste Infrastruktur und pefekte Anbindung an das öffentliche Verkehrsnetz. Parken: Parkpickerlzone 1180 Wien, WIFI-Garage in unmittelbarer Nähe.

Beschreibung der Immobilie

Lager/Magazin beim WIFI

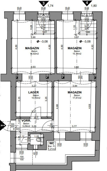
Das Lager/Magazin liegt im Souterrain und verfügt über zwei seperate straßenseiteige Eingänge sowie über einen Eingang über das Stiegenhaus.



Neben insgesamt 4 Lagerräumen besteht das Magazin aus einem Vorraum und einem WC.



________________________________________



Für weitere Frage steht Ihnen Herr GEYIK gerne unter +43 1 810 10 21 - 12 zur Verfügung.



________________________________________


Hinweis gemäß Energieausweisvorlagegesetz: Ein Energieausweis wurde vom Eigentümer bzw. Verkäufer, nach unserer Aufklärung über die generell geltende Vorlagepflicht, sowie Aufforderung zu seiner Erstellung noch nicht vorgelegt. Daher gilt zumindest eine dem Alter und der Art des Gebäudes entsprechende Gesamtenergieeffizienz als vereinbart. Wir übernehmen keinerlei Gewähr oder Haftung für die tatsächliche Energieeffizienz der angebotenen Immobilie.


Wir weisen darauf hin, dass zwischen dem Vermittler und dem zu vermittelnden Dritten ein familiäres oder wirtschaftliches Naheverhältnis besteht.


Der Vermittler ist als Doppelmakler tätig.

Infrastruktur / Entfernungen

Gesundheit
Arzt <500m
Apotheke <500m
Klinik <500m
Krankenhaus <500m

Kinder & Schulen
Schule <500m
Kindergarten <500m
Universität <500m
Höhere Schule <500m

Nahversorgung
Supermarkt <500m
Bäckerei <500m
Einkaufszentrum <1.500m

Sonstige
Geldautomat <500m
Bank <500m
Post <500m
Polizei <1.000m

Verkehr
Bus <500m
U-Bahn <500m
Straßenbahn <500m
Bahnhof <500m
Autobahnanschluss <2.000m

Angaben Entfernung Luftlinie / Quelle: OpenStreetMap

Eckdaten Objektnr. 1155/2868

Art: Halle / Lager / Produktion - Lager
Land: Österreich
Alter: Altbau
Kaltmiete (netto): 650,00 €
Kaltmiete: 781,63 €
Provision: 3 Bruttomonatsmieten zzgl. 20% USt.
Betriebskosten: 131,63 €
MwSt Gesamt: 156,33 €
Nutzfläche: 67,50 m²
Zimmer: 4
WC: 1
Immobilie merken Exposé

Immobilie anfragen


Ihre persönliche Beratung

Serkan Geyik

myImmo GmbH

T +43 1 810 10 21 - 12

F + 43 1 810 10 21 - 89