Baugrundstück mit projektiertem Haus in Matulji-Rukavac (Opatija / Kvarner Bucht / Kroatien) zu verkaufen!

Grundstück - Baugrund Eigenheim, 21480 Rukavac


Kvarner Bucht / Opatija / Die Region Matulji-Rukavac (Postleitzahl: 51211) ist bei Eigenheimbauer*innen, aber auch bei ausländischen Investor*innen beliebt – Nähe zu Opatija/Kvarner und der guten Infrastruktur. Die begehrte Lage zwischen Naturschutzgebiet und touristisch hochwertiger Küstenregion bietet zudem ideale Anbindungen nach Italien, zu den Inseln der Kvarner Bucht oder zu zahlreichen Ausflugszielen im Hinterland.

Beschreibung der Immobilie

Baugrundstück mit projektiertem Haus in Matulji-Rukavac (Opatija / Kvarner Bucht / Kroatien) zu verkaufen!

Zum Verkauf gelangt Baugrundstück in bester Lage von Matulji-Rukavac (Opatija) mit sofortiger Baugenehmigung und Meerblick!



 



Das Grundstück umfasst 527 m² und bietet durch seine Südorientierung, den offenen Meerblick und die vollständige Erschließung ein ideales Fundament für die Errichtung eines hochwertigen Eigenheims oder Ferienobjekts. Wer auf „sofort bauen und wohnen“ setzt, profitiert hier klar gegenüber noch unerschlossenen Parzellen – denn Einzelgrundstücke mit fertiger Genehmigung sind in dieser Lage selten. Die Baugenehmigung liegt bereits vor, wodurch Zeit und Kosten für das sonst langwierige Genehmigungsverfahren entfallen.



Das Areal liegt nur etwa 5 km vom Meer entfernt und verfügt über alle Anschlüsse (Strom, Wasser, Kanalisation) sowie einen direkten Zugang über eine öffentliche asphaltierte Straße.  Die Region Matulji-Rukavac ist bei Eigenheimbauern, aber auch bei ausländischen Investoren beliebt – gerade wegen Nähe zu Opatija/Kvarner und der guten Infrastruktur interessant und bietet ein hohes Niveau für eine Wertsteigerung. Infrastruktur und Umfeld sind gesichert. Es bestehen somit sehr gute Voraussetzungen für einen raschen Baubeginn und hochwertiger Nutzung. 



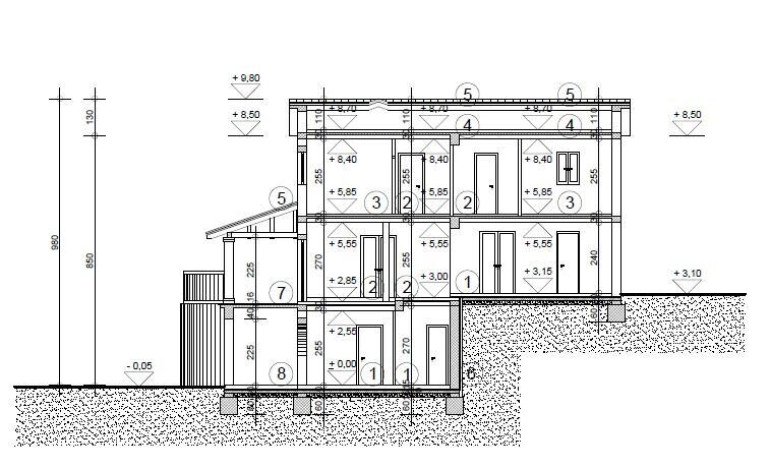
Geplant ist ein stilvolles Wohnhaus mit 193,81 m² Wohnfläche auf drei Ebenen, Terrasse und Pool. Das Konzept vereint traditionelle Elemente (Kamin, Stein, Fensterläden) mit modernen Annehmlichkeiten und einer durchdachten Raumaufteilung, inklusive separatem Arbeitsbereich, Garderobe und Bad im Obergeschoss. Ein Pool, großzügige Terrassenflächen und der fantastische Meerblick machen das Anwesen zu einem Rückzugsort mit besonderem Flair.



 



Perfekte Kombination aus bester Lage, historischer Umgebung und unvergleichlichem Meerblick, somit bietet es eine ideale Infrastruktur für vielseitigen und gehobenen Tourismus und sehr gutes Preis-Leistungs-Verhältnis für ein Baugrundstück in bester Lage mit sofortiger Baugenehmigung! 



 



Ideal für Investor*innen und Eigennutzer*innen:



Das Haus eignet sich auch perfekt als Apartment- oder Ferienhaus, da es in einer einzigartigen Lage zwischen unberührter Natur und einem angrenzenden Naturschutzgebiet liegt – und gleichzeitig nur wenige Minuten von Opatija, dem traditionsreichsten Kur- und Badeort Kroatiens, entfernt ist.



Schon zu Zeiten der österreichisch-ungarischen Monarchie suchten hier Kaiser Franz Joseph und zahlreiche Persönlichkeiten aus Wien und Mitteleuropa die erfrischende Meeresluft und das grüne Paradies der Kvarner Bucht. Die berühmte Promenade „Franz-Josef-Šetalište“, die von Volosko bis Lovran führt, begeistert mit eleganten Villen, edlen Hotels und köstlichen Mehlspeisen – ein historisches Ambiente, das bis heute spürbar ist. 



Die begehrte Lage zwischen Naturschutzgebiet und touristisch hochwertiger Küstenregion bietet zudem ideale Anbindungen nach Italien, zu den Inseln der Kvarner Bucht oder zu zahlreichen Ausflugszielen im Hinterland.



 



Eckdaten




  • Grundstücksgröße: 527 m²



  • Preis: 89.000 €



  • Genehmigung: Bereits vorhandene Baugenehmigung und alle Anschlussmöglichkeiten (Wasser, Strom, Kanal)



  • Lage: Ruhige, sonnige Südhanglage mit offenem Meerblick und Zugang zur öffentliche Straße; Grünlage



  • ca. 5 km vom Meer, Nähe Opatija, gelegen an der Kvarner Bucht



  • Projekt: Geplantes Haus mit 193,81 m² auf drei Ebenen, Terrasse, Pool, traditionelle Gestaltungselemente (Kamin, Stein, Fensterläden); Gute Raumaufteilung mit separatem Arbeitsbereich und eigenem Garderobenbereich und Bad im Obergeschoss



  • Busanbindung: Haltestelle in der Nähe



  • Gemeinde: Matulji // Region: Primorsko-goranska, Kroatien




 



Lagebewertung:




  • Ruhige, sonnige Wohnlage mit offenem Meerblick



  • Südorientierung – viel Licht und Sonne



  • Hochwertiges Wohn- und Freizeitumfeld



  • Nähe zu Opatija – dem exklusivsten Badeort an der Kvarner Bucht



  • Ideal als dauerhafter Wohnsitz oder Ferienimmobilie






Infrastruktur, Umfeld und Erschließung:




  • Straße: Direkt an einer öffentlichen, asphaltierten Straße



  • Versorgung: Wasser, Strom und Kanalisation bereits am Grundstück



  • Bebauungsstatus:  Alle Dokumente und Genehmigungen (Lageplan, Bauplan, Kanalanschluss) vorhanden und bezahlt



  • Die Lage ist sowohl für dauerhafte Nutzung als Wohnsitz oder als exklusives Ferienhaus ideal. Ruhige Wohnlage mit offenem Meerblick. 



  • Die nähere Umgebung ist geprägt von Einfamilienhäusern und Villen. Naheliegend zu Opatija (nobelster Badeort an der Kvarner Bucht) - die Lage ist somit besonders attraktiv für Eigenheime und Ferienhäuser.



  • Hochwertiges Wohn- und Freizeitumfeld mit vielen Möglichkeiten: Wandern, Meer, Wassersport; kulturelle Angebote in Opatija



  • Schnelle Anbindung an Opatija mit Restaurants, Einkaufsmöglichkeiten, Gesundheitsversorgung, touristischen Angeboten.






Sehenswürdigkeiten & Highlights:




  • Historische Villen & Hotels entlang der Promenade



  • malerische Ausblicke



  • Landschaftlich reizvolle Spazierwege mit Erinnerungs- und Gedenktafeln



  • Opatija (ehemaliges kaiserliches Seebad)



  • Promenade mit Gehwegen teilweise direkt in den Fels gehauen – ideal zum Flanieren; die Franz-Joseph-Promenade liegt direkt am Meer in der nordöstlichen Kvarner Bucht zwischen Lovran, Opatija und Volosko. Die Promenade ist etwa 10 km lang und gilt als eine der schönsten Uferwege Kroatiens.



  • Die Umgebung ist geprägt von eleganten Villen, traditionsreichen Hotels aus der Kaiserzeit und einer beeindruckenden Naturkulisse.



  • Lungomare: 12 km malerische Küstenpromenade von Volosko bis Lovran



  • Historischer Altstadtkern von Opatija



  • Villa Angiolina mit exotischen Pflanzen



  • St. Jakobs Kirche (Namensgeber der Stadt)



  • “Mädchen mit der Möwe” – Wahrzeichen von Opatija



  • Zahlreiche historische Villen (z.B. Villa Amalia, Villa Rosalia, Villa Minach, Villa Münz)



  • Hotel Kvarner und weitere traditionsreiche Hotels (Hotel Imperial, Hotel Palace, Hotel Miramar)



  • Kunstpavillon Juraj Šporer



  • Zahlreiche Denkmäler und Büsten (Littrow, Sienkiewicz, Matetić Ronjgov)



  • Wunderschöne Strände: Slatina, Icici, Lovran, Medveja, Tomasevac, Skrbici



  • Grotta del Diavolo (Teufelsgrotte)






Touristische Aktivitäten & Potential:




  • Spaziergänge & Wanderungen entlang der Promenade



  • Baden und Sonnen an zahlreichen Stränden



  • Segeln, Surfen, Tauchen und Wassersport



  • Ausflüge zu historischen Sehenswürdigkeiten und Villen



  • Kulinarik in hochklassigen Restaurants und Cafés



  • Events, Konzerte und Freiluftveranstaltungen



  • Wellness und Gesundheitstourismus in renommierten Einrichtungen und Parks



  • Radfahren und Yachting



  • Kulturelle Veranstaltungen und Festivals in Opatija und Lovran










Kontakt:



Bitte beachten Sie, dass wir aufgrund der Nachweispflicht gegenüber dem Eigentümer nur Anfragen mit vollständiger Angabe der Anschrift bearbeiten können.



Wir senden Ihnen gerne weitere und detaillierte Beschreibungen sowie Besichtigungstermine zu, sobald wir Ihre Anfrage erhalten haben.



 



Die Angebote und Besichtigungen sind kostenlos und unverbindlich. Anfragen bitte daher mit vollständiger Angabe der personenbezogenen Daten:



(Name, Nachname, Anschrift, E-Mail und Telefonnummer) an: Herrn Paunović Radiša per E-Mail: office@pr-immobilien.at

Noch nichts gefunden? Wir informieren Sie über geeignete Immobilienangebote noch vor allen anderen.
Legen Sie jetzt Ihren individuellen Suchagenten unter folgendem Link an. Wir schicken Ihnen passende Immobilien exklusiv vorab zu.

Suchagent anlegen - https://pr-immobilien-real-estate.service.immo/registrieren/de


Hinweis gemäß Energieausweisvorlagegesetz: Ein Energieausweis wurde vom Eigentümer bzw. Verkäufer, nach unserer Aufklärung über die generell geltende Vorlagepflicht, sowie Aufforderung zu seiner Erstellung noch nicht vorgelegt. Daher gilt zumindest eine dem Alter und der Art des Gebäudes entsprechende Gesamtenergieeffizienz als vereinbart. Wir übernehmen keinerlei Gewähr oder Haftung für die tatsächliche Energieeffizienz der angebotenen Immobilie.


Der Vermittler ist als Doppelmakler tätig.


Eckdaten Objektnr. 3960

Art: Grundstück - Baugrund Eigenheim
Land: Kroatien
Zustand: Projektiert
Alter: Neubau
Kaufpreis: 89.000,00
Provision: 3% des Kaufpreises zzgl. 20% USt.
Grundstücksfl.: 527,00 m²
Immobilie merken Exposé

Immobilie anfragen


Ihre persönliche Beratung

PR-IMMOBILIEN / REAL ESTATE

Radisa Paunovic

PR-IMMOBILIEN - REAL ESTATE Paunovic Radisa (Inh. & GF)

T 0664-404-15-47

H +43 / 664 - 4041547