3 ZIMMER | 1.DG | KOCHNISCHE | OPTIMALER GRUNDRISS | AB MÄRZ BEZIEHBAR

Wohnung , 1100 Wien , Holbeingasse


Fortunapark, Klinik Favoriten, Wienerberg

Beschreibung der Immobilie

3 ZIMMER | 1.DG | KOCHNISCHE | OPTIMALER GRUNDRISS | AB MÄRZ BEZIEHBAR

Das sanierte Wohnhaus befindet sich im 10. Wiener Gemeindebezirk Favoriten, in einer verkehrsgünstigen Lage. Die Umgebung zeichnet sich durch eine gute Mischung aus Wohn- und Geschäftsbereichen aus und bietet eine ausgezeichnete Nahversorgung: Supermärkte, Bäckereien, Apotheken, Cafés und Restaurants befinden sich in unmittelbarer Nähe. Auch Bildungseinrichtungen wie Kindergärten, Volksschulen und eine Mittelschule sind bequem erreichbar.



Die beliebte Fußgängerzone der Favoritenstraße sowie das Einkaufszentrum Columbus Center sind gut zu erreichen und laden zum Einkaufen und Verweilen ein. Für Freizeit und Erholung sorgt das Erholungsgebiet Wienerberg mit weitläufigen Spazier- und Radwegen.



Dank der ausgezeichneten Verkehrsanbindung ist das Objekt sowohl mit dem Auto als auch mit öffentlichen Verkehrsmitteln gut erreichbar: Die Buslinie 65A sowie die Straßenbahnlinien O und 67 befinden sich nur wenige Gehminuten entfernt. Die U1-Station Troststraße bietet eine direkte Verbindung ins Stadtzentrum und ist ebenfalls schnell zu erreichen.



Das Gebäude wurde 2009 im Zuge einer umfassenden Generalsanierung sowie eines Um- und Ausbaus eines ehemaligen Gewerbebaus in ein zeitgemäßes Wohnhaus umgewandelt. Heute umfasst es 56 Wohneinheiten, eine Geschäftsfläche mit Lager sowie 18 PKW- und 3 Motorradstellplätze.

Allgemeine Informationen zur Wohnung:



Diese freundliche und gut geschnittene 3-Zimmer-Wohnung im 10. Wiener Gemeindebezirk Favoriten besticht durch ihre durchdachte Raumaufteilung sowie ihr großzügiges Platzangebot. Alle Räume sind optimal nutzbar und schaffen ein angenehmes Wohngefühl. Ein besonderes Highlight ist die gemütliche Loggia, die zum Entspannen einlädt. Ergänzt wird das attraktive Wohnangebot durch einen praktischen Abstellraum, der zusätzlichen Stauraum bietet. Insgesamt überzeugt die Wohnung durch hohen Wohnkomfort und eignet sich ideal für Familien oder Paare mit erhöhtem Platzbedarf.



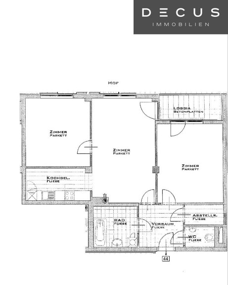
Raumaufteilung Top 44:



  • Vorraum, Bad, WC, Küche, Abstellraum, Wohnraum mit Kochnische samt Herd und Spüle, 2 Zimmer


Wichtig:



  • Bei den Bildern handelt es sich um Musterfotos einer ähnlichen Wohnung im Haus!
  • Die Wohnung ist derzeit noch vermietet. Besichtigungen erfolgen in Abstimmung mit dem aktuellen Mieter. Gegebenenfalls ist eine Besichtigung erst nach der Rückgabe Anfang März möglich.


Sonstiges:



  • Zuzüglich zu den angegebenen Kosten fallen verbrauchsabhängige Kosten für Strom, Heizung und Warmwasser an
  • Abwicklungshonorar Hausverwaltung (einmalig): brutto € 349.-
  • Der Wohnung ist ein Kellerabteil im UG zugeordnet
  • Fotos teilweise mit KI bearbeitet


Anfragen:



Bitte senden Sie Ihre Anfrage über das Kontaktformular – ich melde mich anschließend zeitnah mit weiteren Informationen und einem Terminvorschlag. Ich freue mich auf Ihre Anfrage!


Wir weisen darauf hin, dass zwischen dem Vermittler und dem zu vermittelnden Dritten ein familiäres oder wirtschaftliches Naheverhältnis besteht.


Der Immobilienmakler erklärt, dass er – entgegen dem in der Immobilienwirtschaft üblichen Geschäftsgebrauch des Doppelmaklers – einseitig nur für den Vermieter tätig ist.

DECUS Immobilien GmbH – Wir beleben Räume

Für weitere Informationen und Besichtigungen steht Ihnen gerne Frau  Anna-Lena Halbeisen unter der Mobilnummer +43 699 112 08 411und per E-Mail unter halbeisen@decus.at persönlich zur Verfügung.

www.decus.at | office@decus.at 

Wichtige Informationen

Bitte beachten Sie, dass per 13.06.2014 eine neue Richtlinie für Fernabsatz- und Auswärtsgeschäfte in Kraft getreten ist.

Ab 1.4.2024 entfallen die Grundbuchs- und Pfandrechtseintragungsgebühren vorübergehend für Eigenheime bis zu einer Bemessungsgrundlage von EUR 500.000,-. Voraussetzung ist das dringende Wohnbedürfnis, ausgenommen davon sind vererbte oder geschenkte Immobilien. Die Befreiung ist jedoch für den Einzelfall zu prüfen, DECUS Immobilien übernimmt hierzu keine Haftung.

Ab 01.07.2023 gilt das Erstauftraggeber-Prinzip bei Wohnungsmietverträgen, ausgenommen davon sind Dienst-/Natural-/Werkswohnungen. Wir dürfen gem. § 17 Maklergesetz darauf hinweisen, dass wir auf die Doppelmaklertätigkeit gem. § 5 Maklergesetz bei Wohnungsmietverträgen verzichten und nur noch einseitig tätig sind (bei den restlichen Vermittlungsarten nicht) und ein wirtschaftliches Naheverhältnis zu unseren Auftraggebern besteht. 

Im Falle eines Abschlusses mit Ihnen oder einem von Ihnen namhaft gemachten Dritten bzw. bei beidseitiger Willensübereinstimmung beträgt unser Honorar (lt. Honorarverordnung für Immobilienmakler) 2 Bruttomonatsmieten (BMM) bei Dienst-/Natural-/Werkwohnungen sowie Suchaufträgen, 3 BMM bei Gewerbe-, PKW-, Keller- und Lagermietverträgen sowie bei Kaufobjekten 3 % des Kaufpreises, zuzüglich der gesetzlichen Umsatzsteuer.

Dieses Objekt wird Ihnen unverbindlich und freibleibend angeboten. Oben angeführte Angaben basieren auf Informationen und Unterlagen des Eigentümers und sind unsererseits ohne Gewähr.

Nähere Informationen sowie unsere AGBs und die Nebenkostenübersichtsblatt finden Sie auf unserer Homepage www.decus.at unter "Service" - "Rechtliches zum FAGG" sowie im Anhang der zugesendeten Objekt-Exposés!

Infrastruktur / Entfernungen

Gesundheit
Arzt <250m
Apotheke <250m
Klinik <750m
Krankenhaus <1.000m

Kinder & Schulen
Schule <500m
Kindergarten <250m
Universität <1.250m
Höhere Schule <2.000m

Nahversorgung
Supermarkt <250m
Bäckerei <250m
Einkaufszentrum <1.750m

Sonstige
Geldautomat <500m
Bank <500m
Post <500m
Polizei <250m

Verkehr
Bus <250m
U-Bahn <1.250m
Straßenbahn <250m
Bahnhof <1.250m
Autobahnanschluss <2.000m

Angaben Entfernung Luftlinie / Quelle: OpenStreetMap

Eckdaten Objektnr. 1152337

Art: Wohnung
Land: Österreich
Gesamtmiete: 1.589,14
Kaltmiete (netto): 1.209,87 €
Kaltmiete: 1.444,67 €
Provision: Gemäß Erstauftraggeberprinzip bezahlt der Abgeber die Provision.
Betriebskosten: 216,88 €
MwSt Gesamt: 144,47 €
Nutzfläche: 89,62 m²
Zimmer: 3
Bäder: 1
WC: 1
Heizwärmebedarf:  B  42,70 kWh/m²a
fGEE:  C  1,01
Immobilie merken Exposé

Ausstattung

Fernwärme, Einbauküche, Personenaufzug, Badewanne


Immobilie anfragen


Ihre persönliche Beratung

DECUS Immobilien GmbH

Anna-Lena Halbeisen

DECUS Immobilien GmbH

T +43 699 112 08 411

H +43 699 112 08 411

F +43 1 35 600 10