Sanierungsbedürftiges Haus mit Garten & Ausbaupotenzial (Dachboden) zu verkaufen!

Haus , 2630 Ternitz


Das Haus liegt in der niederösterreichischen Stadt Ternitz. In der näheren Umgebung gibt es verschiedene Annehmlichkeiten wie Einkaufsmöglichkeiten, diverse Freizeit- und Sporteinrichtungen, Ärzte, Apotheken, Kindergärten sowie Schulen aller Schulstufen. Auch der Sportplatz, Banken, Geldautomaten, eine Polizeistation und eine Post sind in der näheren Umgebung zu finden. In unter 300m gelangt man zum Petersberg, auf dem man spatzieren und den Wald genießen kann. Die Autobahnauffahrt Neunkirchen sowie den Ternitzer Bahnhof erreichen Sie in wenigen Fahrminuten!

Beschreibung der Immobilie

Sanierungsbedürftiges Haus mit Garten & Ausbaupotenzial (Dachboden) zu verkaufen!

Zum Verkauf steht ein Sanierungsbedürtiges Haus in zentraler Lage von Ternitz, mit viel Entwicklungspotenzial für Handwerker, Investoren oder Eigennutzer mit Vision.



Das Haus befindet sich in einem separaten Gebäude auf einem Grundstück mit insgesamt drei Wohneinheiten, alle mit eigenem Eingang. Das zweite Haus mit zwei Wohneinheiten wird unter der Objektnummer 2079 angeboten.



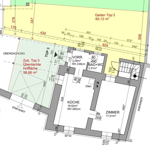
Der Zugang zum Haus erfolgt entweder über einen allgemeinen Innenhof oder über das hauseigene Garagentor, was zusätzliche Flexibilität bietet.



Raumaufteilung:




  • Küche



  • Vorraum



  • 1 Zimmer



  • Badezimmer mit Dusche und WC



  • Stiegenaufgang zu einem Rohdachboden, der zu zusätzlichem Wohnraum ausgebaut werden kann




Zustand & Ausstattung:




  • stark sanierungsbedürftig



  • keine Heizung vorhanden, Gasanschluss ist vorhanden



  • Elektrik erneuerungsbedürftig



  • aufsteigende Feuchtigkeit, Fassade derzeit nicht vorhanden (Trockenlegung erforderlich)



  • Dach sowie Rohdachboden, Sanierung notwendig




Extras:




  • Garten mit ca. 60,12 m²



  • Ausbaupotenzial durch Dachbodennutzung



  • zentrale Lage




Diese Immobilie eignet sich ideal für Käufer, die den Ist-Zustand realistisch einschätzen und das große Potenzial erkennen. Mit entsprechender Sanierung lässt sich hier ein individuelles Wohnobjekt oder ein interessantes Anlageobjekt schaffen.



Vereinbaren Sie noch heute einen Besichtigungstermin. Wir freuen uns auf Ihre Kontaktaufnahme!





Kaufpreis: € 58.000,00



Nebenkosten:

Grunderwerbssteuer: 3,5%

Grundbuchseintragung: 1,1%

Vertragserrichtung

Vermittlungshonorar:

3 % v. Kaufpreis + 20 % USt. = € 2.088,00






Infrastruktur / Entfernungen

Gesundheit
Arzt <1.000m
Apotheke <1.000m
Krankenhaus <3.500m
Klinik <10.000m

Kinder & Schulen
Schule <500m
Kindergarten <500m

Nahversorgung
Supermarkt <1.000m
Bäckerei <1.000m
Einkaufszentrum <1.500m

Sonstige
Bank <1.000m
Geldautomat <1.000m
Polizei <2.500m
Post <1.000m

Verkehr
Bus <500m
Autobahnanschluss <3.000m
Bahnhof <1.500m

Angaben Entfernung Luftlinie / Quelle: OpenStreetMap

Eckdaten Objektnr. 2076

Art: Haus
Land: Österreich
Baujahr: 1900
Zustand: Sanierungsbeduerftig
Alter: Altbau
Kaufpreis: 58.000,00
Provision: 2.088,00 € inkl. 20% USt.
Wohnfläche: 39,43 m²
Zimmer: 1
Bäder: 1
WC: 1
Garten: 60,12 m²
Heizwärmebedarf:  G  338,00 kWh/m²a
fGEE:  F  3,45
Immobilie merken Exposé

Ausstattung

Bad mit Fenster, Carport


Immobilie anfragen


Ihre persönliche Beratung

Schwarzataler Immobilien Treuhandgesellschaft m.b.H

Michaela Sommer

Schwarzataler Immobilien Treuhandgesellschaft m.b.H

T +43 2635 627 82 14

F +43 2635 627 82 75