Attraktives Renditeobjekt in Ternitz: Gepflegtes Mehrfamilienhaus mit Garten!

Haus - Mehrfamilienhaus, 2630 Ternitz


Das Haus liegt in der niederösterreichischen Stadt Ternitz. In der näheren Umgebung gibt es verschiedene Annehmlichkeiten wie Einkaufsmöglichkeiten, diverse Freizeit- und Sporteinrichtungen, Ärzte, Apotheken, Kindergärten sowie Schulen aller Schulstufen. Auch der Sportplatz, Banken, Geldautomaten, eine Polizeistation und eine Post sind in der näheren Umgebung zu finden. In unter 300m gelangt man zum Petersberg, auf dem man spatzieren und den Wald genießen kann.

Beschreibung der Immobilie

Attraktives Renditeobjekt in Ternitz: Gepflegtes Mehrfamilienhaus mit Garten!

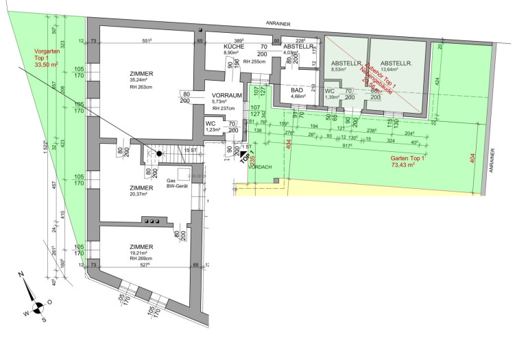
Zum Verkauf gelangen zwei eigenständige Wohneinheiten in einem gepflegten Mehrfamilienhaus in zentraler Lage von Ternitz. Beide Wohnungen befinden sich auf einem Grundstück mit insgesamt drei Einheiten, jeweils mit separatem Eingang.



Wichtiger Hinweis: Die Einheiten Top 1 (Erdgeschoss) und Top 2 (Dachgeschoss) werden ausschließlich gemeinsam verkauft.



Diese Kombination eignet sich ideal für:




  • Mehrgenerationenwohnen



  • Eigennutzer mit zusätzlicher Vermietungsmöglichkeit



  • Anleger mit attraktivem Entwicklungspotenzial






Erdgeschosswohnung mit Garten & Nebengebäude



Die großzügig geschnittene Erdgeschosswohnung verfügt über eine Wohnfläche von rund 122,93 m² und ist über einen separaten Eingang vom Innenhof aus erreichbar.



Raumaufteilung:




  • Vorraum



  • WC



  • Badezimmer mit großer Eckbadewanne



  • Abstellraum



  • Küche



  • Drei großzügige, lichtdurchflutete Zimmer




Von einem der Zimmer aus gelangt man in den rund 8,78 m² großen Keller.



Die Beheizung erfolgt über eine Gas-Zentralheizung mit Fußbodenheizung.



Ein besonderes Highlight ist das zugehörige Nebengebäude im Hof mit zwei Lagerräumen und einem WC. Dieses ist direkt an die Wohnung angeschlossen und bietet Ausbaupotenzial zu zusätzlichem Wohnraum – Heizungs- und Wasseranschlüsse sind bereits vorhanden.



Außenflächen:




  • Garten im Innenhof mit ca. 73,43 m²



  • Vorgarten mit ca. 33,50 m²



  • Überdachter Freibereich, ideal als Terrasse oder Grillplatz gestaltbar






Dachgeschosswohnung mit separatem Zugang



Über einen privaten Stiegenaufgang erreichen Sie die im 1. Obergeschoss gelegene Wohnung mit einer Wohnfläche von rund 79,83 m².



Raumaufteilung:




  • Zentraler Vorraum



  • Badezimmer mit WC



  • Küche



  • Drei Schlafzimmer




Die Wohnung befindet sich in einem gepflegten Zustand und bietet ein angenehmes Wohnambiente.



Beheizt wird mittels Gas-Etagenheizung.





Zusätzliche Einheit – Top 3 (separat zu kaufen)



Auf dem Grundstück befindet sich außerdem eine weitere Einheit (Top 3), welche sanierungsbedürftig ist und über einen eigenen Garten sowie eine Garage verfügt.



Diese Einheit wird separat zum Verkauf angeboten und ist unter der Objektnummer 2076 abrufbar.



Fazit



Diese Liegenschaft bietet Ihnen vielseitige Nutzungsmöglichkeiten – sei es zur Eigennutzung mit zusätzlicher Vermietung, als Mehrgenerationenlösung oder als solides Investmentobjekt mit weiterem Ausbaupotenzial.



Gerne übermitteln wir Ihnen weitere Unterlagen und stehen für einen Besichtigungstermin jederzeit zur Verfügung.



Wir freuen uns auf Ihre Anfrage!



Kaufpreis: € 219.000,00



Nebenkosten:

Grunderwerbssteuer: 3,5%

Grundbuchseintragung: 1,1%

Vertragserrichtung

Vermittlungshonorar:

3 % v. Kaufpreis + 20 % USt. = € 7.884,00

Infrastruktur / Entfernungen

Gesundheit
Arzt <1.000m
Apotheke <1.000m
Krankenhaus <3.500m
Klinik <10.000m

Kinder & Schulen
Schule <500m
Kindergarten <500m

Nahversorgung
Supermarkt <1.000m
Bäckerei <1.000m
Einkaufszentrum <1.500m

Sonstige
Bank <1.000m
Geldautomat <1.000m
Polizei <2.500m
Post <1.000m

Verkehr
Bus <500m
Autobahnanschluss <3.000m
Bahnhof <1.500m

Angaben Entfernung Luftlinie / Quelle: OpenStreetMap

Eckdaten Objektnr. 2079

Art: Haus - Mehrfamilienhaus
Land: Österreich
Baujahr: 1900
Zustand: Gepflegt
Alter: Altbau
Kaufpreis: 219.000,00
Provision: 7.884,00 € inkl. 20% USt.
Wohnfläche: 202,76 m²
Zimmer: 8
Bäder: 2
WC: 3
Garten: 106,56 m²
Keller: 8,78 m²
Heizwärmebedarf:  D  114,00 kWh/m²a
fGEE:  D  2,13
Immobilie merken Exposé

Ausstattung

Gas, Etagenheizung, Fußbodenheizung


Immobilie anfragen


Ihre persönliche Beratung

Schwarzataler Immobilien Treuhandgesellschaft m.b.H

Michaela Sommer

Schwarzataler Immobilien Treuhandgesellschaft m.b.H

T +43 2635 627 82 14

F +43 2635 627 82 75