AB 01.05.2026 verfügbar: Helles Erdgeschoß Büro oder Praxis in Linz: 3 Zimmer, Balkon und gemütliche Ausstattung!

Büro / Praxis , 4020 Linz , Margarethen 39


Diese charmante Erdgeschoßwohnung/Büro / Praxis in Margarethen, 4020 Linz, besticht durch ihre idyllische Lage mit Südausrichtung. Nur einen kurzen Spaziergang entfernt, erwartet Sie der malerische Donaustrand, ideal für entspannte Stunden im Freien. Die Umgebung bietet eine hervorragende Infrastruktur: Kindergarten, Schule, Gasthaus, Kirche sowie öffentliche Verkehrsanbindungen sind in unmittelbarer Nähe. Hier wohnen Sie zentral und dennoch naturnah – ein perfektes Zuhause für Familien und Naturliebhaber!

Beschreibung der Immobilie

AB 01.05.2026 verfügbar: Helles Erdgeschoß Büro oder Praxis in Linz: 3 Zimmer, Balkon und gemütliche Ausstattung!

Arbeiten mit Weitblick. Ankommen. Durchatmen. Wirken.



In zentraler Linzer Lage, direkt an der ruhigen Seite der Donau, bietet diese hochwertig ausgestattete Erdgeschoßfläche ideale Voraussetzungen für eine Praxis, Kanzlei oder ein modernes Büro. Die Adresse Margarethen 39 verbindet urbanes Umfeld mit einer angenehmen, grünen Atmosphäre in unmittelbarer Nähe zum Margarethner Donaustrand und Donaupark – ein Standort, der sowohl Mitarbeiter:innen als auch Kund:innen anspricht.



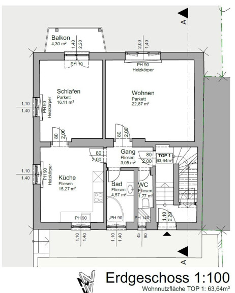
Auf 63,64 m² steht ein klar strukturierter, effizient nutzbarer Grundriss mit drei großzügigen, lichtdurchfluteten Räumen zur Verfügung. Die Fläche eignet sich hervorragend für unterschiedliche Nutzungskonzepte – etwa als Ordination, Therapie- oder Beratungsraum, Agentur, Studio oder repräsentatives Einzel- bzw. Zweipersonenbüro.



Der offen gestaltete Hauptraum schafft ein einladendes, professionelles Ambiente und bietet ausreichend Platz für Empfang, Arbeitsplätze oder Besprechungszonen. Eine voll ausgestattete Küche mit hochwertigen Geräten steht als praktische Teeküche für Pausen oder den Arbeitsalltag zur Verfügung.



Großzügige Fensterflächen sorgen für hervorragende Belichtung und eine angenehme Arbeitsatmosphäre. Der Blick in den gegenüberliegenden Donaupark, der erhöhte allgemeine Gartenbereich sowie der sonnige Südbalkon bieten zusätzliche Aufenthaltsqualität – ideal für kurze Pausen im Freien oder informelle Gespräche.



Die Ausstattung erfüllt hohe Ansprüche: Echtholzparkett, zeitlose Fliesen und eine effiziente Gas-Etagenheizung gewährleisten Komfort und Wirtschaftlichkeit. Das Badezimmer mit Fenster ist funktional und hochwertig ausgestattet und verfügt über Badewanne mit Duschmöglichkeit, Waschtisch, WC, Spiegel sowie eine Waschmaschine. Ergänzend steht ein allgemeiner Wasch- und Trockenraum mit neuer Wasserenthärtungsanlage, Hauswasserfilter und Waschmaschine zur Verfügung.



Auch die Infrastruktur überzeugt: Busverbindungen von WILIA und den Linz Linien gewährleisten eine schnelle Erreichbarkeit aller Stadtteile. Gastronomie, Nahversorgung und weitere Dienstleister befinden sich in fußläufiger Umgebung. Kostenlose Parkmöglichkeiten stehen direkt auf der gegenüberliegenden Straßenseite in ausreichender Anzahl zur Verfügung – ein klarer Vorteil für Kund:innen und Mitarbeiter:innen.



Diese Einheit bietet nicht nur Raum, sondern Qualität für professionelles Arbeiten – ruhig gelegen, repräsentativ und flexibel nutzbar.



Vereinbaren Sie gerne bereits jetzt eine Vormerkung für einen Besichtigungstermin.




Die Fläche ist ab 01.05.2026 verfügbar; Besichtigungen sind voraussichtlich erst kurz davor möglich. Detailfotos folgen in Kürze.

Noch nichts gefunden? Wir informieren Sie über geeignete Immobilienangebote noch vor allen anderen.
Legen Sie jetzt Ihren individuellen Suchagenten unter folgendem Link an. Wir schicken Ihnen passende Immobilien exklusiv vorab zu.

Suchagent anlegen - https://immobilien-atelier76.service.immo/registrieren/de


Wir weisen darauf hin, dass zwischen dem Vermittler und dem zu vermittelnden Dritten ein familiäres oder wirtschaftliches Naheverhältnis besteht.

Infrastruktur / Entfernungen

Gesundheit
Arzt <1.375m
Apotheke <1.625m
Klinik <2.325m
Krankenhaus <2.675m

Kinder & Schulen
Kindergarten <100m
Schule <200m
Universität <1.175m
Höhere Schule <2.875m

Nahversorgung
Supermarkt <1.525m
Bäckerei <175m
Einkaufszentrum <2.275m

Sonstige
Bank <1.575m
Geldautomat <1.575m
Post <1.575m
Polizei <900m

Verkehr
Bus <200m
Straßenbahn <875m
Bahnhof <1.250m
Autobahnanschluss <1.050m
Flughafen <6.075m

Angaben Entfernung Luftlinie / Quelle: OpenStreetMap

Eckdaten Objektnr. 356

Art: Büro / Praxis
Land: Österreich
Baujahr: 1958
Zustand: Gepflegt
Alter: Neubau
Kaltmiete (netto): 643,17 €
Kaltmiete: 818,17 €
Betriebskosten: 175,00 €
MwSt Gesamt: 163,63 €
Bürofläche: 63,64 m²
Zimmer: 3
Bäder: 1
WC: 1
Balkone: 1
Keller: 8,00 m²
Heizwärmebedarf:  D  145,00 kWh/m²a
fGEE:  C  2,14
Immobilie merken Exposé

Ausstattung

Fliesen, Parkettboden, Gas, Etagenheizung, Einbauküche, Südbalkon, Bad mit Fenster, Badewanne, Wasch/Trockenraum


Immobilie anfragen


Ihre persönliche Beratung

IMMOBILIEN-ATELIER76 GmbH

Mag. Michael Schwarzl

IMMOBILIEN-ATELIER76 Holding GmbH

T +43 650 9575900

H +43 650 9575900