Großzügige, neu renovierte Büro-Wohnung in repräsentativem Stilaltbau Nähe Staatsoper!

Wohnung , 1010 Wien , Tegetthoffstraße


Beschreibung der Immobilie

Großzügige, neu renovierte Büro-Wohnung in repräsentativem Stilaltbau Nähe Staatsoper!

Großzügige, neu renovierte Büro-Wohnung in repräsentativem Stilaltbau Nähe Staatsoper!



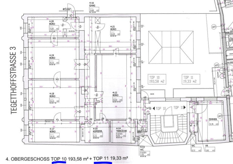
Zur langfristigen Vermietung gelangt ein geschmackvoll renoviertes 193,58 m² Mietobjekt, das sehr gut als eine Kombination aus Wohnung und Büro genutzt werden kann. Das Objekt befindet sich im 3. Lift-Stock; die weitgehend hellen Räume, der gediegene Altbaucharakter, sowie die zentrale Begehbarkeit aller Räume kombiniert mit der Infrastruktur der Kärntnerstraße zeichnen dieses Objekt besonders aus.




Raumaufteilung:
- Entree

- 6 helle Zimmer

- moderne Küche

- Abstellraum

- 2 Toiletten

- 1 Bad

Austattung:
Hauszentralheizung

Eichenparkettböden

Klimatisierung möglich



Für Fragen und Terminvereinbarungen kontaktieren Sie bitte Herrn Mag.Weiss, weiss@belmar.at, +43650 22 85 695 oder Frau Belmar grazia@belmar.at, +43 699 10 80 81 82
Wir möchten darauf hinweisen, dass Belmar Immobilien als Doppelmakler tätig ist. Sämtliche angegebenen Informationen basieren auf Daten, die uns von der Abgeberseite zur Verfügung gestellt wurden. Die Firma Belmar Immobilien kann die Richtigkeit dieser Angaben nicht gewährleisten und daher keinerlei Haftung dafür übernehmen.


Hinweis gemäß Energieausweisvorlagegesetz: Ein Energieausweis wurde vom Eigentümer bzw. Verkäufer, nach unserer Aufklärung über die generell geltende Vorlagepflicht, sowie Aufforderung zu seiner Erstellung noch nicht vorgelegt. Daher gilt zumindest eine dem Alter und der Art des Gebäudes entsprechende Gesamtenergieeffizienz als vereinbart. Wir übernehmen keinerlei Gewähr oder Haftung für die tatsächliche Energieeffizienz der angebotenen Immobilie.


Wir weisen darauf hin, dass zwischen dem Vermittler und dem zu vermittelnden Dritten ein wirtschaftliches Naheverhältnis mit gesellschaftlicher Verflechtung besteht.


Der Immobilienmakler erklärt, dass er – entgegen dem in der Immobilienwirtschaft üblichen Geschäftsgebrauch des Doppelmaklers – einseitig nur für den Vermieter tätig ist.

Infrastruktur / Entfernungen

Gesundheit
Arzt <250m
Apotheke <250m
Klinik <1.000m
Krankenhaus <1.250m

Kinder & Schulen
Schule <500m
Kindergarten <750m
Universität <250m
Höhere Schule <500m

Nahversorgung
Supermarkt <250m
Bäckerei <250m
Einkaufszentrum <500m

Sonstige
Geldautomat <250m
Bank <250m
Post <250m
Polizei <250m

Verkehr
Bus <250m
U-Bahn <250m
Straßenbahn <500m
Bahnhof <500m
Autobahnanschluss <3.500m

Angaben Entfernung Luftlinie / Quelle: OpenStreetMap

Eckdaten Objektnr. 11214100000620

Art: Wohnung
Land: Österreich
Zustand: Gepflegt
Alter: Altbau
Gesamtmiete: 4.949,45
Kaltmiete (netto): 3.871,60 €
Kaltmiete: 4.293,60 €
Provision: Gemäß Erstauftraggeberprinzip bezahlt der Abgeber die Provision.
Betriebskosten: 363,93 €
Heizkosten: 193,58 €
MwSt Gesamt: 462,27 €
Wohnfläche: 193,58 m²
Immobilie merken Exposé

Ausstattung

Parkett, Gas, Etagenheizung, Personenaufzug


Immobilie anfragen


Ihre persönliche Beratung

Ticon Immobilienservice

Grazia Belmar

Ticon Immobilienservice

T 0699/10808182

H 0699/10808182

F +43 1 96 18 101