Nöchling - traumhafte 3 Zimmerwohnung im Grünen
Wohnung
,
3691
Nöchling
,
Birkenweg
Nöchling liegt in der südwestlichen Ecke des Waldviertels in Niederösterreich und ist ca. 32 Autominuten von Melk entfernt. Nöchling ist aufgrund des herrlichen Kleinbadeteichs und der traumhaften Wanderrouten ein beliebter kleiner aber feiner Tourismusort im Waldviertel.
Beschreibung der Immobilie
Nöchling - traumhafte 3 Zimmerwohnung im Grünen
Willkommen in Nöchling in Niederösterreich – hier erwartet Sie eine attraktive Wohnung in ruhiger, idyllischer Lage mit hohem Wohnkomfort.
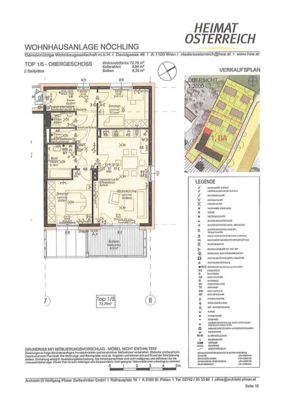
Die rund 73 m² große Wohnfläche bietet ausreichend Platz zum Wohlfühlen. Zusätzlich lädt ein etwa 8 m² großer Balkon dazu ein, entspannte Stunden im Freien zu genießen.
Das großzügige Wohnzimmer mit harmonisch integrierter Kochnische bildet das Herzstück der Wohnung. Von hier aus gelangen Sie direkt auf den Balkon, wo Sie den Blick ins Grüne schweifen lassen und den Tag entspannt beginnen oder ausklingen lassen können.
Beide Schlafzimmer sind vom Vorraum aus erreichbar und bieten vielseitige Nutzungsmöglichkeiten.
Das Badezimmer ist mit einer Badewanne ausgestattet, das WC befindet sich in einem separaten Raum. Ein zusätzlicher Abstellraum sorgt für praktischen Stauraum im Alltag.
Ein eigenes Kellerabteil sowie zwei im Mietpreis inkludierte Autoabstellplätze ergänzen dieses attraktive Angebot ideal.
Im Ort selbst profitieren Sie von einer guten Infrastruktur mit Einkaufsmöglichkeiten sowie Kindergarten und Schule – besonders familienfreundlich. Naturliebhaber kommen dank zahlreicher Wanderwege und der Freizeitanlage am Badeteich ebenfalls voll auf ihre Kosten.
Diese Wohnung vereint Wohnqualität, Komfort und eine angenehme Umgebung – ein Zuhause, das keine Wünsche offenlässt.
Befristung: unbefristet, 1 Jahr Kündigungsverzicht 3 Monate Kündigungsfrist
Bezug: ab 01.04.2026
Energiekennzahlen: Laut Energieausweis vom 28.05.2025 beträgt der Heizwärmebedarf 40,60 kWh/m²a Klasse B und der Gesamtenergieeffizienz-Faktor 0,60 Klasse A+.
Der einmalige Finanzierungsbeitrag beträgt € 12.956,62 und die monatliche Miete beläuft sich auf € 850,49 inkl. BK und Ust.
Noch nichts gefunden? Wir informieren Sie über geeignete Immobilienangebote noch vor allen anderen.
Legen Sie jetzt Ihren individuellen Suchagenten unter folgendem Link an. Wir schicken Ihnen passende Immobilien exklusiv vorab zu.
Suchagent anlegen - https://heimat-oesterreich.service.immo/registrieren/de
Infrastruktur / Entfernungen
Gesundheit
Arzt <6.250m
Apotheke <8.500m
Krankenhaus <8.500m
Kinder & Schulen
Schule <250m
Kindergarten <500m
Nahversorgung
Supermarkt <250m
Bäckerei <250m
Einkaufszentrum <9.250m
Sonstige
Bank <6.250m
Geldautomat <6.250m
Post <500m
Polizei <8.750m
Verkehr
Bus <250m
Bahnhof <3.250m
Angaben Entfernung Luftlinie / Quelle: OpenStreetMap
Eckdaten Objektnr. 5060
| Art: | Wohnung |
| Land: | Österreich |
| Baujahr: | 2015 |
| Zustand: | Gepflegt |
| Alter: | Neubau |
| Gesamtmiete: | 850,49 € |
| Kaltmiete (netto): | 850,49 € |
| Kaltmiete: | 850,49 € |
| Provision: | Provision bezahlt der Abgeber. |
| Wohnfläche: | 72,79 m² |
| Zimmer: | 3 |
| Bäder: | 1 |
| WC: | 1 |
| Balkone: | 1 |
| Stellplätze: | 2 |
| Keller: | 3,84 m² |
| Heizwärmebedarf: | B 40,60 kWh/m²a |
| fGEE: | A+ 0,60 |
Ausstattung
Fliesen, Laminatboden, Solarenergie, Personenaufzug, Badewanne, Parkplatz
Ihre persönliche Beratung
Luisa Burkhardt
Heimat Österreich gemeinnützige Wohnungs- und Siedlungsgesellschaft m.b.H.
T +43 1 9823601 637
H 0676 3794347