Sehr gute Sichtbarkeit auf der Nussdorfer Straße

Einzelhandel , 1090 Wien


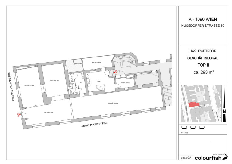
Beschreibung der Immobilie

Sehr gute Sichtbarkeit auf der Nussdorfer Straße

Zur langfristigen Vermietung gelangt ein Geschäftslokal auf der Nussdorfer Straße / Himmelpfortstiege mit knapp 300 m² und einer offenen Raumgestaltung - hier können viele Konzepte Raum und Verwirklichung finden.



Gastronomie und Ärzte sind leider ausgeschlossen.



Diese Fläche verfügt über einen Lagerraum, eine voll ausgestattete Küche, getrennte Toiletten, ein Bad sowie 2 Eingänge.



verfügbare Fläche/Konditionen:
EG: ca. 293 m² - netto € 12,50/m²/Monat

Betriebskosten: netto € 1,80/m²/Monat



Alle Preise zzgl. 20% USt.



Öffentliche Verkehrsanbindung:
U-Bahn: U6 (Währinger Straße oder Nussdorfer Straße jeweils in wenigen Gehminuten erreichbar)

Straßenbahn: 5, 12, 37, 38

Bus: 40A



Individualverkehr:
sehr gute Anbindung über den Gürtel

Flughafen Wien Schwechat in ca. 30 Minuten erreichbar


Wir weisen darauf hin, dass zwischen dem Vermittler und dem zu vermittelnden Dritten ein familiäres oder wirtschaftliches Naheverhältnis besteht.

Infrastruktur / Entfernungen

Gesundheit
Arzt <500m
Apotheke <500m
Klinik <500m
Krankenhaus <1.000m

Kinder & Schulen
Schule <500m
Kindergarten <500m
Universität <500m
Höhere Schule <500m

Nahversorgung
Supermarkt <500m
Bäckerei <500m
Einkaufszentrum <2.000m

Sonstige
Geldautomat <500m
Bank <500m
Post <500m
Polizei <500m

Verkehr
Bus <500m
U-Bahn <500m
Straßenbahn <500m
Bahnhof <500m
Autobahnanschluss <1.500m

Angaben Entfernung Luftlinie / Quelle: OpenStreetMap

Eckdaten Objektnr. 7444

Art: Einzelhandel
Land: Österreich
Baujahr: 1912
Alter: Altbau
Kaltmiete (netto): 3.662,50 €
Kaltmiete: 4.189,90 €
Miete / m²: 12,50 €
Provision: 3 Bruttomonatsmieten zzgl. 20% USt.
Betriebskosten: 527,40 €
MwSt Gesamt: 837,98 €
Nutzfläche: 293,00 m²
Zimmer: 3
WC: 2
Heizwärmebedarf:  D  114,80 kWh/m²a
fGEE:  C  1,39
Immobilie merken Exposé

Ausstattung

Parkettboden, Gas, Einbauküche


Immobilie anfragen


Ihre persönliche Beratung

Colourfish Real Estate Immobilienmakler GmbH

Sophie Schmück

Colourfish Real Estate Immobilienmakler GmbH

T +43 1 535 1111

H +43 664 356 46 56