Charmantes Eigenheim mit Pool und stilvollen Details

Haus , 1220 Wien


Das Haus befindet sich im 22. Bezirk (Donaustadt). Es liegt in einer ruhigen Wohngegend und ist gut an das öffentliche Verkehrsnetz angeschlossen. In unmittelbarer Nähe befindet sich eine Bushaltestelle, von der aus man schnell und bequem in die Innenstadt gelangen kann. Auch Einkaufsmöglichkeiten, Schulen und Freizeiteinrichtungen sind in der Umgebung vorhanden.

Beschreibung der Immobilie

Charmantes Eigenheim mit Pool und stilvollen Details

Lassen Sie Sich von unserer 360°- 3D Besichtigung überzeugen - Von der Parkbank, vom Sofa oder auch vom Bett, gemütlich über Handy, Tablett, Computer oder Ihrem Internetfähigen Fernseher.



360°- 3D Besichtigung Link: https://my.matterport.com/show/?m=engwu5iK3MV



Willkommen in Ihrem neuen Zuhause in einer begehrenswerten Lage Wiens - dem 22. Bezirk. Diese Immobilie befindet sich in einer ruhigen und grünen Gegend und bietet Ihnen die perfekte Kombination aus  Wohnkomfort und idyllischer Natur.



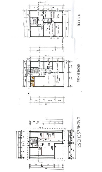
Das Haus erstreckt sich über großzügige 181 m² und bietet somit ausreichend Platz für Sie und Ihre Familie. Die Grundstücksfläche beträgt 554 m². Mit 4 geräumigen Zimmern, 2 Bädern und 2 WCs ist genügend Raum für Privatsphäre und gemeinsame Momente gegeben. Der großzügige Wohnbereich, der sich in eine offene Küche integriert, lädt zum Entspannen und Verweilen ein. 



Ein herausragendes Merkmal dieser Immobilie ist der idyllische Grünblick, den Sie aus nahezu jedem Raum genießen können. Der atemberaubende Ausblick auf die umliegende Natur und den eleganten Swimmingpool schafft eine unvergleichlich entspannte Atmosphäre und verleiht dem Anwesen eine besondere Note. Im liebevoll gestalteten Garten befindet sich zudem ein stilvoller Brunnen, der das harmonische Gesamtbild perfekt abrundet. Ein zusätzlicher Vorteil dieses Brunnens liegt in der autarken Wasserversorgung – für die Gartenbewässerung sowie die Befüllung des Pools fallen keine Wasserabgaben an die Stadt Wien an.



Das Haus ist mit  Fliesen ausgestattet und wird durch eine Gasheizung beheizt, was für angenehme Wärme in den kalten Monaten sorgt. Das Bad mit Fenster und das separate WC bieten zusätzlichen Komfort. Die Dachform des Hauses, ein klassisches Satteldach, verleiht dem Gebäude eine zeitlose Eleganz.



Der Keller hat eine Fläche von ca. 108 m2 und umfasst 2 großzügige Lagerräume, die sich hervorragend für Werkangelegenheiten eignen, Heiz und Trockenbereiche sowie ein extra Bürozimmer. Dieses zusätzliche Platzangebot macht die Immobilie noch vielseitiger und bietet Ihnen flexible Nutzungsmöglichkeiten



Ein weiteres Highlight dieser Immobilie sind die beiden Stellplätze, die Ihnen das lästige Parkplatzsuchen ersparen und für eine stressfreie Anreise sorgen. Auch die Verkehrsanbindung ist optimal - eine Bushaltestelle befindet sich in unmittelbarer Nähe.



Diese einzigartige Immobilie lässt keine Wünsche offen – vereinbaren Sie noch heute Ihren Besichtigungstermin und lassen Sie sich begeistern! 



"BITTE BEACHTEN SIE, DASS WIR AUFGRUND DER NACHWEISPFLICHT GEGENÜBER DEM EIGENTÜMER NUR ANFRAGEN MIT VOLLSTÄNDIGER ANGABE DER ANSCHRIFT UND ANGABEN ZUR PERSON (NAME, TELEFON, E-MAIL) BEARBEITEN KÖNNEN."



http://www.realimmo.wien






Wir weisen darauf hin, dass zwischen dem Vermittler und dem zu vermittelnden Dritten ein familiäres oder wirtschaftliches Naheverhältnis besteht.


Der Vermittler ist als Doppelmakler tätig.

Infrastruktur / Entfernungen

Gesundheit
Arzt <2.500m
Apotheke <3.500m
Klinik <3.500m
Krankenhaus <6.000m

Kinder & Schulen
Schule <2.500m
Kindergarten <3.000m
Universität <3.500m
Höhere Schule <3.500m

Nahversorgung
Supermarkt <3.000m
Bäckerei <2.500m
Einkaufszentrum <5.000m

Sonstige
Geldautomat <3.500m
Bank <3.500m
Post <3.500m
Polizei <3.500m

Verkehr
Bus <500m
U-Bahn <2.500m
Straßenbahn <2.500m
Bahnhof <2.500m
Autobahnanschluss <3.000m

Angaben Entfernung Luftlinie / Quelle: OpenStreetMap

Eckdaten Objektnr. 56096

Art: Haus
Land: Österreich
Kaufpreis: 695.000,00
Provision: 3% des Kaufpreises zzgl. 20% USt.
Wohnfläche: 181,00 m²
Grundstücksfl.: 554,00 m²
Zimmer: 4,50
Bäder: 2
WC: 2
Stellplätze: 2
Keller: 108,00 m²
Heizwärmebedarf:  B  50,00 kWh/m²a
fGEE:  A+  0,70
Immobilie merken Exposé

Ausstattung

Fliesen, Gas, Einbauküche, Wohnküche / offene Küche, Bad mit Fenster, Swimmingpool


Immobilie anfragen


Ihre persönliche Beratung

Real Immo Wien Immobilientreuhand - Inh. Gerald Frank

Philipp Stummer

Real Immo Wien Immobilientreuhand

T +4315120488

H +4366499651213