Ihr Premium-Bauplatz in idyllischer Lage – Grundstücke ab 850 m² - Nähe Lannach & St. Josef Oisnitz

Grundstück - Baugrund Eigenheim, 8503 Lannach


Die angebotenen Grundstücke befinden sich in einer der begehrtesten Wohnlagen der Weststeiermark – in unmittelbarer Nähe zu Lannach und St. Josef (Oisnitz). Eingebettet in eine idyllische, ruhige Umgebung, genießen Sie hier absolute Privatsphäre und einen unvergleichlichen Ausblick auf die sanften Hügel der Region. Die Lage vereint Natur und Komfort. Nur wenige Minuten entfernt finden Sie alle wichtigen Einrichtungen wie Einkaufsmöglichkeiten, Schulen und Ärzte. Die hervorragende Verkehrsanbindung ermöglicht eine schnelle Erreichbarkeit von Graz sowie den umliegenden Gemeinden. Nur wenige Minuten von Lannach und St. Josef (Oisnitz) entfernt, genießen Sie absolute Ruhe, Privatsphäre und einen unvergleichlichen Panoramablick. Die perfekte Kombination aus Natur und urbaner Nähe, Graz erreichen Sie in kurzer Zeit, während Sie vor Ort alle wichtigen Einrichtungen wie Schulen, Einkaufsmöglichkeiten, Ärzte und den Bahnhof finden.

Beschreibung der Immobilie

Ihr Premium-Bauplatz in idyllischer Lage – Grundstücke ab 850 m² - Nähe Lannach & St. Josef Oisnitz

Ihr Premium-Bauplatz in idyllischer Lage – Grundstücke ab 850 m² - Nähe Lannach & St. Josef Oisnitz





Ihr Traum beginnt hier:





Inmitten der idyllischen Hügellandschaft der Weststeiermark entstehen exklusive Baugrundstücke, die keine Wünsche offenlassen. Mit einer Gesamtfläche von rund 5.000 m² und Parzellen ab 850 m² bietet dieses Projekt Raum für Individualität und höchste Wohnqualität. Exklusives Wohnen in Best-Lage, Grundstücke für höchste Ansprüche. Diese Grundstücke sind mehr als nur Bauplätze, sie sind die Grundlage für Ihr persönliches Wohnparadies. Sichern Sie sich Ihr Stück Weststeiermark und verwirklichen Sie Ihren Traum vom exklusiven Wohnen.


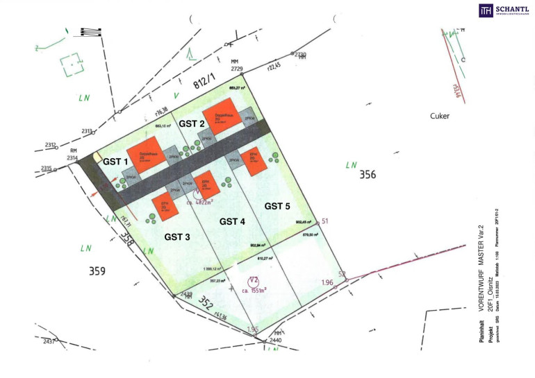
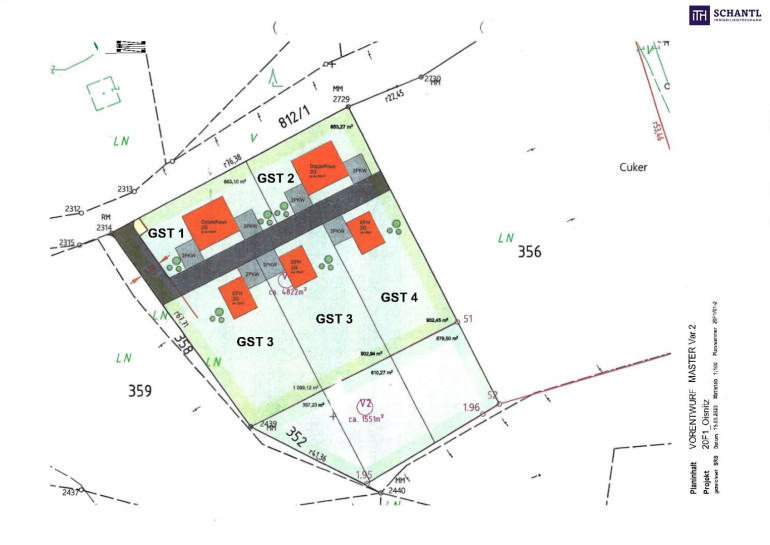
Das gesamte Bau- Grundstück beträgt gesamt 4.822m² (zur Zeit in insgesamt 5 Baugrundstücke aufgeteilt)



GST 3 - Oisitz, 8503 St. Josef:




  • Grundstücksfläche: 1.099,12 m²



  • Kaufpreis € 351.718 (€ 320/m²)



  • ebenes Grundstück!



  • Baudichte bis 0,6!



  • Errichtung von ca. 500m² Wohnfläche möglich!



  • TOP Anbindung!



  • Ganztagssonne!



  • Wohlfühlgarantie!



  • Ruhelage mit tollem Ausblick!



  • Vollerschlossen - sämtliche Anschlüsse (Wasser, Strom, Kanal) direkt am Grundstück!



  • sinnvolle Parzellierung im Sinne des Bebauungsplanes, die Mindestgröße muss jedoch 850m² betragen!



  • komplette Aufschließung an den Grundstücken!



  • Nahwärme wird angeschlossen!



  • rechtlich gesicherte und technisch geeignete Zufahrt!



  • Gefahrenfreistellung hinsichtlich Erdrutsch!



  • 3% Provision zuzüglich UST






Weitere verfügbare Grundstücke:



Zwei der Grundstücke befinden sich an der Straße!



GST 1 mit 683,10m², (geeignet für eine DHH), S-Ausrichtung, um € 150.282 (€ 220/m²)


GST 2 mit 663,27m², (geeignet für eine DHH), S-Ausrichtung, um € 145.919 (€ 220/m²)


Drei der Grundstücke befinden sich in Richtung Landwirtschaftliche Fläche, tolle Aussicht!



GST 3 mit 1.099,12m², (geeignet für EFH), S-Ausrichtung, € 351.718 (€ 320/m²), hier gibt es auch noch die Möglichkeit sein Grundstück mit LF-Nutzung zu erweitern


GST 4 mit 902,94m², (geeignet für EFH), S-Ausrichtung, € 288.940 (€ 320/m²), hier gibt es auch noch die Möglichkeit sein Grundstück mit LF-Nutzung um zu erweitern


GST 5 mit 902,45m², (geeignet für EFH), S-Ausrichtung, € 288.784 (€320/m², hier gibt es auch noch die Möglichkeit sein Grundstück mit LF-Nutzung um zu erweitern 


Ein zusätzliches Grundstück mit LF-Nutzung beträgt gesamt 1.551m², dieses kann je nach Wunsch den Grundstücken 3-5 um € 22,00 /m² hinzugefügt werden!





Worauf noch warten?



Vereinbaren Sie noch heute eine Besichtigung mit uns! Sie wollen Ihre Immobilie verkaufen? Dann sind Sie bei uns goldrichtig! Wir sind gerne für Sie da und unterstützen Sie unverbindlich bei der Bewertung Ihrer Immobilie. Mit viel Sorgfalt stellen wir Ihnen alle wichtigen Informationen und Unterlagen zusammen, damit Sie die besten Entscheidungen treffen können. In Kooperation mit unserer SFI Vermögenstreuhand begleiten wir Sie bei der Verwirklichung Ihres Traumobjekts und unterstützen Sie beim nachhaltigen Vermögensaufbau. Mit unseren erfahrenen Experten sorgen wir dafür, dass Sie die besten Konditionen erhalten, damit Ihre Träume Wirklichkeit werden!


www.schantl-ith.at in Kooperation mit www.sfi-invest.com 


Die Angaben über das angebotene Objekt erfolgen mit der Sorgfalt eines ordentlichen Immobilienmaklers; für die Richtigkeit solcher Angaben, die auf Informationen der über das Objekt Verfügungsberechtigten beruhen, wird keine Gewähr geleistet.







Der Vermittler ist als Doppelmakler tätig.

Infrastruktur / Entfernungen

Gesundheit
Arzt <3.250m
Apotheke <5.500m

Kinder & Schulen
Schule <1.500m
Kindergarten <2.500m

Nahversorgung
Supermarkt <1.750m
Bäckerei <4.750m

Sonstige
Geldautomat <1.500m
Bank <1.500m
Polizei <5.500m
Post <5.250m

Verkehr
Bus <750m
Bahnhof <2.750m
Autobahnanschluss <7.250m

Angaben Entfernung Luftlinie / Quelle: OpenStreetMap

Eckdaten Objektnr. 294564

Art: Grundstück - Baugrund Eigenheim
Land: Österreich
Kaufpreis: 351.718,40
Kaufpreis / m²: 320,03 €
Grundstücksfl.: 1.099,00 m²
Immobilie merken Exposé

Immobilie anfragen


Ihre persönliche Beratung

Schantl ITH Immobilientreuhand GmbH

Ursula Seiwald

Schantl ITH Immobilientreuhand GmbH

T +436645411047

H +43 664 5725475