320 m² Wohnfläche um € 249.000 – Wohnen mit Geschichte in Toplage

Haus - Einfamilienhaus, 8680 Mürzzuschlag


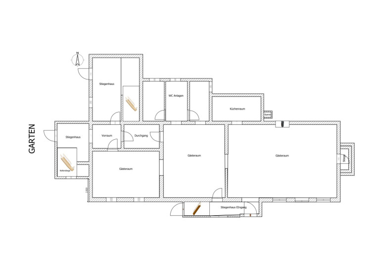
Beschreibung der Immobilie

320 m² Wohnfläche um € 249.000 – Wohnen mit Geschichte in Toplage

Wohnen über den Dächern – Raum, Licht und Weitblick





Diese außergewöhnliche Dachgeschosswohnung ist das Herzstück der Liegenschaft. Auf über 150 m² Wohnfläche entfaltet sich ein großzügiges, lichtdurchflutetes Wohnkonzept, das modernes Wohnen mit dem unverwechselbaren Charme eines Altbaus verbindet.



Die im Zuge des Dachausbaus 2002 komplett neu errichtete Mansardenwohnung überzeugt durch:




  • 6 flexibel nutzbare Zimmer – ideal für Familie, Homeoffice, Atelier oder Gäste



  • Offenes Raumkonzept mit Wohnzimmer, Essbereich und Galerie/Büro



  • Zahlreiche Dachflächenfenster auf allen Seiten – außergewöhnliche Helligkeit zu jeder Tageszeit



  • Balkon (ca. 4 m²) und großzügige Terrasse (ca. 18 m²)



  • Teilmöblierter Zustand



  • Großzügige Raumhöhen und ein einzigartiges Wohngefühl über den Dächern der Stadt




Ein Wohnraum mit Seltenheitswert – ruhig, repräsentativ und voller Atmosphäre.




Ein Haus mit Geschichte und Zukunft



Erst nach dem Wohnerlebnis erschließt sich die besondere Historie dieser Immobilie. Das rund 105 Jahre alte Gebäude war über Jahrzehnte hinweg als der weit über die Stadtgrenzen hinaus bekannte „Gasthof zum Felsenkeller“ ein fixer Bestandteil der regionalen Gastronomieszene. In den 1990er-Jahren wurde der Betrieb erfolgreich als Pizzeria weitergeführt.



Über die letzten 20 Jahre wurde die Liegenschaft laufend erweitert, adaptiert und instand gehalten. Der Dachausbau samt Anhebung der Dachkonstruktion markierte dabei einen zentralen Meilenstein und schuf die heute so beeindruckende Dachgeschosswohnung.



Aus Pensionierung der Eigentümer steht diese geschichtsträchtige Immobilie nun zum Verkauf – bereit für ein neues Kapitel.




Ehemalige Gastronomie – Raum für neue Ideen



Die Gastronomiefläche im Erdgeschoss (ca. 155 m²) befindet sich in einem sanierungsbedürftigen, jedoch bereits vorbereiteten Zustand:




  • Theke, Schank, Möblierung und WC-Anlagen entfernt



  • Teilweise geöffnete Wände für einfache Leitungsführung



  • Alte Radiatoren entfernt - Erneuerungsbedarf



  • Pizzaofen der ehemaligen Pizzeria vorhanden




Ideal geeignet für neue Gastronomiekonzepte, Praxis, Büro, Atelier, Eventfläche oder alternative Nutzungen.




Vollunterkellert mit Event-Vergangenheit



Der Kellerbereich (über 75 m²) bietet:




  • Ehemalige Disco-Fläche



  • Heizraum



  • Tankraum



  • Großzügige Lagerflächen





Außenflächen & Infrastruktur



Das 2.812 m² große Grundstück bietet außergewöhnlich viel Platz:




  • Ehemaliger Sitzgarten mit Pavillon (ca. 38 m²) und Grillplatz



  • Großer Parkplatz für ca. 6–10 Fahrzeuge



  • Garage für 1 PKW + Carport



  • Nebengebäude als Lagerfläche



  • Zwei getrennte Zufahrten





Lage – zentral & hervorragend angebunden




  • Zentrale Lage in Mürzzuschlag und doch außerhalb des Stadtkerns



  • Autobahn ca. 1.000 m



  • Bahnhof ca. 800 m



  • Schulen, Kindergarten, Ärzte, Krankenhaus und Nahversorgung fußläufig erreichbar



  • Skigebiet Stuhleck ca. 15 km, Semmering ca. 20 km



  • Wien & Graz jeweils in ca. 1 Stunde erreichbar





Fakten auf einen Blick




  • Objekttyp: Einfamilienhaus / ehemalige Gastronomie



  • Baujahr: ca. 1920



  • Wohn-/Nutzfläche: ca. 320 m²



  • Grundstück: 2.812 m²



  • Heizung: Ölheizung



  • Energiekennzahl: HWB 180,4 kWh/m²a (Klasse E)



  • Kaufpreis: € 249.000



  • Verfügbar: ab sofort





Fazit



Eine einzigartige Dachgeschosswohnung mit Seltenheitswert, kombiniert mit einer vielseitig nutzbaren Gewerbe- und Wohnliegenschaft voller Geschichte und Entwicklungspotenzial.

Ideal für Eigennutzer mit Platzanspruch, Visionäre, Investoren oder alle, die Wohnen und Arbeiten an einem besonderen Ort vereinen möchten.



Ein Haus. Viele Möglichkeiten. Mitten in Mürzzuschlag.


Der Vermittler ist als Doppelmakler tätig.

Infrastruktur / Entfernungen

Gesundheit
Arzt <500m
Apotheke <500m
Krankenhaus <500m

Kinder & Schulen
Schule <500m
Kindergarten <1.000m

Nahversorgung
Supermarkt <500m
Bäckerei <500m
Einkaufszentrum <2.000m

Sonstige
Bank <500m
Geldautomat <500m
Post <500m
Polizei <1.000m

Verkehr
Bus <500m
Autobahnanschluss <2.000m
Bahnhof <1.000m

Angaben Entfernung Luftlinie / Quelle: OpenStreetMap

Eckdaten Objektnr. 3812/348

Art: Haus - Einfamilienhaus
Land: Österreich
Baujahr: 1920
Zustand: Sanierungsbeduerftig
Möbliert: Teil
Alter: Altbau
Kaufpreis: 249.000,00
Provision: 3% des Kaufpreises zzgl. 20% USt.
Betriebskosten: 65,00 €
Heizkosten: 190,00 €
Sonstige Kosten: 100,00 €
Wohnfläche: 320,00 m²
Grundstücksfl.: 2.812,00 m²
Zimmer: 10
Bäder: 1
WC: 1
Balkone: 1
Terrassen: 1
Stellplätze: 8
Garten: 38,00 m²
Keller: 75,00 m²
Heizwärmebedarf:  E  180,40 kWh/m²a
fGEE:  E  2,87
Immobilie merken Exposé

Ausstattung

Parkett, Estrichboden, Fliesen, Laminatboden, Öl, Zentralheizung, Einbauküche, Wohnküche / offene Küche, Bad mit Fenster, Badewanne, Dusche, Kabel/Satelliten-TV, Carport, Garage, Parkplatz, Sauna


Immobilie anfragen


Ihre persönliche Beratung

RE/MAX Smart

Bernhard Valant

RE/MAX Smart

T +436769224972

H +43 676 922 49 72