1100 Wien / HBF-Nähe: Neuwertige 5-Zimmer-Wohnung (96 m²) als Investment – Nettomiete € 1.185,65, bis 2027

Wohnung , 1100 Wien , Leebgasse


Die Wohnung befindet sich in der Leebgasse im 10. Bezirk von Wien. Sie liegt in der Nähe vieler wichtiger Einrichtungen wie einem Arzt, einer Apotheke, einer Klinik, einer Schule und einem Kindergarten. Auch Supermärkte, eine Bäckerei und ein Einkaufszentrum sind in unmittelbarer Nähe vorhanden. Für Bankgeschäfte gibt es Geldautomaten, Banken und eine Postfiliale in der Nähe. Die Polizei ist ebenfalls gut erreichbar.

Beschreibung der Immobilie

1100 Wien / HBF-Nähe: Neuwertige 5-Zimmer-Wohnung (96 m²) als Investment – Nettomiete € 1.185,65, bis 2027

https://vires.at



Kapitalanlage – vermietete 5-Zimmer-Wohnung nahe Wien Hauptbahnhof (1100 Wien)



Investment-Highlights




  • Nettorendite: 3,57%



  • Monatlicher Nettomietzins: € 1.185,65



  • Vermietungsstatus: sehr gut vermietet, befristet bis Sommer 2027



  • Kaufpreis: € 399.000



  • Wohnfläche: ca. 96 m²



  • Zimmer: 5



  • Lift: vorhanden (Personenaufzug)




Objektbeschreibung



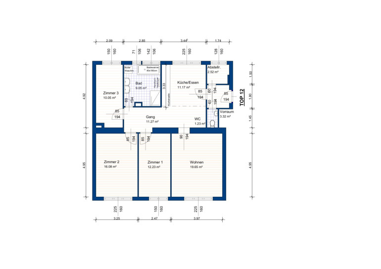
Zum Verkauf gelangt eine großzügige, modern ausgestattete 5-Zimmer-Wohnung mit ca. 96 m² in einer stark nachgefragten Lage des 10. Bezirks – in Nähe Wien Hauptbahnhof. Die Einheit befindet sich in einem gepflegten Wohnhaus und ist komfortabel per Lift erreichbar. Die Wohnung ist neuwertig und bietet durch Größe, Aufteilung und Mikrolage eine nachhaltige Vermietbarkeit.



Raumkonzept & Ausstattung



Die Wohnung überzeugt durch ein zeitgemäßes Wohnkonzept mit einer offenen, voll ausgestatteten Wohnküche, die den Mittelpunkt der Wohnung bildet. Hochwertige Materialien und ein stimmiges Gesamtkonzept unterstützen sowohl Eigennutzer- als auch Anlegeranforderungen.



Ausstattungsmerkmale:




  • Offene Wohnküche, voll ausgestattet



  • Parkettboden in den Wohnräumen



  • Modernes Badezimmer mit Badewanne und Fenster



  • Zeitlose, moderne Fliesen im Sanitärbereich



  • Personenaufzug im Haus




Lage & Infrastruktur



Die Lage zählt zu den klaren Stärken: Wien Hauptbahnhof ist fußläufig erreichbar und sorgt für eine ausgezeichnete Anbindung innerhalb Wiens sowie im nationalen und internationalen Fernverkehr.



Öffentliche Anbindung (nahe Umgebung):




  • U-Bahn, Straßenbahn, Bus in unmittelbarer Nähe



  • Hauptbahnhof in wenigen Gehminuten




Infrastruktur:




  • Nahversorgung (Supermärkte, Bäckereien etc.) fußläufig



  • Schulen, Kindergärten, Ärzte im Umfeld



  • Freizeit & Einkauf: Einkaufszentrum und Kino in der Nähe




Zusammenfassung



Diese Wohnung bietet eine seltene Kombination aus großer Wohnfläche, 5 Zimmern, Top-Anbindung und stabilem Mietertrag. Durch die Befristung bis Sommer 2027 besteht zusätzlich eine klare Perspektive für Neuvermietung, Anpassung oder Eigennutzung im Anschluss.



Besichtigungen nach Terminvereinbarung. Weitere Unterlagen und Details zur Vermietung stellen wir auf Anfrage gerne zur Verfügung.

Noch nichts gefunden? Wir informieren Sie über geeignete Immobilienangebote noch vor allen anderen.
Legen Sie jetzt Ihren individuellen Suchagenten unter folgendem Link an. Wir schicken Ihnen passende Immobilien exklusiv vorab zu.

Suchagent anlegen - https://vires-immobilien.service.immo/registrieren/de



Sie haben eine Immobilie? Jetzt kostenlos und in 3 Minuten zu einer Immobilienbewertung gelangen


Wir weisen darauf hin, dass zwischen dem Vermittler und dem zu vermittelnden Dritten ein familiäres oder wirtschaftliches Naheverhältnis besteht.


Der Vermittler ist als Doppelmakler tätig.

Sie besitzen selbst eine Immobilie und überlegen diese zu verkaufen? Dann bewerten Sie diese bei uns kostenlos innerhalb von 3 Minuten. Adresse und Eckpunkte eingeben und direkt eine Preisindikation erhalten. Jetzt kostenlos und in 3 Minuten online bewerten!

Infrastruktur / Entfernungen

Gesundheit
Arzt <250m
Apotheke <250m
Klinik <250m
Krankenhaus <1.250m

Kinder & Schulen
Schule <250m
Kindergarten <250m
Universität <1.250m
Höhere Schule <1.750m

Nahversorgung
Supermarkt <250m
Bäckerei <500m
Einkaufszentrum <750m

Sonstige
Geldautomat <250m
Bank <500m
Post <500m
Polizei <250m

Verkehr
Bus <250m
U-Bahn <500m
Straßenbahn <500m
Bahnhof <500m
Autobahnanschluss <2.000m

Angaben Entfernung Luftlinie / Quelle: OpenStreetMap

Eckdaten Objektnr. 7080/141

Art: Wohnung
Land: Österreich
Baujahr: 1968
Zustand: Neuwertig
Möbliert: Voll
Alter: Neubau
Kaufpreis: 399.000,00
Provision: 3% des Kaufpreises zzgl. 20% USt.
Betriebskosten: 212,59 €
Heizkosten: 152,13 €
MwSt Gesamt: 54,70 €
Wohnfläche: 96,00 m²
Nutzfläche: 96,00 m²
Zimmer: 5
Bäder: 1
WC: 1
Keller: 4,00 m²
Heizwärmebedarf:  D  92,80 kWh/m²a
fGEE:  D  2,09
Immobilie merken Exposé

Ausstattung

Fliesen, Parkett, Elektro, Zentralheizung, Wohnküche / offene Küche, Personenaufzug, Bad mit Fenster, Badewanne, Dusche, Wasch/Trockenraum


Immobilie anfragen


Ihre persönliche Beratung

Vires Real Solutions GmbH

Vires Real Solutions

Vires Real Solutions GmbH

T +43 12265533