LORYSTRASSE, TERRASSENHIT, 61 m2 Neubau mit 80 m2 Terrasse, Wohnküche, 1 Zimmer, Duschbad, Parketten, 1. Liftstock, U3-Nähe

Wohnung - Etage, 1110 Wien , Lorystraße


LORYSTRASSE IN DER NÄHE DER U3-STATIONEN ENKPLATZ UND SIMMERING mit bester Infrastruktur des 11. Bezirks (Simmeringer Hauptstraße, Braunhuberpark, Braunhubergasse, Römerstahlgasse, Ehamgasse, Herbortgasse) sowie optimalen Verkehrsverbindungen wie die U3-Stationen Enkplatz und Simmering und die Linien 11, 71, D, 15A, 69A, 72A + 73A. Der Bahnhof Wien-Simmering mit der Verbindung Wien-Bratislava, R 81, REX 8, REX 81 + S80 ist ebenso in unmittelbarer Nähe.

Beschreibung der Immobilie

LORYSTRASSE, TERRASSENHIT, 61 m2 Neubau mit 80 m2 Terrasse, Wohnküche, 1 Zimmer, Duschbad, Parketten, 1. Liftstock, U3-Nähe

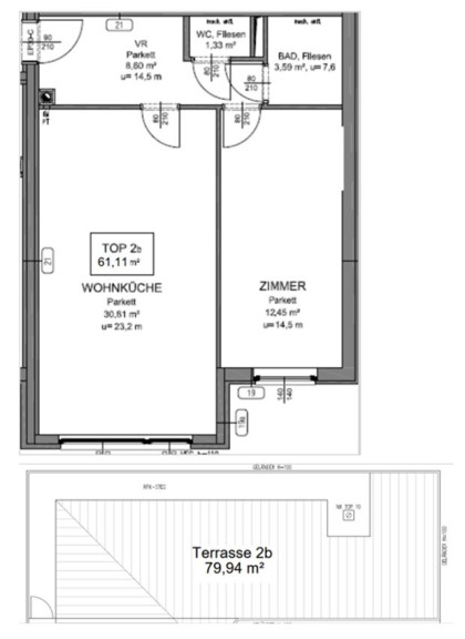
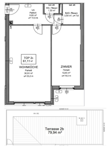
IN DER LORYSTRASSE GELANGT DIESE 61,11 m2 NEUBAUWOHNUNG MIT 79,94 m2 TERRASSE ZUM VERKAUF!


Baujahr: 2015


Vorzimmer, Wohn-Esszimmer mit Kochnische, ca. 79,94 m2 Terrasse, Schlafzimmer, Badezimmer, separates WC und Kellerabteil



Ausstattung:


+ ca. 79,94 m2 Terrasse im 3. OG

+ Küche mit Herd, Dunstabzug, Spüle, Geschirrspüler, Kühlschrank und Kästen

+ Badezimmer mit Dusche, Waschtisch, Waschmaschinenanschluss und Sprossenheizkörper

+ separates WC mit Waschgelegenheit

+ Parketten, Fliesen in den Nassräumen

+ Telekabelfernsehanschluss, Gegensprechanlage

+ Gaszentralheizung

+ Kellerabteil

+ möglicher Tiefgaragenplatz (optional)

+ HWB 26,02 kWh/m2a



Lage



LORYSTRASSE IN DER NÄHE DER U3-STATIONEN ENKPLATZ UND SIMMERING mit bester Infrastruktur des 11. Bezirks (Simmeringer Hauptstraße, Braunhuberpark, Braunhubergasse, Römerstahlgasse, Ehamgasse, Herbortgasse) sowie optimalen Verkehrsverbindungen wie die U3-Stationen Enkplatz und Simmering und die Linien 11, 71, D, 15A, 69A, 72A + 73A. Der Bahnhof Wien-Simmering mit der Verbindung Wien-Bratislava, R 81, REX 8, REX 81 + S80 ist ebenso in unmittelbarer Nähe.



Sonstiges



Kaufpreis - Wohnung: € 279.000,00 lastenfrei



Kaufpreis - Stellplatz: € 25.000,00 lastenfrei (Kauf nicht verbindlich!)



Derzeitiger Mietertrag für den Garagenstellplatz: Nettomiete € 87,50 per Monat



Betriebskosten - Wohnung:
€ 268,36 inklusive Aufzug und 10 % MwSt. per Monat



Betriebskosten - Garage
€ 24,02 inklusive MwSt. per Monat



Die Rücklagen belaufen sich derzeit auf ca. € 0,37 per m2 und werden erst seit/ab 03/2024 vorgeschrieben, daher noch keine nennenswerte Gesamtrücklage.


Strom, Heizung, mögliche TV/Internet-Anschlüsse werden gesondert zur Vorschreibung gebracht!



Vermittlungsprovision: 3 % der Barkaufsumme zzgl. 20 % MwSt.,



Die Kosten der Vertragserrichtung und grundbücherlichen Durchführung sowie Barauslagen und Stempelgebühren trägt der Käufer





Aufgrund des neuen Fernabsatz- und Auswärtsgeschäfte-Gesetzes zur Umsetzung der EU-Verbraucherrechte-RL, ersuchen wir Sie um Ihr Verständnis, dass wir Ihnen die gewünschten Objekt-Unterlagen erst nach Ihrer Bestätigung, dass Sie unser vorzeitiges Tätigwerden wünschen und über Ihre Rücktrittsrechte aufgeklärt wurden, per Mail zusenden können. Bevor Sie die Unterlagen übermittelt bekommen, erhalten Sie eine gesonderte Mail mit dem notwendigen Hinweis. Obige Angaben basieren auf Informationen des Eigentümers. Der guten Ordnung halber möchten wir festhalten, dass im Falle eines Abschlusses mit Ihnen oder einem von Ihnen namhaft gemachten Dritten unser Honorar (lt. Honorarverordnung für Immobilienmakler, BGBI. 262 und 297/1996) 3 % des Kaufpreises zzgl. der gesetzlichen MwSt. beträgt. Es gelten unsere allgemeinen Geschäftsbedingungen. Irrtum vorbehalten. Hinweis gemäß Energieausweisvorlagegesetz: Ein Energieausweis wurde vom Eigentümer bzw. Verkäufer, nach unserer Aufklärung über die ab 1.12.2012 geltende generelle Vorlagepflicht bereits vorgelegt. Wir übernehmen keinerlei Gewähr oder Haftung für die tatsächliche Energieeffizienz der angebotenen Immobilie.

Infrastruktur / Entfernungen

Gesundheit
Arzt <250m
Apotheke <500m
Klinik <1.250m
Krankenhaus <3.250m

Kinder & Schulen
Schule <250m
Kindergarten <500m
Universität <2.000m
Höhere Schule <2.500m

Nahversorgung
Supermarkt <500m
Bäckerei <500m
Einkaufszentrum <500m

Sonstige
Geldautomat <500m
Bank <500m
Post <500m
Polizei <750m

Verkehr
Bus <250m
U-Bahn <500m
Straßenbahn <500m
Bahnhof <500m
Autobahnanschluss <1.500m

Angaben Entfernung Luftlinie / Quelle: OpenStreetMap

Eckdaten Objektnr. 2384

Art: Wohnung - Etage
Land: Österreich
Baujahr: 2015
Zustand: Gepflegt
Alter: Neubau
Kaufpreis: 279.000,00
Provision: 3% des Kaufpreises zzgl. 20% USt.
Betriebskosten: 217,36 €
MwSt Gesamt: 24,40 €
Nutzfläche: 61,11 m²
Zimmer: 2
Bäder: 1
WC: 1
Terrassen: 1
Keller: 1,53 m²
Heizwärmebedarf:  B  26,02 kWh/m²a
fGEE:  B  1,01
Immobilie merken Exposé

Ausstattung

Parkett, Fliesen, Gas, Zentralheizung, Einbauküche, Wohnküche / offene Küche, Personenaufzug, Dusche, Kabel/Satelliten-TV


Immobilie anfragen


Ihre persönliche Beratung

ROS REALITÄTEN OG

Alexander Ros

ROS REALITÄTEN VERMITTLUNG OG - TESTACCOUNT

T +43 1 526 70 60 - 12

H +43 664 466 52 02

F +43 1 526 70 60 33