Repräsentative Büroetage am Schubertring 1010 Wien

Büro / Praxis , 1010 Wien


- Schubertring - Stadtpark (U4) - Straßenbahnlinien 1, 2, 71 - Schwarzenbergplatz

Beschreibung der Immobilie

Repräsentative Büroetage am Schubertring 1010 Wien

Sehr geehrte Damen und Herren,



in einem repräsentativen Gebäude am Schubertring gelangt eine großzügige Bürofläche im 5. Obergeschoss zur Vermietung, die sich über die gesamte Etage erstreckt. Die zentrale Lage im Herzen des 1. Bezirks sowie die ausgezeichnete Erreichbarkeit machen diesen Standort besonders attraktiv für Unternehmen, die Wert auf eine renommierte Geschäftsadresse legen.



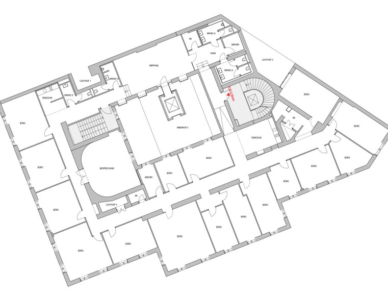
Die rund 690 m² große Fläche überzeugt durch eine durchdachte Raumstruktur mit insgesamt 16 Büroräumen und bietet damit flexible Nutzungsmöglichkeiten – von klassischen Einzelbüros bis hin zu teamorientierten Arbeitsbereichen. Ein Empfangsbereich, ein Serverraum, zwei Teeküchen, drei Abstellräume sowie mehrere getrennte Sanitäranlagen ergänzen das Angebot und sorgen für einen reibungslosen Arbeitsalltag.



Für ein angenehmes Raumklima sorgt eine bereits installierte Kühlung



Kostenüberblick:




  • Nettomiete: EUR 15.197,82



  • Bruttomiete (inkl. Ust): EUR 20.948,30 €



  • Betriebskosten: EUR 3,27 netto/m²



  • Heizkostenakonto (Fernwärme): EUR 2,35 netto pro m²

     




Kontaktieren Sie uns jederzeit für nähere Informationen oder einen Besichtigungstermin (gerne auch spät abends oder am Wochenende).



Ich freue mich auf Ihre Kontaktaufnahme!


Wir weisen darauf hin, dass zwischen dem Vermittler und dem zu vermittelnden Dritten ein familiäres oder wirtschaftliches Naheverhältnis besteht.


Der Vermittler ist als Doppelmakler tätig.

Infrastruktur / Entfernungen

Gesundheit
Arzt <500m
Apotheke <500m
Klinik <500m
Krankenhaus <1.000m

Kinder & Schulen
Schule <500m
Kindergarten <500m
Universität <500m
Höhere Schule <500m

Nahversorgung
Supermarkt <500m
Bäckerei <500m
Einkaufszentrum <500m

Sonstige
Geldautomat <500m
Bank <500m
Post <500m
Polizei <500m

Verkehr
Bus <500m
U-Bahn <500m
Straßenbahn <500m
Bahnhof <500m
Autobahnanschluss <3.000m

Angaben Entfernung Luftlinie / Quelle: OpenStreetMap

Eckdaten Objektnr. 271545163

Art: Büro / Praxis
Land: Österreich
Baujahr: 1863
Kaltmiete (netto): 15.197,82 €
Kaltmiete: 17.456,92 €
Betriebskosten: 2.259,10 €
MwSt Gesamt: 3.491,38 €
Nutzfläche: 690,81 m²
Zimmer: 16
Heizwärmebedarf:  C  92,20 kWh/m²a
fGEE:  C  1,39
Immobilie merken Exposé

Ausstattung

Fernwärme, Personenaufzug, Teeküche


Immobilie anfragen


Ihre persönliche Beratung

Immobiliaris GmbH

Lea Leichtfried

Immobiliaris GmbH

T +43 664 1607111