Schöne Villa im Wohnpark - Mietkauf möglich

Haus - Villa, 2483 Ebreichsdorf


Traumlage zwischen Wien und Natur! Diese architektonisch anspruchsvolle Villa vereint die Ruhe eines exklusiven Wohngebiets mit der perfekten Anbindung an die Stadt. Ebreichsdorf besticht durch seine Nähe zu Wien (A2 & S-Bahn in wenigen Minuten erreichbar), während der Badeteich, Spazierwege und die ländliche Idylle für Erholung sorgen. Schulen, Einkaufsmöglichkeiten und Freizeitangebote sind bequem zu Fuß oder mit dem Auto erreichbar – ideal für Familien, die das Beste aus beiden Welten suchen.

Beschreibung der Immobilie

Schöne Villa im Wohnpark - Mietkauf möglich

Ein Haus, das beeindruckt – vom ersten Blick bis ins Detail:



Betreten Sie durch den eleganten Eingangsbereich ein Zuhause, das modernste Architektur mit behaglicher Atmosphäre verbindet. Der loftartige Wohn-Küchenbereich im Erdgeschoss fasziniert mit hohen Decken, großzügigen Glasfronten und einem fließenden Grundriss, der gesellige Abende zum Erlebnis macht. Die hochwertige Einbauküche mit Premium-Geräten lädt zum Kochen und Genießen ein, so dass an Abenden für gemütliche Stimmung gesorgt ist.





Raum zum Leben und Träumen:



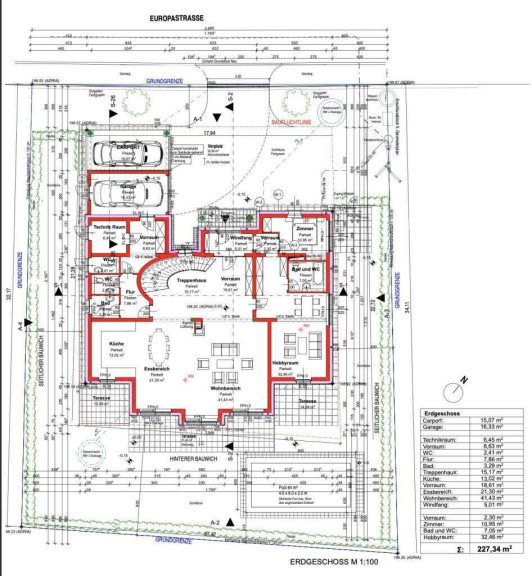
Über zwei lichtdurchflutete Etagen verteilen sich 7 Zimmer, ob Arbeitszimmer oder Schlafräume bleibt Ihre Entscheidung. Es befinden sich jeweils 2 hochwertige Badezimmer auf jeder Etage und die Dachterrasse krönt das Haus – hier genießen Sie bei einem Glas Wein den Blick über die abendliche Landschaft.





Ihr privates Resort im Garten:



Der Swimmingpool glitzert im Sonnenlicht, umgeben von einer gepflegten Grünfläche und mehreren Terrassen, die Raum für Spiel, Entspannung oder sommerliche Grillabende bieten. Der Carport schützt Ihr Fahrzeug, während die hochwertige Bauqualität des Neubaus für Sicherheit und Energieeffizienz steht.





Ein Zuhause, das Maßstäbe setzt:



Dieses Haus ist mehr als eine Immobilie – es ist eine Lebensart. Ob Sie an Familienfeste im Garten denken, stille Lesestunden in der Gallerie oder den Sonnenuntergang von der Dachterrasse aus: Hier finden Sie Raum für alles, was Ihnen wichtig ist.







Zusammenfassung:



- 370 m² Wohnfläche (880 m² Grundstück) | 7 Zimmer | Neubau & Erstbezug
- Offenes Loft-Design: Großzügiger Wohn-Küchenbereich im Erdgeschoß mit modernstem Anspruch

- 2 Etagen + Dachterrasse: Raum für Privatsphäre & Entspannung mit Panoramablick

- Eigener Swimmingpool im gepflegten Garten – Sommerfeeling garantiert

- Hochwertige Ausstattung – alles in makellosem Zustand



Dieses Haus vereint zeitgemäßes Design mit höchstem Komfort – ein seltenes Angebot für anspruchsvolle Käufer!







Vereinbaren Sie noch heute einen Besichtigungstermin und erleben Sie, wie sich Luxus und Behaglichkeit verbinden lassen.


Hinweis gemäß Energieausweisvorlagegesetz: Ein Energieausweis wurde vom Eigentümer bzw. Verkäufer, nach unserer Aufklärung über die generell geltende Vorlagepflicht, sowie Aufforderung zu seiner Erstellung noch nicht vorgelegt. Daher gilt zumindest eine dem Alter und der Art des Gebäudes entsprechende Gesamtenergieeffizienz als vereinbart. Wir übernehmen keinerlei Gewähr oder Haftung für die tatsächliche Energieeffizienz der angebotenen Immobilie.


Wir weisen darauf hin, dass zwischen dem Vermittler und dem zu vermittelnden Dritten ein familiäres oder wirtschaftliches Naheverhältnis besteht.

Infrastruktur / Entfernungen

Gesundheit
Arzt <1.500m
Apotheke <1.500m
Klinik <9.000m

Kinder & Schulen
Kindergarten <1.000m
Schule <2.000m

Nahversorgung
Supermarkt <1.000m
Bäckerei <1.500m
Einkaufszentrum <9.000m

Sonstige
Bank <1.500m
Geldautomat <1.500m
Post <1.500m
Polizei <2.000m

Verkehr
Bus <500m
Bahnhof <2.000m
Autobahnanschluss <2.500m
Straßenbahn <9.500m

Angaben Entfernung Luftlinie / Quelle: OpenStreetMap

Eckdaten Objektnr. 1790/101

Art: Haus - Villa
Land: Österreich
Zustand: Erstbezug
Alter: Neubau
Kaufpreis: 1.790.000,00
Provision: 3% des Kaufpreises zzgl. 20% USt.
Nutzfläche: 370,00 m²
Grundstücksfl.: 880,00 m²
Zimmer: 7
Bäder: 4
WC: 4
Terrassen: 4
Stellplätze: 2
Immobilie merken Exposé

Ausstattung

Parkett, Fliesen, Fußbodenheizung, Wohnküche / offene Küche, Bad mit Fenster, Badewanne, Dusche, Carport, Garage, Swimmingpool


Immobilie anfragen


Ihre persönliche Beratung

ImmoEngel GmbH

Angela Uljanova

ImmoEngel GmbH

T +43 69919203313