ALL-INCLUSIVE - EXKLUSIVES PRIVATE OFFICE DIREKT AM GRABEN

Büro / Praxis , 1010 Wien


U-Bahn-Stationen Stephansplatz (U1, U3) und Herrengasse (U3) in unmittelbarer Nähe Straßenbahn- und Buslinien in wenigen Gehminuten erreichbar Parkgaragen in der Umgebung für Mitarbeiter und Gäste

Beschreibung der Immobilie

ALL-INCLUSIVE - EXKLUSIVES PRIVATE OFFICE DIREKT AM GRABEN

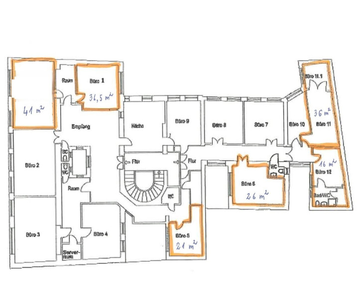
Zur Vermietung steht ein vollmöbliertes und gut geschnittenes 21 m² großes Büro mitten in der Innenstadt - ruhig gelegenes Einzelbüro mit hoher Privatsphäre, ideal für konzentriertes Arbeiten. Die Fläche eignet sich ideal für Freiberufler, kleine Teams oder als repräsentativer Standort für Kundentermine. Durch die zentrale Lage profitieren Sie von einer hervorragenden Erreichbarkeit, umliegender Infrastruktur und einem professionellen Arbeitsumfeld.



Das Büro bietet ausreichend Platz für Beratungs- oder Klientengespräche. Die moderne, gepflegte Umgebung trägt zu einem professionellen Auftreten gegenüber Kund*innen bei.



Eckdaten im Überblick:



Nutzfläche: ca. 21 m²

Zimmer: 1

Lift: ja

Klimaanlage: ja 



Ausstattung & Leistungen – All Inclusive:


Der Mietpreis umfasst sämtliche Nebenkosten – von Energiekosten und Versicherung bis hin zu WLAN und regelmäßiger Reinigung. So profitieren Sie von einer transparenten Kostenstruktur und einem sofort einsatzbereiten, gepflegten Arbeitsumfeld.

In der monatlichen Miete sind folgende Leistungen bereits enthalten: 




  • Nutzung der Geschäftsadresse 



  • professioneller Empfangsservice



  • Reinigung und Betriebskosten



  • Mitbenutzung der Gemeinschaftsflächen





  1. Sanitäranlagen



  2. Eingangsbereich 



  3. Küche (Kaffee und Tee zur freien Entnahme)





  • Firmenschild im Eingangsbereich



  • Telefonservice für professionelle Erreichbarkeit




Zusätzlich stehen Ihnen im Haus ein servicierter Empfang für Post- und Gästebetreuung sowie zwei flexibel nutzbare Konferenzräume zur Verfügung:




  • Elegance Room für Besprechungen im kleineren Rahmen (bis zu 8 Personen)




Mit 24/7-Zugang, erstklassiger Infrastruktur und einer repräsentativen Geschäftsadresse bietet diese Büro-Suite eine hervorragende Möglichkeit, Ihr Unternehmen im Herzen Wiens stilvoll zu präsentieren.




  • Elegance Room für Besprechungen im kleineren Rahmen (bis zu 8 Personen)



  • Prestige Conference Room für Besprechungen (bis zu 15 Personen)




Kosten:



Monatliche Kosten all-inclusive : € 1.400,00,--

Kaution: 3 BMM



Kontakt: 



Für Fragen und Besichtigungen kontaktieren Sie bitte Herrn Büer unter 0699 194 737 30 oder unter boris.bueer@wisionhome.at

Weiter Objekte finden Sie unter: www.wisionhome.at

Infrastruktur / Entfernungen

Gesundheit
Arzt <500m
Apotheke <500m
Klinik <1.000m
Krankenhaus <1.500m

Kinder & Schulen
Schule <500m
Kindergarten <1.000m
Universität <500m
Höhere Schule <1.000m

Nahversorgung
Supermarkt <500m
Bäckerei <500m
Einkaufszentrum <1.000m

Sonstige
Geldautomat <500m
Bank <500m
Post <500m
Polizei <500m

Verkehr
Bus <500m
U-Bahn <500m
Straßenbahn <1.000m
Bahnhof <500m
Autobahnanschluss <3.500m

Angaben Entfernung Luftlinie / Quelle: OpenStreetMap

Eckdaten Objektnr. 7320/489

Art: Büro / Praxis
Land: Österreich
Zustand: Modernisiert
Möbliert: Voll
Alter: Altbau
Kaltmiete (netto): 1.166,67 €
Kaltmiete: 1.166,67 €
Miete / m²: 55,56 €
Provision: 3 Bruttomonatsmieten zzgl. 20% USt.
MwSt Gesamt: 233,33 €
Nutzfläche: 21,00 m²
Zimmer: 1
Heizwärmebedarf:  C  75,30 kWh/m²a
fGEE:  C  1,05
Immobilie merken Exposé

Ausstattung

Parkett, Personenaufzug


Immobilie anfragen


Ihre persönliche Beratung

WISION HOME GmbH

Boris Bueer

WISION HOME GmbH

T +43 69919473730

H +43 69919473730