Schöne 2-Zimmer-Wohnung mit großer Terrasse in Geidorf - zu vermieten!

Wohnung , 8010 Graz , Hugo-Schuchardt-Straße 6


WIFI

Beschreibung der Immobilie

Schöne 2-Zimmer-Wohnung mit großer Terrasse in Geidorf - zu vermieten!

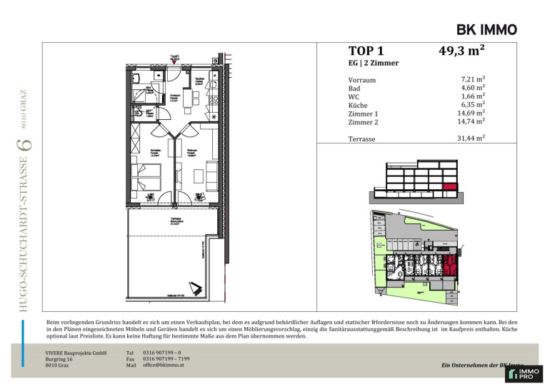
Zur Vermietung gelangt eine tolle Neubauwohnung in Grünlage mit großer Terrasse (32 m²) mit einer Nutzfläche von 49,30 m².





Aufteilung: Vorraum, Schlafzimmer, Wohnzimmer, beide mit Zugang zur Terrasse, Küche (voll ausgestattet) sowie einem Badezimmer und einem separaten WC.



Die Wohnung wird auf 4 Jahre befristet vermietet. Es wird ein Kündigungsverzicht von 1 Jahr und einer darauffolgenden 3-monatigen Kündigungsfrist vereinbart.



Der Wohnung ist ein Kellerabteil zugeteilt. 



Es fällt eine Kaution von € 2.500,-- an.



Der Bezug ist ab sofort möglich!



Freuen Sie sich auf Ihren Besichtigungstermin!



Für weitere Fragen oder zur Vereinbarung eines Besichtigungstermins, schreiben Sie uns gerne eine Anfrage!


Wir weisen darauf hin, dass zwischen dem Vermittler und dem zu vermittelnden Dritten ein familiäres oder wirtschaftliches Naheverhältnis besteht.


Der Immobilienmakler erklärt, dass er – entgegen dem in der Immobilienwirtschaft üblichen Geschäftsgebrauch des Doppelmaklers – einseitig nur für den Vermieter tätig ist.

Infrastruktur / Entfernungen

Gesundheit
Arzt <250m
Apotheke <625m
Klinik <1.150m
Krankenhaus <1.150m

Kinder & Schulen
Schule <300m
Kindergarten <325m
Universität <700m
Höhere Schule <800m

Nahversorgung
Supermarkt <200m
Bäckerei <250m
Einkaufszentrum <2.150m

Sonstige
Geldautomat <725m
Bank <725m
Post <525m
Polizei <1.550m

Verkehr
Bus <250m
Straßenbahn <250m
Bahnhof <1.675m
Autobahnanschluss <5.050m

Angaben Entfernung Luftlinie / Quelle: OpenStreetMap

Eckdaten Objektnr. 7278/42781

Art: Wohnung
Land: Österreich
Zustand: Neuwertig
Alter: Neubau
Gesamtmiete: 907,64
Kaltmiete (netto): 549,32 €
Kaltmiete: 733,44 €
Provision: Gemäß Erstauftraggeberprinzip bezahlt der Abgeber die Provision.
Betriebskosten: 126,67 €
Heizkosten: 75,92 €
MwSt Gesamt: 98,28 €
Wohnfläche: 49,30 m²
Nutzfläche: 49,30 m²
Zimmer: 2
Bäder: 1
WC: 1
Terrassen: 1
Heizwärmebedarf:  B  39,00 kWh/m²a
fGEE:  B  0,90
Immobilie merken Exposé

Ausstattung

Personenaufzug


Immobilie anfragen


Ihre persönliche Beratung

ImmoPro Immobilien GmbH

Immobilienservice Graz

STIWOG Immobilien GmbH

T +43 316 377777 2019

H +4366488831457