moderne Wohnung mit Garten - Küche inklusive - Taiskirchen - Top 1

Wohnung - Erdgeschoß, 4753 Taiskirchen im Innkreis , Hofmarkt 10


Geprägt von Hügel- und Waldlandschaft liegt die gesunde Gemeinde Taiskirchen im Herzen des oberösterreichischen Innviertels. Hier erfreuen sich 2.397 Einwohner*innen an der wunderbaren Waldlage, dem Taiskirchner Stausee und einem angrenzenden Weitwanderweg. Für Genuss und Kultur sorgt das landwirtschaftliche und touristische Umfeld Taiskirchens. Auch die Bezirkshauptstadt Ried im Innkreis ist nur 10 km entfernt und lockt für gemütliche Ausflüge und Einkäufe. Taiskirchen im Innkreis liegt ruhig, mitten in der Natur und doch erreicht man durch die direkte Anbindung an die Unterinnviertler Landesstraße wichtige Orte und Städte in der Umgebung im Nu. Die Autobahnauffahrt A8 Richtung Wels oder Passau ist nur 5 Fahrminuten entfernt. Wichtige Wege in Städte wie Wels, Linz, Schärding, Passau oder München sind somit wunderbar erschlossen.

Beschreibung der Immobilie

moderne Wohnung mit Garten - Küche inklusive - Taiskirchen - Top 1

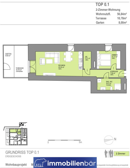
Höhepunkte Top 1



  • 56,84 m² Wohnfläche
  • 8 m² Gartenfläche
  • 10,78 m² Terrasse
  • 1 Aussenstellplatz
  • Lichtdurchflutete Wohnung
  • Inkl. modernem Bad und WC
  • Zentrale Lage
  • Barrierefrei durch Lift
  • Ruhige Wohnung
  • Helle und freundliche Zimmer
  • Kellerabteil
  • Die Küche wird mitgemietet


Mietzins gesamt inkl. Parkplatz



Mietzins



Miete Wohnung EUR 462,03

Miete Stellplatz EUR 36,22

Betriebskosten EUR 130,73

Heizkosten EUR 53,43

Ust. 10% EUR 59,27

Ust. 20% EUR 17,93

GESAMT EUR 759,61



Kaution EUR 2.278,83


Der Immobilienmakler erklärt, dass er – entgegen dem in der Immobilienwirtschaft üblichen Geschäftsgebrauch des Doppelmaklers – einseitig nur für den Vermieter tätig ist.

Infrastruktur / Entfernungen

Gesundheit
Arzt <550m
Apotheke <5.925m
Klinik <9.225m
Krankenhaus <8.375m

Kinder & Schulen
Schule <200m
Kindergarten <275m
Höhere Schule <9.625m

Nahversorgung
Supermarkt <550m
Bäckerei <3.425m
Einkaufszentrum <9.025m

Sonstige
Bank <75m
Geldautomat <125m
Post <250m
Polizei <5.300m

Verkehr
Bus <100m
Bahnhof <3.600m
Autobahnanschluss <3.950m

Angaben Entfernung Luftlinie / Quelle: OpenStreetMap

Eckdaten Objektnr. 5753/516647970

Art: Wohnung - Erdgeschoß
Land: Österreich
Baujahr: 2023
Gesamtmiete: 759,61
Kaltmiete (netto): 462,03 €
Kaltmiete: 628,98 €
Provision: Gemäß Erstauftraggeberprinzip bezahlt der Abgeber die Provision.
Betriebskosten: 130,73 €
Heizkosten: 53,43 €
MwSt Gesamt: 77,20 €
Wohnfläche: 56,84 m²
Zimmer: 2
Bäder: 1
WC: 1
Terrassen: 1
Stellplätze: 1
Garten: 8,00 m²
Heizwärmebedarf: 33,00 kWh/m²a
fGEE: 0,70
Immobilie merken Exposé

Ausstattung

Fliesen, Parkettboden, Fußbodenheizung, Einbauküche, Personenaufzug


Immobilie anfragen


Ihre persönliche Beratung

Konzeptmühle GmbH - Immobilien Bär

Immobilien Bär - Stefan Artmayr

Konzeptmühle GmbH - Immobilien Bär

T +43 664 9253493

H stefan.artmayr@immobaer.at