2 Zimmer Wohnung im Zentrum von Schwechat Nähe Rathauspark

Wohnung , 2320 Schwechat


Die Wohnung befindet sich in einer Top-Lage von Schwechat, unmittelbar beim Hauptplatz in ruhiger Lage mit Bick auf den Rathauspark. Alle wichtigen Einrichtungen des täglichen Bedarfs sowie Supermärkte, Geschäfte, Ärzte, Apotheken und Restaurants sind in wenigen Minuten zu Fuß erreichbar. Für Ihre Freizeitgestaltung bietet die Umgebung zahlreiche Möglichkeiten: Frei- und Hallenbad, Eislaufplatz, Parks mit großen Grünflächen, usw. Auch die Verkehrsanbindung ist hervorragend: Der Bahnhof Schwechat ist nur ca. 10 Gehminuten entfernt, den Flughafen Wien-Schwechat erreichen Sie mit dem Auto ebenfalls in ca. 10 Minuten. S1 und A4 sorgen für eine perfekte Anbindung in alle Richtungen.

Beschreibung der Immobilie

2 Zimmer Wohnung im Zentrum von Schwechat Nähe Rathauspark

Zwischen Stadtleben & Parkruhe – Ihr neues Zuhause mitten in Schwechat | 2 Zimmerwohnung mit Terrasse



Die Wohnung ist – hell, ruhig und mitten in Schwechat



Es gibt Orte, an denen man sich sofort wohlfühlt.

Diese freundliche Eigentumswohnung ist so ein Ort – hell, ruhig und mitten in Schwechat, nur wenige Schritte vom Rathauspark entfernt. Sie verbindet das Gefühl des modernen Wohnens - Arbeit und Entspannung.





Raum zum Ankommen



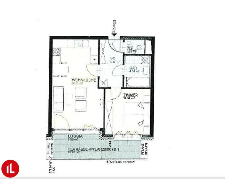
Auf rund 51, m² Wohnfläche öffnet sich ein durchdachter Grundriss mit klarer Struktur:

Ein offenes Wohnkonzept mit großer Wohnküche als Mittelpunkt des Alltags  – das Schlafzimmerals Rückzugsort.



Die 10 m² große Terrasse erweitert den Wohnraum ins Freie. Hier genießt man Sonne, Ruhe und den Blick ins Grüne – ob beim Frühstück, beim Lesen oder beim Glas Wein am Abend.



Zwei Badezimmer mit Wanne  sorgt für Komfort im Alltag. Ein praktischer Abstellraum und ein Kellerabteil bieten zusätzlichen Stauraum.



Für Ihr Auto steht im Haus 1 großer Garagenplatz im Eigentum für € 20.000,00 zur Verfügung 




  • Videobesichtigung



  • Ausstattung & Fakten



  • Wohnfläche: ca. 51 m²



  • Terrasse: ca. 10 m² mit Parkblick



  • 2 Zimmer – offenes Wohnkonzept, barrierefrei



  • Bad (Wanne )



  • Abstellraum, Kellerabteil



  •  Garagenplatz im Eigentum



  • Sauna, Kinderspielplatz und Waschraum im Haus 



  • Betriebskosten: € 302,65 incl. Heizung und Warmwasser Monat



  • Energieeffizienz: HWB 23,25 kWh/m²a | fGEE 0,81



  • IHRE INVESTITION: EUR 177 000,00



  • Garagenplatz EUR 20.000,00







LEINER KUNDEN HABEN'S BESSER! Ein GRATIS Übersiedlungsauto steht für Ihren Umzug bereit.




KONTAKTIEREN SIE UNS |  Silvia Bayr - 0664 180 11 11



Immobilientreuhänder | Immobilienmakler, Immobilienverwalter & Bauträger



Alleinbeauftragte Immobilienkanzlei



Unser Erfolgshonorar beträgt 3% zuzüglich 20% Umsatzsteuer



Ihre Anfrage ist uns wichtig und wertvoll!



In Entsprechung des FAGG (Fern- und Auswärtsgeschäfte-Gesetz) und des VRUG (Verbraucherrechte-Richtlinie-Umsetzungsgesetz) ist es uns nur möglich, Termine nach Erhalt einer schriftlichen Anfrage mit vollständigen Kontaktangaben (Name, Adresse, Telefon, Email) zu vereinbaren. Dies gilt auch für die Weitergabe relevanter Informationen des Objektes. Wir danken für Ihr Verständnis und freuen uns, Sie bald als Kunde begrüßen zu dürfen.

Infrastruktur / Entfernungen

Gesundheit
Arzt <500m
Apotheke <500m
Klinik <500m
Krankenhaus <7.000m

Kinder & Schulen
Schule <500m
Kindergarten <500m
Universität <7.500m
Höhere Schule <8.000m

Nahversorgung
Supermarkt <500m
Bäckerei <500m
Einkaufszentrum <500m

Sonstige
Geldautomat <500m
Bank <500m
Post <500m
Polizei <500m

Verkehr
Bus <500m
U-Bahn <5.500m
Straßenbahn <1.500m
Bahnhof <1.000m
Autobahnanschluss <1.500m
Flughafen <7.500m

Angaben Entfernung Luftlinie / Quelle: OpenStreetMap

Eckdaten Objektnr. 21922

Art: Wohnung
Land: Österreich
Kaufpreis: 177.000,00
Betriebskosten: 302,65 €
Wohnfläche: 51,03 m²
Terrassen: 1
Keller: 3,41 m²
Immobilie merken Exposé

Ausstattung

Parkett, Fliesen, Fußbodenheizung, Einbauküche, Personenaufzug, Südbalkon, Badewanne, Tiefgarage, Sauna, Wasch/Trockenraum


Immobilie anfragen


Ihre persönliche Beratung

Immobilienwelt Leiner

Silvia Bayr

Immobilienwelt Leiner

H +43 664 180 11 11