SÜDEN SONNE UND TERRASSE

Wohnung , 1120 Wien , Darnautgasse


beste Anbindung über Verkehrsknoten Philadephilabrücke beste Infrastruktur durch die Einkaufsstraße Meidlinger Hauptstraße und die Arkaden

Beschreibung der Immobilie

SÜDEN SONNE UND TERRASSE

Es wird ein langfristiges Mietverhältnis gewünscht.


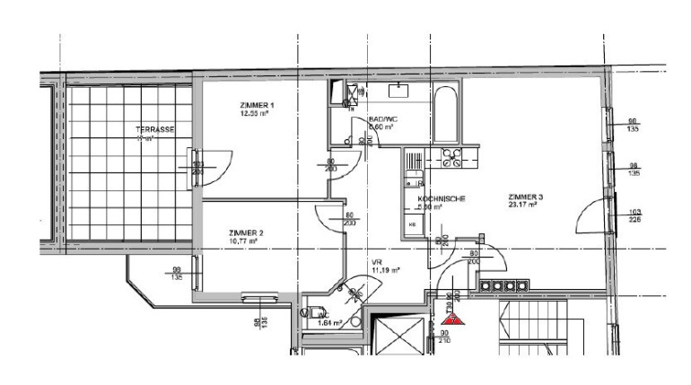
Moderner Grundriss:

- ein Wohnzimmer, großzügig - mit französischem Fenster ins Grüne und einer Ausrichtung zur Vormittagssonne

- inkl. großer Küchennische mit Einbauküche, komplett ausgestattet

- ein Zimmer - mit Ausgang auf die Terrasse

- ein weiteres Zimmer

- Nebenräume: Vorzimmer; Badezimmer und WC



Die Terrasse ist riesig und nach Südwesten ausgerichtet - viel Sonne, und wenn zuviel Sonne, dann - mit einem Knopfdruck - gibt es die Markise!



Der Zustand ist neuwertig und modern - Parkettböden, Gasetagenheizung, moderne Fenster, Aufzug, Klimaanlage, Markise (elektrisch), Innenjalousien, Maß-Einbauschrank im Vorzimmer, Terrasse mit Bewässerung und, und ...



Zwei kurze Worte zur Lage der Wohnung:

es ist der Schnittpunkt zwischen Meidlinger Hauptstraße und Wienerberger Straße - somit ist man im Einzugsgebiet von Europlaza, von den Twin Towers aber auch von der Meidlinger Hauptstraße selbst

und die Anbindung an die Nahverkehrsmittel ist absolut sehr gut: angefangen mit dem U-Bahnnetz durch die U6, aber auch Badner Bahn und S-Bahn sind sofort erreichbar - somit eine Anbindung in die Stadt aber auch in das südliche Umland von Wien.



Wenn gewünscht und verfügbar, kann extra in der hauseigenen Tiefgarage ein Stellplatz angemietet werden - Monatskosten: ca. 100,- Euro plus 20% USt,, somit 120,- Euro.


Der Immobilienmakler erklärt, dass er – entgegen dem in der Immobilienwirtschaft üblichen Geschäftsgebrauch des Doppelmaklers – einseitig nur für den Vermieter tätig ist.

Infrastruktur / Entfernungen

Gesundheit
Arzt <250m
Apotheke <250m
Klinik <250m
Krankenhaus <1.250m

Kinder & Schulen
Schule <500m
Kindergarten <250m
Universität <1.250m
Höhere Schule <750m

Nahversorgung
Supermarkt <250m
Bäckerei <250m
Einkaufszentrum <500m

Sonstige
Geldautomat <500m
Bank <500m
Post <500m
Polizei <500m

Verkehr
Bus <250m
U-Bahn <250m
Straßenbahn <250m
Bahnhof <250m
Autobahnanschluss <2.000m

Angaben Entfernung Luftlinie / Quelle: OpenStreetMap

Eckdaten Objektnr. 1434

Art: Wohnung
Land: Österreich
Baujahr: 2007
Zustand: Neuwertig
Gesamtmiete: 1.194,67
Kaltmiete (netto): 830,00 €
Kaltmiete: 1.086,06 €
Provision: Gemäß Erstauftraggeberprinzip bezahlt der Abgeber die Provision.
Betriebskosten: 256,06 €
MwSt Gesamt: 108,61 €
Wohnfläche: 71,62 m²
Zimmer: 3
Bäder: 1
WC: 1
Terrassen: 1
Keller: 3,00 m²
Heizwärmebedarf:  C  85,30 kWh/m²a
fGEE:  C  1,34
Immobilie merken Exposé

Ausstattung

Fliesen, Parkett, Gas, Etagenheizung, Einbauküche, Personenaufzug, Badewanne


Immobilie anfragen


Ihre persönliche Beratung

IMMOKONTOR - Srnka e.U.

Reinhard Srnka

IMMOKONTOR - Srnka e.U.

T +43 1 9146193

H 0650 300 65 45

F 01 2533033 1177