Wiener Bestlage – 60 m² Wohnqualität – sofort beziehbar

Wohnung , 1130 Wien,Hietzing , Auhofstraße


Beschreibung der Immobilie

Wiener Bestlage – 60 m² Wohnqualität – sofort beziehbar

Im 13. Wiener Gemeindebezirk Hietzing gelangt eine äußerst gepflegte 60 m² Wohneinheit zur Vermietung. Die Wohnung überzeugt durch ihre durchdachte Raumaufteilung, den sehr guten Gebäudezustand und vor allem durch ihre ruhige, dennoch hervorragend angebundene Lage.



Dank einer kürzlich eingerichteten Einbahnstraße präsentiert sich das Wohnumfeld angenehm verkehrsberuhigt. Die U-Bahn-Station Braunschweiggasse befindet sich in unmittelbarer Nähe und ermöglicht eine schnelle Verbindung in die Innenstadt. Ebenso fußläufig erreichbar ist das weitläufige Areal von Schloss Schönbrunn, das zu Spaziergängen, sportlicher Betätigung oder einfach zum Abschalten im Grünen einlädt.



Die Wohnung liegt im 1. Liftstock und ist sowohl bequem über den Aufzug als auch über wenige Stufen erreichbar.

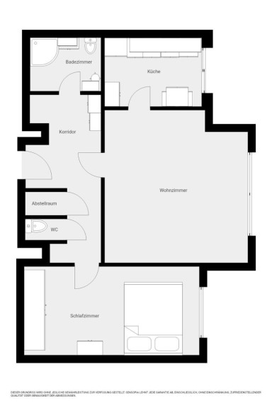
Sobald man die Wohnung betritt, eröffnet sich ein klar strukturierter Grundriss, der Funktionalität und Wohnlichkeit harmonisch verbindet.




Raumaufteilung & Ausstattung



Über das Vorzimmer sind sämtliche Räume zentral begehbar.

Das Wohnzimmer präsentiert sich großzügig geschnitten und bietet ausreichend Platz für Wohn- und Essbereich – ein Raum, der zu gemütlichen Stunden und entspanntem Ankommen einlädt. Von hier aus gelangt man in die separate, gut ausgestattete Küche mit Fenster, ausgestattet mit Cerankochfeld, Backofen und Kühlschrank.



Das Schlafzimmer ist angenehm proportioniert und erlaubt problemlos die Unterbringung eines großen Kleiderschranks, ohne an Raumgefühl zu verlieren.

Das Badezimmer und das WC sind getrennt ausgeführt – ein Detail, das im Alltag spürbaren Komfort bietet. Zusätzlich steht eine Abstellkammer zur Verfügung, die wertvollen Stauraum schafft.



Ein Kellerabteil ergänzt das Platzangebot der Wohnung.




Gebäude & Allgemeinflächen



Das Wohngebäude bietet mehrere hochwertige Gemeinschaftseinrichtungen:




  • Hauseigene Sauna, sehr gepflegt und kaum frequentiert



  • Ruhiger, von der Straße abgewandter Garten



  • Waschküche mit neuer Miele-Waschmaschine



  • Fahrradraum



  • Garagenplatz (momentan vermietet mit 3 monatiger Kündigungsfrist)



  • Müllraum im Gebäude (ausreichend Volumen)




Ein Garagenstellplatz ist derzeit vermietet, kann jedoch bei Bedarf nach Ablauf der Kündigungsfrist (3 Monate) übernommen werden.



Ein zusätzlicher Vorteil sind die sehr geringen Heizkosten, da sich die Sauna direkt unter der Wohnung befindet und somit eine angenehme Grundwärme erzeugt.




Mietkonditionen




  • Miete: 1.017,-



  • Betriebskosten: 183,-



  • 3 Monatsmieten Kaution



  • ausschließlich verlässlich & verantwortungsvolle Mieter 



  • Sofort beziehbar



Der Immobilienmakler erklärt, dass er – entgegen dem in der Immobilienwirtschaft üblichen Geschäftsgebrauch des Doppelmaklers – einseitig nur für den Vermieter tätig ist.

Infrastruktur / Entfernungen

Gesundheit
Arzt <250m
Apotheke <500m
Klinik <750m
Krankenhaus <1.250m

Kinder & Schulen
Schule <250m
Kindergarten <500m
Universität <1.750m
Höhere Schule <3.000m

Nahversorgung
Supermarkt <500m
Bäckerei <500m
Einkaufszentrum <2.500m

Sonstige
Geldautomat <500m
Bank <500m
Post <500m
Polizei <1.000m

Verkehr
Bus <250m
U-Bahn <500m
Straßenbahn <250m
Bahnhof <500m
Autobahnanschluss <4.250m

Angaben Entfernung Luftlinie / Quelle: OpenStreetMap

Eckdaten Objektnr. 1901/50

Art: Wohnung
Land: Österreich
Zustand: Gepflegt
Alter: Neubau
Gesamtmiete: 1.017,00
Kaltmiete (netto): 1.017,00 €
Kaltmiete: 1.017,00 €
Provision: Gemäß Erstauftraggeberprinzip bezahlt der Abgeber die Provision.
Wohnfläche: 60,00 m²
Zimmer: 2
Immobilie merken Exposé

Ausstattung

Parkett, Zentralheizung, Personenaufzug, Garage, Sauna, Wasch/Trockenraum


Immobilie anfragen


Ihre persönliche Beratung

Clemens Palz

Conzeptio Immobilien GmbH

T +436605487750