Hernalser Gürtel | Straßenlage | U6 Josefstädter Straße

Gastgewerbe , 1170 Wien,Hernals


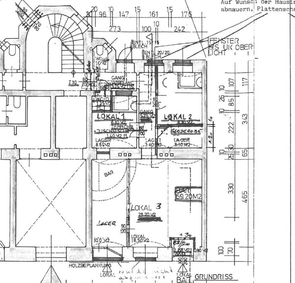
Beschreibung der Immobilie

Hernalser Gürtel | Straßenlage | U6 Josefstädter Straße

Liebe InteressentInnen, bitte schicken Sie mir Ihre Anfrage direkt online über das Inserat mit Telefonnummer und Name.



Unmittelbar nach Ihrer Anfrage erhalten Sie eine automatisierte E-Mail (bitte auch Spam Ordner prüfen), dort erhalten Sie die Adresse und das Exposé. 



Geschäftslokal am Hernalser Gürtel, direkte Straßenlage mit Straßenzugang und 2 Zugang über Stiegenhaus, 3 Räume, Toiletten, Nebenräume, Gasetagenheizung



sanierungsbedürftiger Zustand



Gesamtwohnfläche ca. 53,07m² im Erdgeschoß



monatliche Kosten:



Hausbetriebskosten netto €104,40



Wasserkosten netto €50



Instandhaltungsrücklage €95,52



Energieklasse D/F



Auf Ihre Anfrage freut sich:



Ihr REAL3-Team

REAL3 Immobilien GmbH

info@real3.at



0699 131 00 317



Der Kennwert des Gesamtenergieeffizienzfaktors fGEE wird in dem für dieses Objekt ausgestellten Energieausweis, welcher aufgrund der Übergangsbestimmung zum EAVG 2012 auf die Dauer von 10 Jahren ab Erstellung weiterhin Gültigkeit hat, nicht ausgewiesen und deshalb wird in diesem Inserat nur die Energieklasse angeführt. Alle Informationen, insbesondere jene hinsichtlich des Energieausweises beruhen auf den Auskünften und Unterlagen des Eigentümers. Wir haben weder die Richtigkeit oder Vollständigkeit der Angaben noch die tatsächliche Gesamtenergieeffizienz überprüft und übernehmen hierfür keine Gewähr. Wir weisen darauf hin, dass zum Auftraggeber ein wirtschaftliches Naheverhältnis besteht. Unsere Angebote sind freibleibend und unverbindlich. Zwischenverkauf, -vermietung oder -verpachtung durch den zu vermittelnden Dritten sind vorbehalten. Der Immobilienmakler erklärt, dass er als Doppelmakler tätig ist.


Wir weisen darauf hin, dass zwischen dem Vermittler und dem zu vermittelnden Dritten ein familiäres oder wirtschaftliches Naheverhältnis besteht.


Der Vermittler ist als Doppelmakler tätig.

Infrastruktur / Entfernungen

Gesundheit
Arzt <500m
Apotheke <500m
Klinik <500m
Krankenhaus <1.000m

Kinder & Schulen
Schule <500m
Kindergarten <500m
Universität <1.000m
Höhere Schule <1.000m

Nahversorgung
Supermarkt <500m
Bäckerei <500m
Einkaufszentrum <1.000m

Sonstige
Geldautomat <500m
Bank <500m
Post <500m
Polizei <500m

Verkehr
Bus <500m
U-Bahn <500m
Straßenbahn <500m
Bahnhof <500m
Autobahnanschluss <3.500m

Angaben Entfernung Luftlinie / Quelle: OpenStreetMap

Eckdaten Objektnr. 5853/3634

Art: Gastgewerbe
Land: Österreich
Alter: Altbau
Kaufpreis: 99.000,00
Provision: 3% des Kaufpreises zzgl. 20% USt.
Betriebskosten: 104,40 €
MwSt Gesamt: 20,88 €
Wohnfläche: 53,07 m²
Nutzfläche: 53,07 m²
Zimmer: 3
WC: 2
Immobilie merken Exposé

Ausstattung

Gas, Etagenheizung


Immobilie anfragen


Ihre persönliche Beratung

REAL3 Immobilien GmbH

REAL3 Immobilien GmbH

REAL3 Immobilien GmbH

T +431997159317

H +43 699 131 00 317