Stilvolles Wohnen auf drei Ebenen – PROVISIONSFREI!

Haus - Reihenhaus, 1140 Wien


Beschreibung der Immobilie

Stilvolles Wohnen auf drei Ebenen – PROVISIONSFREI!

PROVISIONSFREI für den Käufer!



Die attraktive Lage nahe der Hütteldorfer Straße bietet eine sehr gute Infrastruktur mit Nahversorgern des täglichen Bedarfs in unmittelbarer Umgebung sowie vielfältigen Einkaufsmöglichkeiten im Auhof Center. Schulen sind fußläufig bzw. mit öffentlichen Verkehrsmitteln gut erreichbar.



Diese moderne Wohneinheit auf drei Ebenen besticht durch eine durchdachte Raumaufteilung und hochwertige Ausstattung. Die klare Trennung der Wohnbereiche schafft ein angenehmes Wohngefühl und bietet vielseitige Nutzungsmöglichkeiten für Familie, Homeoffice oder Gäste.



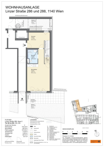
Raumaufteilung



Erdgeschoss:



  • großzügiger Vorraum
  • Büro / Gästezimmer
  • Badezimmer mit Dusche und WC
  • Abstellraum
  • Terrasse mit anschließendem Garten


Obergeschoss:



  • zentraler Vorraum
  • zwei Zimmer
  • Badezimmer mit Badewanne
  • separates WC
  • Abstellraum


Dachgeschoss:



  • großzügige Wohnküche
  • direkter Ausgang auf die Terrasse


Eine ausgezeichnete Verkehrsanbindung besteht durch:



  • die Straßenbahnlinie 52 nahezu vor der Haustüre
  • die Buslinie 47A mit Anschluss an die U4 (Ober St. Veit)
  • die Straßenbahnlinie 49 mit Anbindung an die U3


Die A1-Autobahnauffahrt Auhof ist rasch erreichbar.



Die Wohnung wird schlüsselfertig übergeben und verfügt über Parkettböden in den Wohnräumen, eine geschmackvolle Ausstattung sowie die Verwendung hochwertiger Materialien.



Beheizung und Kühlung erfolgen über eine komfortable Deckenheizung und -kühlung mittels effizienter Wärmepumpenanlage mit Geothermie (Tiefenbohrungen) und Sonnenkollektoren und sorgen für ein angenehmes Wohnklima.



Die Fenster sind mit außenliegendem Sonnenschutz (Raffstores) ausgestattet, einzelne Fenster verfügen über Tuchbeschattung. Die Bedienung erfolgt bequem per Funkfernbedienung. Ein Lift ermöglicht die barrierefreie Erreichbarkeit aller Wohnetagen.



Stellplätze in der Tiefgarage können ab € 34.500,– erworben werden.


Wir weisen darauf hin, dass zwischen dem Vermittler und dem zu vermittelnden Dritten ein familiäres oder wirtschaftliches Naheverhältnis besteht.


Der Vermittler ist als Doppelmakler tätig.

Infrastruktur / Entfernungen

Gesundheit
Arzt <500m
Apotheke <500m
Klinik <2.000m
Krankenhaus <1.500m

Kinder & Schulen
Schule <500m
Kindergarten <500m
Universität <2.000m
Höhere Schule <3.500m

Nahversorgung
Supermarkt <500m
Bäckerei <500m
Einkaufszentrum <3.500m

Sonstige
Geldautomat <500m
Bank <500m
Post <500m
Polizei <1.000m

Verkehr
Bus <500m
U-Bahn <1.000m
Straßenbahn <500m
Bahnhof <1.000m
Autobahnanschluss <4.500m

Angaben Entfernung Luftlinie / Quelle: OpenStreetMap

Eckdaten Objektnr. 1609/46930

Art: Haus - Reihenhaus
Land: Österreich
Baujahr: 2024
Zustand: Erstbezug
Alter: Neubau
Kaufpreis: 953.800,00
Provision: Provision bezahlt der Abgeber.
Betriebskosten: 295,75 €
MwSt Gesamt: 29,58 €
Wohnfläche: 144,97 m²
Zimmer: 4
Bäder: 2
WC: 3
Terrassen: 2
Garten: 38,14 m²
Heizwärmebedarf:  B  26,10 kWh/m²a
fGEE:  A++  0,75
Immobilie merken Exposé

Ausstattung

Parkett, Fliesen, Erdwärme, Badewanne, Garage


Immobilie anfragen


Ihre persönliche Beratung

RE/MAX First - REM Immobilienmakler GmbH & Co KG

Selina Harnuboglu

RE/MAX First - REM Immobilienmakler Gmbh & Co KG

H +43 664 502 41 77