Stilvolles Townhouse auf drei Ebenen

Haus - Reihenhaus, 1140 Wien


Beschreibung der Immobilie

Stilvolles Townhouse auf drei Ebenen

Die attraktive Lage nahe der Hütteldorfer Straße bietet eine sehr gute Infrastruktur mit Nahversorgern des täglichen Bedarfs in unmittelbarer Umgebung sowie vielfältigen Einkaufsmöglichkeiten im Auhof Center. Schulen sind fußläufig bzw. mit öffentlichen Verkehrsmitteln gut erreichbar.



Dieses hochwertig ausgeführte Townhouse überzeugt durch seine durchdachte Raumaufteilung auf drei Ebenen, moderne Ausstattung und ein Wohnkonzept, das sowohl Familien als auch anspruchsvolle Paare begeistert. Großzügige Fensterflächen sorgen für helle, freundliche Räume und ein angenehmes Wohngefühl.



Raumaufteilung



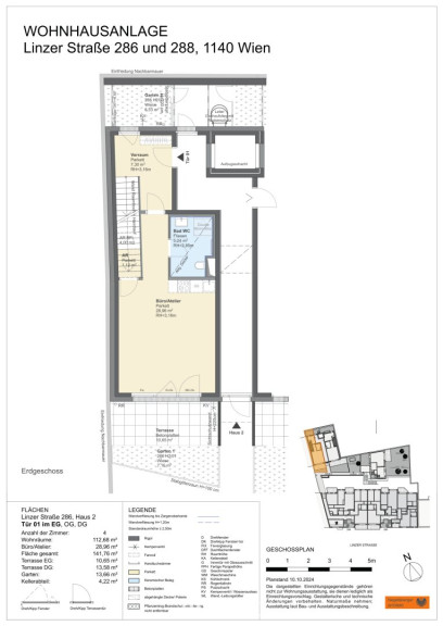
Erdgeschoss



  • einladender Vorraum
  • Büro / Gästezimmer
  • Badezimmer mit Dusche und WC
  • Abstellmöglichkeiten
  • direkter Zugang zur Terrasse und zum Gartenbereich


Obergeschoss



  • zentraler Vorraum
  • zwei gut geschnittene Zimmer (ideal als Schlaf-, Kinder- oder Arbeitszimmer)
  • Badezimmer mit Badewanne
  • separates WC
  • praktischer Abstellraum


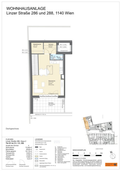
Dachgeschoss



  • großzügige Wohnküche
  • direkter Ausgang auf die Terrasse
  • zusätzlicher Abstellraum
  • beeindruckendes Wohngefühl durch die erhöhte Lage


Eine ausgezeichnete Verkehrsanbindung besteht durch:



  • die Straßenbahnlinie 52 nahezu vor der Haustüre
  • die Buslinie 47A mit Anschluss an die U4 (Ober St. Veit)
  • die Straßenbahnlinie 49 mit Anbindung an die U3


Die A1-Autobahnauffahrt Auhof ist rasch erreichbar.



Beheizung und Kühlung erfolgen über eine komfortable Deckenheizung und -kühlung mittels effizienter Wärmepumpenanlage mit Geothermie (Tiefenbohrungen) und Sonnenkollektoren und sorgen für ein angenehmes Wohnklima.



Die Fenster sind mit außenliegendem Sonnenschutz (Raffstores) ausgestattet, einzelne Fenster verfügen über Tuchbeschattung. Die Bedienung erfolgt bequem per Funkfernbedienung. Ein Lift ermöglicht die barrierefreie Erreichbarkeit aller Wohnetagen.


Wir weisen darauf hin, dass zwischen dem Vermittler und dem zu vermittelnden Dritten ein familiäres oder wirtschaftliches Naheverhältnis besteht.


Der Immobilienmakler erklärt, dass er – entgegen dem in der Immobilienwirtschaft üblichen Geschäftsgebrauch des Doppelmaklers – einseitig nur für den Vermieter tätig ist.

Infrastruktur / Entfernungen

Gesundheit
Arzt <500m
Apotheke <500m
Klinik <2.000m
Krankenhaus <1.500m

Kinder & Schulen
Schule <500m
Kindergarten <500m
Universität <2.000m
Höhere Schule <3.500m

Nahversorgung
Supermarkt <500m
Bäckerei <500m
Einkaufszentrum <3.500m

Sonstige
Geldautomat <500m
Bank <500m
Post <500m
Polizei <1.000m

Verkehr
Bus <500m
U-Bahn <1.000m
Straßenbahn <500m
Bahnhof <1.000m
Autobahnanschluss <4.500m

Angaben Entfernung Luftlinie / Quelle: OpenStreetMap

Eckdaten Objektnr. 1609/46933

Art: Haus - Reihenhaus
Land: Österreich
Baujahr: 2024
Zustand: Erstbezug
Alter: Neubau
Gesamtmiete: 2.801,12
Kaltmiete (netto): 2.101,88 €
Kaltmiete: 2.395,69 €
Provision: Gemäß Erstauftraggeberprinzip bezahlt der Abgeber die Provision.
Betriebskosten: 293,81 €
Heizkosten: 141,76 €
MwSt Gesamt: 263,67 €
Wohnfläche: 141,76 m²
Zimmer: 4
Bäder: 2
WC: 3
Terrassen: 2
Garten: 14,84 m²
Heizwärmebedarf:  B  26,10 kWh/m²a
fGEE:  A++  0,75
Immobilie merken Exposé

Ausstattung

Parkett, Fliesen, Erdwärme, Personenaufzug, Badewanne, Garage


Immobilie anfragen


Ihre persönliche Beratung

RE/MAX First - REM Immobilienmakler GmbH & Co KG

Selina Harnuboglu

RE/MAX First - REM Immobilienmakler Gmbh & Co KG

H +43 664 502 41 77